|
|
|
| Larry Stein Oklahoma County Assessor (405) 713-1200 - Public Access System |
|
|
|
|
|
|
| Real Property Display - Screen Produced 4/1/2026 1:20:51 PM | ||||
|---|---|---|---|---|
| Account: R103982130 | Type: Residential | Location: |
3432 BRUSH CREEK RD |
|
| Building Name/Occupant: |
|
OKLAHOMA CITY |
||
| Owner Name 1: | ROBBINS DEREK |
Parcel PIN#: |
3852-10-398-2130 |
|
| Owner Name 2: | ROBBINS JENNIFER | 1/4 section #: |
3852 |
|
| Owner Name 3: | Parent Acct: |
|
||
| Billing Address: | 3432 BRUSH CREEK RD | Tax District: |
|
|
| City, State, Zip | OKLAHOMA CITY, OK 73120 | School System: |
Edmond #12 |
|
|
Country: (If noted) |
Land Size: |
0.4112 Acres |
||
|
Land Value: 147,791 |
|
|||
|
Sect 13-T13N-R4W Qtr NW |
QUAIL CREEK SEC 35
Block
035
Lot
000
|
|||
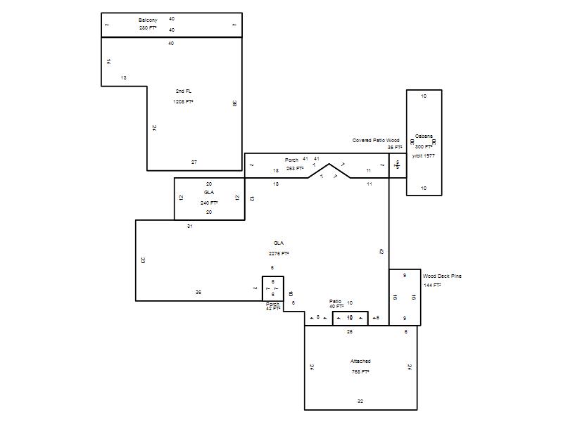
| Full Legal Description: QUAIL CREEK SEC 35 035 000 LOT 14 & PT LOT 15 BEG NE/C LOT 15 TH S189.47FT TO SE/C LOT15 TH W2.54FT N190.6FT TO PT ON N LINE LOT 15 TH SELY ALONGCURVE TO LEFT 1.88FT TO BEG SUBJ TO ESMTS OF RECORD |
| Photo & Sketch (if available) | Comp Sales (ordered by relevancy) |
|
||||||||||||||||||
|
||||||||||||||||||||
| Value History (*The County Treasurer 405-713-1300 posts & collects actual tax amounts. Contact information HERE) | |||||||||||||
|---|---|---|---|---|---|---|---|---|---|---|---|---|---|
| Year | Market Value | Taxable Mkt Value | Gross Assessed | Exemption | Net Assessed | Millage | Est. Tax | Tax Savings | |||||
|
2026 |
844,000 |
783,484 |
86,183 |
1,000 |
85,183 |
120.32 |
$10,249 |
$921 |
|||||
|
2025 |
860,500 |
760,665 |
83,673 |
1,000 |
82,673 |
120.32 |
$9,947 |
$1,442 |
|||||
|
2024 |
763,000 |
738,510 |
81,236 |
1,000 |
80,236 |
119.96 |
$9,625 |
$443 |
|||||
|
2023 |
717,000 |
717,000 |
78,870 |
0 |
78,870 |
119.02 |
$9,387 |
$0 |
|||||
|
2022 |
689,500 |
568,366 |
62,518 |
1,000 |
61,518 |
120.10 |
$7,389 |
$1,720 |
|||||
| Property Account Status/Adjustments/Exemptions | ||
|---|---|---|
| Account # | Exemption Description | Amount |
|
R103982130 |
3% Cap Homestead |
0 |
|
R103982130 |
Homestead |
1,000 |
| Property Deed Transaction History (Recorded in the County Clerk's Office) | |||||||
|---|---|---|---|---|---|---|---|
| Date | Type | Book | Page | Price | Grantor | Grantee | |
|
7/1/2022 |
|
Deeds |
$705,000 |
LINDSEY BILL J & KAY L TRS |
ROBBINS DEREK |
||
|
8/29/2019 |
|
Deeds |
$0 |
LINDSEY BILL J & KAY L |
LINDSEY BILL J & KAY L TRS |
||
|
10/17/1986 |
|
Historical |
$0 |
LINDSEY BILL J & KAY L |
LINDSEY BILL J & KAY L |
||
|
12/1/1983 |
|
Historical |
$0 |
|
LINDSEY BILL J & KAY L |
||
| Last Mailed Notice of Value (N.O.V.) Information/History | ||||||||
|---|---|---|---|---|---|---|---|---|
| Year | Date | Market Value | Taxable Market Value | Gross Assessed | Exemption | Net Assessed | ||
|
2026 |
02/23/2026 |
844,000 |
783,484 |
86,183 |
1,000 |
85,183 |
||
|
2025 |
02/14/2025 |
860,500 |
760,665 |
83,673 |
1,000 |
82,673 |
||
|
2024 |
02/13/2024 |
763,000 |
752,850 |
82,813 |
0 |
82,813 |
||
|
2023 |
02/14/2023 |
717,000 |
717,000 |
78,870 |
0 |
78,870 |
||
|
2022 |
03/15/2022 |
689,500 |
568,366 |
62,518 |
1,000 |
61,518 |
||
| Property Building Permit History | ||||||
|---|---|---|---|---|---|---|
| Issued | Permit # | Provided by | Bldg # | Description | Est Construction Cost | Status |
|
11/15/2005 |
10314220 |
OKLAHOMA CITY |
1 |
Remodeled |
17,500 |
Inactive |
|
6/16/1994 |
10202432 |
OKLAHOMA CITY |
1 |
Add On |
4,000 |
Inactive |
| Click button on building number to access detailed information: | ||||||
|---|---|---|---|---|---|---|
| Bldg # | Vacant/Improved Land | Bldg Description | Year Built | SqFt | # Stories | |
|
1 |
Improved |
1½ Story Fin |
1977 |
3,724 |
1.5 Stories |
|