|
|
|
| Larry Stein Oklahoma County Assessor (405) 713-1200 - Public Access System |
|
|
|
|
|
|
| Real Property Display - Screen Produced 4/2/2026 2:29:04 AM | ||||
|---|---|---|---|---|
| Account: R121661460 | Type: Residential | Location: |
12317 VAL VERDE DR |
|
| Building Name/Occupant: |
|
OKLAHOMA CITY |
||
| Owner Name 1: | WELSH MITZI |
Parcel PIN#: |
3858-12-166-1460 |
|
| Owner Name 2: | 1/4 section #: |
3858 |
||
| Owner Name 3: | Parent Acct: |
|
||
| Billing Address: | PO BOX 122 | Tax District: |
|
|
| City, State, Zip | MADILL, OK 73446-0122 | School System: |
Oklahoma City #89 |
|
|
Country: (If noted) |
Land Size: |
0.3355 Acres |
||
|
Land Value: 92,049 |
|
|||
|
Sect 15-T13N-R4W Qtr SE |
VAL VERDE WEST BLKS 4 & 5
Block
004
Lot
047
|
|||
| Full Legal Description: VAL VERDE WEST BLKS 4 & 5 004 047 |
| Photo & Sketch (if available) | Comp Sales (ordered by relevancy) |
|
||||||||||||||||||
|
||||||||||||||||||||
| Value History (*The County Treasurer 405-713-1300 posts & collects actual tax amounts. Contact information HERE) | |||||||||||||
|---|---|---|---|---|---|---|---|---|---|---|---|---|---|
| Year | Market Value | Taxable Mkt Value | Gross Assessed | Exemption | Net Assessed | Millage | Est. Tax | Tax Savings | |||||
|
2026 |
474,500 |
474,500 |
52,195 |
0 |
52,195 |
122.90 |
$6,415 |
$0 |
|||||
|
2025 |
467,000 |
361,112 |
39,721 |
1,000 |
38,721 |
122.90 |
$4,759 |
$1,554 |
|||||
|
2024 |
439,500 |
350,595 |
38,565 |
1,000 |
37,565 |
123.89 |
$4,654 |
$1,335 |
|||||
|
2023 |
415,000 |
340,384 |
37,441 |
1,000 |
36,441 |
122.82 |
$4,476 |
$1,131 |
|||||
|
2022 |
361,500 |
330,470 |
36,350 |
1,000 |
35,350 |
117.63 |
$4,158 |
$519 |
|||||
| Property Account Status/Adjustments/Exemptions | ||||||
|---|---|---|---|---|---|---|
| Account # | Exemption Description | Amount | ||||
| No adjustment/exemption records returned. | ||||||
| Property Deed Transaction History (Recorded in the County Clerk's Office) | ||||||||||
|---|---|---|---|---|---|---|---|---|---|---|
| Date | Type | Book | Page | Price | Grantor | Grantee | ||||
|
6/6/2025 |
|
Deeds |
$470,000 |
STEWART ERIC J TRS |
WELSH MITZI |
|||||
|
5/4/2021 |
|
Deeds |
$ |
STEWART ERIC J |
STEWART ERIC J TRS |
|||||
|
6/3/2015 |
|
Deeds |
$352,500 |
GRIGSBY PATRICIA 1995 REV TRUST |
STEWART ERIC J |
|||||
|
9/15/2004 |
|
Deeds |
$289,000 |
LEVINE MARIAN P LEVINE MICHAEL A |
GRIGSBY PATRICIA 1995REV TRUST |
|||||
|
9/9/1999 |
|
Hmstd Off & |
$0 |
LEVINE MARIAN P |
LEVINE MARIAN P LEVINE MICHAEL A |
|||||
| Last Mailed Notice of Value (N.O.V.) Information/History | ||||||||
|---|---|---|---|---|---|---|---|---|
| Year | Date | Market Value | Taxable Market Value | Gross Assessed | Exemption | Net Assessed | ||
|
2026 |
02/23/2026 |
474,500 |
474,500 |
52,195 |
0 |
52,195 |
||
|
2025 |
02/14/2025 |
467,000 |
361,112 |
39,721 |
1,000 |
38,721 |
||
|
2024 |
02/13/2024 |
439,500 |
350,595 |
38,565 |
1,000 |
37,565 |
||
|
2023 |
02/14/2023 |
415,000 |
340,384 |
37,441 |
1,000 |
36,441 |
||
|
2022 |
03/15/2022 |
361,500 |
330,470 |
36,350 |
1,000 |
35,350 |
||
| Property Building Permit History | |||||||||||
|---|---|---|---|---|---|---|---|---|---|---|---|
| Issued | Permit # | Provided by | Bldg # | Description | Est Construction Cost | Status | |||||
| No Building Permit records returned. | |||||||||||
| Click button on building number to access detailed information: | ||||||
|---|---|---|---|---|---|---|
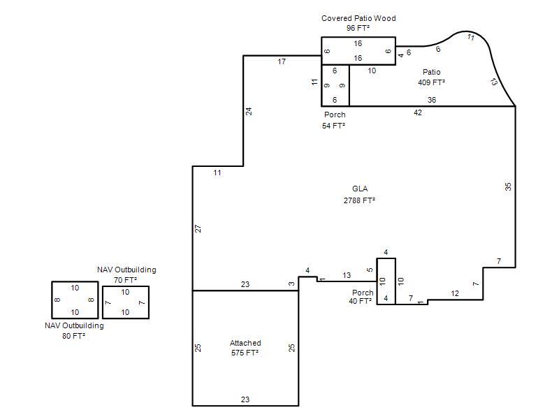
| Bldg # | Vacant/Improved Land | Bldg Description | Year Built | SqFt | # Stories | |
|
1 |
Improved |
Ranch 1 Story |
1988 |
2,788 |
1 Stories |
|