|
|
|
| Larry Stein Oklahoma County Assessor (405) 713-1200 - Public Access System |
|
|
|
|
|
|
| Real Property Display - Screen Produced 3/21/2026 7:11:42 AM | ||||
|---|---|---|---|---|
| Account: R150495100 | Type: Residential | Location: |
516 E NORTHRUP DR |
|
| Building Name/Occupant: |
|
MIDWEST CITY |
||
| Owner Name 1: | SCOTT REGINA |
Parcel PIN#: |
1437-15-049-5100 |
|
| Owner Name 2: | 1/4 section #: |
1437 |
||
| Owner Name 3: | Parent Acct: |
|
||
| Billing Address: | 516 E NORTHRUP DR | Tax District: |
|
|
| City, State, Zip | MIDWEST CITY, OK 73110-5420 | School System: |
Mid-Del #52 |
|
|
Country: (If noted) |
Land Size: |
0.1860 Acres |
||
|
Land Value: 23,085 |
|
|||
|
Sect 10-T11N-R2W Qtr NE |
COUNTRY ESTATES 2ND
Block
004
Lot
009
|
|||
| Full Legal Description: COUNTRY ESTATES 2ND 004 009 |
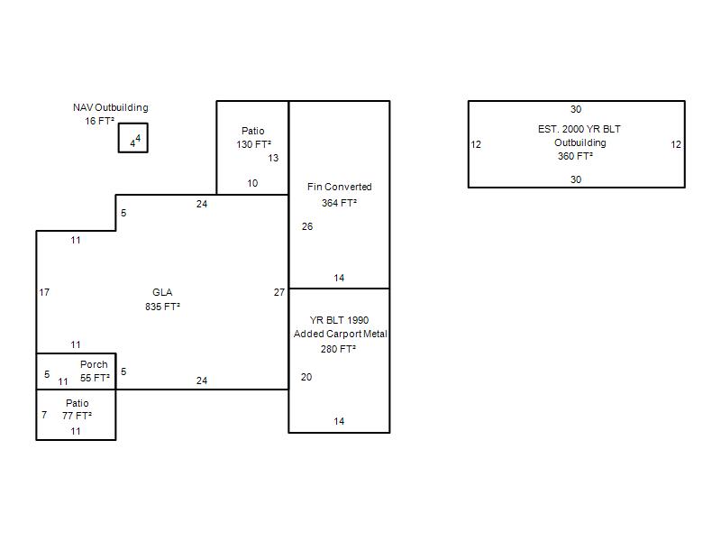
| Photo & Sketch (if available) | Comp Sales (ordered by relevancy) |
|
||||||||||||||||||
|
||||||||||||||||||||
| Value History (*The County Treasurer 405-713-1300 posts & collects actual tax amounts. Contact information HERE) | |||||||||||||
|---|---|---|---|---|---|---|---|---|---|---|---|---|---|
| Year | Market Value | Taxable Mkt Value | Gross Assessed | Exemption | Net Assessed | Millage | Est. Tax | Tax Savings | |||||
|
2025 |
149,000 |
149,000 |
16,390 |
1,000 |
15,390 |
119.58 |
$1,840 |
$120 |
|||||
|
2024 |
142,500 |
93,415 |
10,275 |
1,000 |
9,275 |
122.51 |
$1,136 |
$784 |
|||||
|
2023 |
120,500 |
90,695 |
9,975 |
1,000 |
8,975 |
117.71 |
$1,057 |
$504 |
|||||
|
2022 |
113,000 |
88,054 |
9,685 |
1,000 |
8,685 |
116.64 |
$1,013 |
$437 |
|||||
|
2021 |
94,500 |
85,490 |
9,403 |
1,000 |
8,403 |
119.45 |
$1,004 |
$238 |
|||||
| Property Account Status/Adjustments/Exemptions | ||
|---|---|---|
| Account # | Exemption Description | Amount |
|
R150495100 |
3% Cap Homestead |
0 |
|
R150495100 |
Freeze Senior Valuation |
0 |
|
R150495100 |
Homestead |
1,000 |
| Property Deed Transaction History (Recorded in the County Clerk's Office) | ||||||||||
|---|---|---|---|---|---|---|---|---|---|---|
| Date | Type | Book | Page | Price | Grantor | Grantee | ||||
|
7/30/2024 |
|
Deeds |
$150,000 |
DILLARD WANDA |
SCOTT REGINA |
|||||
|
8/6/2004 |
|
Deeds |
$69,500 |
REESE TRACY RENE |
DILLARD WANDA |
|||||
|
6/29/2001 |
|
Deeds |
$59,500 |
MORRIS JODY R & ANGELA S |
REESE TRACY RENE |
|||||
|
1/4/1993 |
|
Historical |
$37,500 |
FISHER SANDRA LYNN |
MORRIS JODY R & ANGELA S |
|||||
|
4/4/1988 |
|
Historical |
$36,000 |
OKLAHOMA MORTGAGE COMPANY INC |
FISHER SANDRA LYNN |
|||||
| Last Mailed Notice of Value (N.O.V.) Information/History | ||||||||
|---|---|---|---|---|---|---|---|---|
| Year | Date | Market Value | Taxable Market Value | Gross Assessed | Exemption | Net Assessed | ||
|
2025 |
01/31/2025 |
149,000 |
149,000 |
16,390 |
0 |
16,390 |
||
|
2024 |
01/22/2024 |
142,500 |
93,415 |
10,275 |
1,000 |
9,275 |
||
|
2023 |
01/23/2023 |
120,500 |
90,695 |
9,975 |
1,000 |
8,975 |
||
|
2022 |
02/22/2022 |
113,000 |
88,054 |
9,685 |
1,000 |
8,685 |
||
|
2021 |
02/24/2021 |
94,500 |
85,490 |
9,403 |
1,000 |
8,403 |
||
| Property Building Permit History | ||||||
|---|---|---|---|---|---|---|
| Issued | Permit # | Provided by | Bldg # | Description | Est Construction Cost | Status |
|
7/20/2017 |
10496109 |
MIDWEST CITY |
1 |
Add On |
10,000 |
Inactive |
|
8/22/1996 |
10246313 |
MIDWEST CITY |
1 |
Storage Buil |
1,000 |
Inactive |
| Click button on building number to access detailed information: | ||||||
|---|---|---|---|---|---|---|
| Bldg # | Vacant/Improved Land | Bldg Description | Year Built | SqFt | # Stories | |
|
1 |
Improved |
Ranch 1 Story |
1949 |
835 |
1 Stories |
|