|
|
|
| Larry Stein Oklahoma County Assessor (405) 713-1200 - Public Access System |
|
|
|
|
|
|
| Real Property Display - Screen Produced 3/18/2026 1:30:12 PM | ||||
|---|---|---|---|---|
| Account: R183311180 | Type: Residential | Location: |
12128 MORITZ CT |
|
| Building Name/Occupant: |
|
OKLAHOMA CITY |
||
| Owner Name 1: | MARKS ALLEN RAY |
Parcel PIN#: |
3873-18-331-1180 |
|
| Owner Name 2: | 1/4 section #: |
3873 |
||
| Owner Name 3: | Parent Acct: |
|
||
| Billing Address: | 12128 MORITZ CT | Tax District: |
|
|
| City, State, Zip | OKLAHOMA CITY, OK 73162-1029 | School System: |
Putnam City #1 |
|
|
Country: (If noted) |
Land Size: |
0.1970 Acres |
||
|
Land Value: 31,317 |
|
|||
|
Sect 19-T13N-R4W Qtr NE |
WILLOW CREEK ESTATES #4
Block
027
Lot
008
|
|||
| Full Legal Description: WILLOW CREEK ESTATES #4 027 008 |
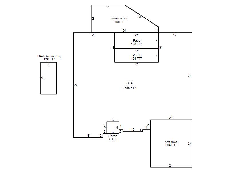
| Photo & Sketch (if available) | Comp Sales (ordered by relevancy) |
|
||||||||||||||||||
|
||||||||||||||||||||
| Value History (*The County Treasurer 405-713-1300 posts & collects actual tax amounts. Contact information HERE) | |||||||||||||
|---|---|---|---|---|---|---|---|---|---|---|---|---|---|
| Year | Market Value | Taxable Mkt Value | Gross Assessed | Exemption | Net Assessed | Millage | Est. Tax | Tax Savings | |||||
|
2025 |
266,500 |
210,986 |
23,207 |
1,000 |
22,207 |
123.17 |
$2,735 |
$875 |
|||||
|
2024 |
263,500 |
204,841 |
22,532 |
1,000 |
21,532 |
122.30 |
$2,633 |
$911 |
|||||
|
2023 |
253,500 |
198,875 |
21,876 |
1,000 |
20,876 |
121.91 |
$2,545 |
$854 |
|||||
|
2022 |
218,000 |
193,083 |
21,238 |
1,000 |
20,238 |
123.41 |
$2,498 |
$462 |
|||||
|
2021 |
193,500 |
187,460 |
20,620 |
1,000 |
19,620 |
122.23 |
$2,398 |
$203 |
|||||
| Property Account Status/Adjustments/Exemptions | ||||||
|---|---|---|---|---|---|---|
| Account # | Exemption Description | Amount | ||||
| No adjustment/exemption records returned. | ||||||
| Property Deed Transaction History (Recorded in the County Clerk's Office) | ||||||||||
|---|---|---|---|---|---|---|---|---|---|---|
| Date | Type | Book | Page | Price | Grantor | Grantee | ||||
|
8/22/2025 |
|
Deeds |
$295,000 |
TOTTEN ALLEN L TRS |
MARKS ALLEN RAY |
|||||
|
7/27/2017 |
|
Deeds |
$0 |
TOTTEN ALLEN LEE |
TOTTEN ALLEN L TRS |
|||||
|
11/26/2007 |
|
Deeds |
$167,000 |
R & C PROPERTIES |
TOTTEN ALLEN LEE |
|||||
|
1/8/2007 |
|
Deeds |
$159,000 |
KINSEY ANTHONY RAY |
R & C PROPERTIES |
|||||
|
3/18/2004 |
|
Deeds |
$149,000 |
NAGY JOSEPH & DONNA W |
KINSEY ANTHONY RAY |
|||||
| Last Mailed Notice of Value (N.O.V.) Information/History | ||||||||
|---|---|---|---|---|---|---|---|---|
| Year | Date | Market Value | Taxable Market Value | Gross Assessed | Exemption | Net Assessed | ||
|
2026 |
02/23/2026 |
282,000 |
282,000 |
31,020 |
0 |
31,020 |
||
|
2025 |
02/14/2025 |
266,500 |
210,986 |
23,207 |
1,000 |
22,207 |
||
|
2024 |
02/13/2024 |
263,500 |
204,841 |
22,532 |
1,000 |
21,532 |
||
|
2023 |
02/14/2023 |
253,500 |
198,875 |
21,876 |
1,000 |
20,876 |
||
|
2022 |
03/15/2022 |
218,000 |
193,083 |
21,238 |
1,000 |
20,238 |
||
| Property Building Permit History | ||||||
|---|---|---|---|---|---|---|
| Issued | Permit # | Provided by | Bldg # | Description | Est Construction Cost | Status |
|
2/22/2000 |
10259061 |
OKLAHOMA CITY |
1 |
Remodeled |
4,500 |
Inactive |
| Click button on building number to access detailed information: | ||||||
|---|---|---|---|---|---|---|
| Bldg # | Vacant/Improved Land | Bldg Description | Year Built | SqFt | # Stories | |
|
1 |
Improved |
Ranch 1 Story |
1979 |
2,555 |
1 Stories |
|