|
|
|
| Larry Stein Oklahoma County Assessor (405) 713-1200 - Public Access System |
|
|
|
|
|
|
| Real Property Display - Screen Produced 3/22/2026 8:46:28 AM | ||||
|---|---|---|---|---|
| Account: R120261480 | Type: Residential | Location: |
12216 DOVER DR |
|
| Building Name/Occupant: |
|
OKLAHOMA CITY |
||
| Owner Name 1: | RENFROW ABIGAIL E & JEREMY KYLE |
Parcel PIN#: |
3881-12-026-1480 |
|
| Owner Name 2: | 1/4 section #: |
3881 |
||
| Owner Name 3: | Parent Acct: |
|
||
| Billing Address: | 12216 DOVER DR | Tax District: |
|
|
| City, State, Zip | OKLAHOMA CITY, OK 73162 | School System: |
Putnam City #1 |
|
|
Country: (If noted) |
UNITED STATES |
Land Size: |
0.2057 Acres |
|
|
Land Value: 48,832 |
|
|||
|
Sect 21-T13N-R4W Qtr NE |
WARWICK ESTATES SEC III
Block
018
Lot
007
|
|||
| Full Legal Description: WARWICK ESTATES SEC III 018 007 |
| Photo & Sketch (if available) | Comp Sales (ordered by relevancy) |
|
||||||||||||||||||
|
||||||||||||||||||||
| Value History (*The County Treasurer 405-713-1300 posts & collects actual tax amounts. Contact information HERE) | |||||||||||||
|---|---|---|---|---|---|---|---|---|---|---|---|---|---|
| Year | Market Value | Taxable Mkt Value | Gross Assessed | Exemption | Net Assessed | Millage | Est. Tax | Tax Savings | |||||
|
2025 |
336,000 |
336,000 |
36,960 |
0 |
36,960 |
123.17 |
$4,552 |
$0 |
|||||
|
2024 |
317,000 |
275,410 |
30,294 |
0 |
30,294 |
122.30 |
$3,705 |
$560 |
|||||
|
2023 |
316,000 |
262,296 |
28,851 |
0 |
28,851 |
121.91 |
$3,517 |
$720 |
|||||
|
2022 |
264,000 |
249,806 |
27,477 |
0 |
27,477 |
123.41 |
$3,391 |
$193 |
|||||
|
2021 |
238,500 |
233,625 |
25,698 |
0 |
25,698 |
122.23 |
$3,141 |
$66 |
|||||
| Property Account Status/Adjustments/Exemptions | ||
|---|---|---|
| Account # | Exemption Description | Amount |
|
R120261480 |
3% Cap Homestead |
0 |
|
R120261480 |
Homestead |
1,000 |
| Property Deed Transaction History (Recorded in the County Clerk's Office) | |||||||
|---|---|---|---|---|---|---|---|
| Date | Type | Book | Page | Price | Grantor | Grantee | |
|
7/23/2024 |
|
Deeds |
$339,000 |
GRAFFIGNA JILLIAN & NICHOLAS |
RENFROW ABIGAIL E & JEREMY KYLE |
||
|
5/20/2016 |
|
Deeds |
$0 |
MCCAULEY CHARLES B & EARLENE TRS MCCAULEY REV TRUST |
MCCAULEY EARLENE TRS MCCAULEY REV TRUST |
||
|
5/20/2016 |
|
Deeds |
$207,000 |
MCCAULEY EARLENE TRS MCCAULEY REV TRUST |
GRAFFIGNA JILLIAN & NICHOLAS |
||
|
6/11/2009 |
|
Deeds |
$0 |
MCCAULEY CHARLES B & EARLENE |
MCCAULEY CHARLES B & EARLENE TRS MCCAULEY REV TRUST |
||
|
10/1/1983 |
|
Historical |
$0 |
|
MCCAULEY CHARLES B & EARLENE |
||
| Last Mailed Notice of Value (N.O.V.) Information/History | ||||||||
|---|---|---|---|---|---|---|---|---|
| Year | Date | Market Value | Taxable Market Value | Gross Assessed | Exemption | Net Assessed | ||
|
2026 |
02/23/2026 |
336,500 |
336,500 |
37,015 |
0 |
37,015 |
||
|
2025 |
02/14/2025 |
336,000 |
336,000 |
36,960 |
0 |
36,960 |
||
|
2024 |
02/13/2024 |
317,000 |
275,410 |
30,294 |
0 |
30,294 |
||
|
2023 |
02/14/2023 |
316,000 |
262,296 |
28,851 |
0 |
28,851 |
||
|
2022 |
03/15/2022 |
264,000 |
249,806 |
27,477 |
0 |
27,477 |
||
| Property Building Permit History | |||||||||||
|---|---|---|---|---|---|---|---|---|---|---|---|
| Issued | Permit # | Provided by | Bldg # | Description | Est Construction Cost | Status | |||||
| No Building Permit records returned. | |||||||||||
| Click button on building number to access detailed information: | ||||||
|---|---|---|---|---|---|---|
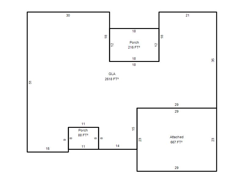
| Bldg # | Vacant/Improved Land | Bldg Description | Year Built | SqFt | # Stories | |
|
1 |
Improved |
Ranch 1 Story |
1983 |
2,618 |
1 Stories |
|