|
|
|
| Larry Stein Oklahoma County Assessor (405) 713-1200 - Public Access System |
|
|
|
|
|
|
| Real Property Display - Screen Produced 3/22/2026 8:46:28 AM | ||||
|---|---|---|---|---|
| Account: R149431130 | Type: Residential | Location: |
6341 OLDE HARWICK DR |
|
| Building Name/Occupant: |
|
OKLAHOMA CITY |
||
| Owner Name 1: | KATZ ALEXANDRIA |
Parcel PIN#: |
3881-14-943-1130 |
|
| Owner Name 2: | DELOERA MAURICIO | 1/4 section #: |
3881 |
|
| Owner Name 3: | Parent Acct: |
|
||
| Billing Address: | 6341 OLDE HARWICK DR | Tax District: |
|
|
| City, State, Zip | OKLAHOMA CITY, OK 73162-3231 | School System: |
Putnam City #1 |
|
|
Country: (If noted) |
Land Size: |
0.1856 Acres |
||
|
Land Value: 44,462 |
|
|||
|
Sect 21-T13N-R4W Qtr NE |
WARWICK ESTATES SEC II
Block
011
Lot
006
|
|||
| Full Legal Description: WARWICK ESTATES SEC II 011 006 |
| Photo & Sketch (if available) | Comp Sales (ordered by relevancy) |
|
||||||||||||||||||
|
||||||||||||||||||||
| Value History (*The County Treasurer 405-713-1300 posts & collects actual tax amounts. Contact information HERE) | |||||||||||||
|---|---|---|---|---|---|---|---|---|---|---|---|---|---|
| Year | Market Value | Taxable Mkt Value | Gross Assessed | Exemption | Net Assessed | Millage | Est. Tax | Tax Savings | |||||
|
2025 |
309,000 |
309,000 |
33,990 |
0 |
33,990 |
123.17 |
$4,187 |
$0 |
|||||
|
2024 |
266,500 |
183,000 |
20,130 |
1,000 |
19,130 |
122.30 |
$2,340 |
$1,246 |
|||||
|
2023 |
259,500 |
183,000 |
20,130 |
1,000 |
19,130 |
121.91 |
$2,332 |
$1,148 |
|||||
|
2022 |
212,000 |
183,000 |
20,130 |
1,000 |
19,130 |
123.41 |
$2,361 |
$517 |
|||||
|
2021 |
196,000 |
183,000 |
20,130 |
1,000 |
19,130 |
122.23 |
$2,338 |
$297 |
|||||
| Property Account Status/Adjustments/Exemptions | ||
|---|---|---|
| Account # | Exemption Description | Amount |
|
R149431130 |
5% Capped Account |
0 |
| Property Deed Transaction History (Recorded in the County Clerk's Office) | ||||||||||
|---|---|---|---|---|---|---|---|---|---|---|
| Date | Type | Book | Page | Price | Grantor | Grantee | ||||
|
9/16/2024 |
|
Deeds |
$331,000 |
LUCAS BURK D III & PATRICIA L |
KATZ ALEXANDRIA |
|||||
|
9/14/2009 |
|
Deeds |
$0 |
PARROTT FAMILY TRUST |
PARROTT CAROLYN KAYE TRS PARROTT FAMILY TRUST |
|||||
|
9/14/2009 |
|
Deeds |
$165,000 |
PARROTT CAROLYN KAYE TRS PARROTT FAMILY TRUST |
LUCAS BURK D III & PATRICIA L |
|||||
|
6/7/1996 |
|
Historical |
$0 |
PARROTT GROVER W & CAROLYN K |
PARROTT FAMILY TRUST |
|||||
|
10/4/1989 |
|
Historical |
$106,000 |
FILSON CRAIG L |
PARROTT GROVER W & CAROLYN K |
|||||
| Last Mailed Notice of Value (N.O.V.) Information/History | ||||||||
|---|---|---|---|---|---|---|---|---|
| Year | Date | Market Value | Taxable Market Value | Gross Assessed | Exemption | Net Assessed | ||
|
2025 |
02/14/2025 |
309,000 |
309,000 |
33,990 |
0 |
33,990 |
||
|
2024 |
02/13/2024 |
266,500 |
183,000 |
20,130 |
1,000 |
19,130 |
||
|
2023 |
02/14/2023 |
259,500 |
183,000 |
20,130 |
1,000 |
19,130 |
||
|
2022 |
03/15/2022 |
212,000 |
183,000 |
20,130 |
1,000 |
19,130 |
||
|
2021 |
03/19/2021 |
196,000 |
183,000 |
20,130 |
1,000 |
19,130 |
||
| Property Building Permit History | |||||||||||
|---|---|---|---|---|---|---|---|---|---|---|---|
| Issued | Permit # | Provided by | Bldg # | Description | Est Construction Cost | Status | |||||
| No Building Permit records returned. | |||||||||||
| Click button on building number to access detailed information: | ||||||
|---|---|---|---|---|---|---|
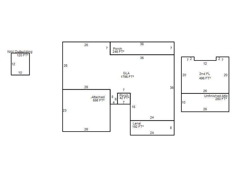
| Bldg # | Vacant/Improved Land | Bldg Description | Year Built | SqFt | # Stories | |
|
1 |
Improved |
1½ Story Fin |
1978 |
2,291 |
1.5 Stories |
|