|
|
|
| Larry Stein Oklahoma County Assessor (405) 713-1200 - Public Access System |
|
|
|
|
|
|
| Real Property Display - Screen Produced 4/4/2026 7:18:11 AM | ||||
|---|---|---|---|---|
| Account: R126361150 | Type: Residential | Location: |
6425 PLUM THICKET RD |
|
| Building Name/Occupant: |
|
OKLAHOMA CITY |
||
| Owner Name 1: | TINKLE KEVIN & KATIE |
Parcel PIN#: |
3882-12-636-1150 |
|
| Owner Name 2: | 1/4 section #: |
3882 |
||
| Owner Name 3: | Parent Acct: |
|
||
| Billing Address: | 6425 PLUM THICKET RD | Tax District: |
|
|
| City, State, Zip | OKLAHOMA CITY, OK 73162 | School System: |
Putnam City #1 |
|
|
Country: (If noted) |
UNITED STATES |
Land Size: |
0.4603 Acres |
|
|
Land Value: 65,920 |
|
|||
|
Sect 21-T13N-R4W Qtr SE |
BLUE STEM LK SEC 7 PT B 20-22
Block
022
Lot
007
|
|||
| Full Legal Description: BLUE STEM LK SEC 7 PT B 20-22 022 007 |
| Photo & Sketch (if available) | Comp Sales (ordered by relevancy) |
|
||||||||||||||||||
|
||||||||||||||||||||
| Value History (*The County Treasurer 405-713-1300 posts & collects actual tax amounts. Contact information HERE) | |||||||||||||
|---|---|---|---|---|---|---|---|---|---|---|---|---|---|
| Year | Market Value | Taxable Mkt Value | Gross Assessed | Exemption | Net Assessed | Millage | Est. Tax | Tax Savings | |||||
|
2026 |
512,500 |
512,500 |
56,375 |
1,000 |
55,375 |
123.17 |
$6,821 |
$123 |
|||||
|
2025 |
507,000 |
405,182 |
44,569 |
1,000 |
43,569 |
123.17 |
$5,367 |
$1,503 |
|||||
|
2024 |
483,500 |
393,381 |
43,271 |
1,000 |
42,271 |
122.30 |
$5,170 |
$1,335 |
|||||
|
2023 |
454,000 |
381,924 |
42,011 |
1,000 |
41,011 |
121.91 |
$5,000 |
$1,088 |
|||||
|
2022 |
408,000 |
370,800 |
40,788 |
1,000 |
39,788 |
123.41 |
$4,910 |
$628 |
|||||
| Property Account Status/Adjustments/Exemptions | ||
|---|---|---|
| Account # | Exemption Description | Amount |
|
R126361150 |
Homestead |
1,000 |
| Property Deed Transaction History (Recorded in the County Clerk's Office) | |||||||
|---|---|---|---|---|---|---|---|
| Date | Type | Book | Page | Price | Grantor | Grantee | |
|
6/26/2025 |
|
Deeds |
$520,000 |
CROUCH DONA REV TRUST |
TINKLE KEVIN & KATIE |
||
|
12/5/2007 |
|
Deeds |
$0 |
CROUCH C BRAD & DONA |
CROUCH DONA REV TRUST |
||
|
9/5/1990 |
|
Historical |
$0 |
INVEST WEST INC |
CROUCH C BRAD & DONA |
||
|
9/20/1989 |
|
Historical |
$0 |
|
INVEST WEST INC |
||
| Last Mailed Notice of Value (N.O.V.) Information/History | ||||||||
|---|---|---|---|---|---|---|---|---|
| Year | Date | Market Value | Taxable Market Value | Gross Assessed | Exemption | Net Assessed | ||
|
2026 |
02/23/2026 |
512,500 |
512,500 |
56,375 |
0 |
56,375 |
||
|
2025 |
02/14/2025 |
507,000 |
405,182 |
44,569 |
1,000 |
43,569 |
||
|
2024 |
02/13/2024 |
483,500 |
393,381 |
43,271 |
1,000 |
42,271 |
||
|
2023 |
02/14/2023 |
454,000 |
381,924 |
42,011 |
1,000 |
41,011 |
||
|
2022 |
03/15/2022 |
408,000 |
370,800 |
40,788 |
1,000 |
39,788 |
||
| Property Building Permit History | |||||||||||
|---|---|---|---|---|---|---|---|---|---|---|---|
| Issued | Permit # | Provided by | Bldg # | Description | Est Construction Cost | Status | |||||
| No Building Permit records returned. | |||||||||||
| Click button on building number to access detailed information: | ||||||
|---|---|---|---|---|---|---|
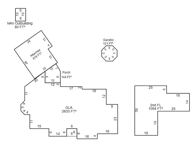
| Bldg # | Vacant/Improved Land | Bldg Description | Year Built | SqFt | # Stories | |
|
1 |
Improved |
1½ Story Fin |
1991 |
3,727 |
1.5 Stories |
|