|
|
|
| Larry Stein Oklahoma County Assessor (405) 713-1200 - Public Access System |
|
|
|
|
|
|
| Real Property Display - Screen Produced 3/22/2026 10:15:31 AM | ||||
|---|---|---|---|---|
| Account: R129521120 | Type: Residential | Location: |
6720 NW 119TH ST |
|
| Building Name/Occupant: |
|
OKLAHOMA CITY |
||
| Owner Name 1: | WEEKS SARAH CHANTEL & DESTRY |
Parcel PIN#: |
3884-12-952-1120 |
|
| Owner Name 2: | 1/4 section #: |
3884 |
||
| Owner Name 3: | Parent Acct: |
|
||
| Billing Address: | 6720 NW 119TH ST | Tax District: |
|
|
| City, State, Zip | OKLAHOMA CITY, OK 73162-1777 | School System: |
Putnam City #1 |
|
|
Country: (If noted) |
Land Size: |
0.2292 Acres |
||
|
Land Value: 55,107 |
|
|||
|
Sect 21-T13N-R4W Qtr NW |
WARWICK WEST SEC 3
Block
007
Lot
008
|
|||
| Full Legal Description: WARWICK WEST SEC 3 007 008 |
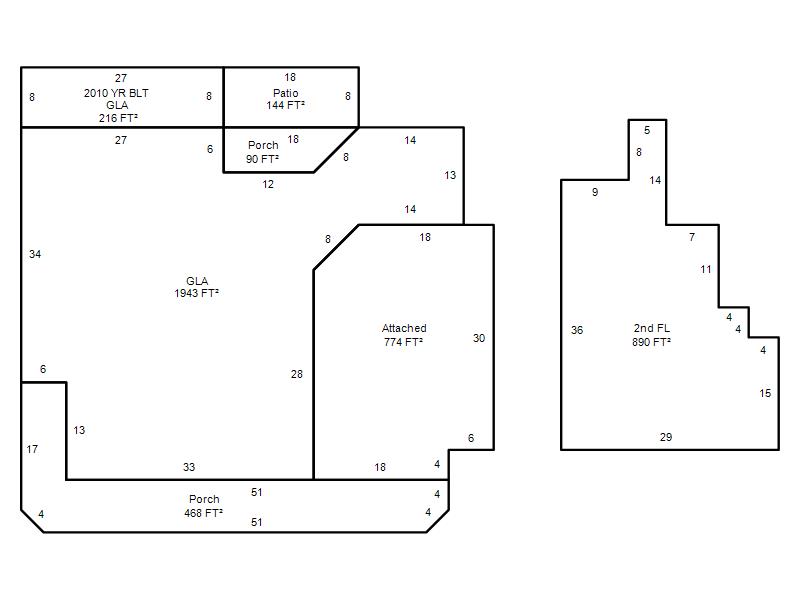
| Photo & Sketch (if available) | Comp Sales (ordered by relevancy) |
|
||||||||||||||||||
|
||||||||||||||||||||
| Value History (*The County Treasurer 405-713-1300 posts & collects actual tax amounts. Contact information HERE) | |||||||||||||
|---|---|---|---|---|---|---|---|---|---|---|---|---|---|
| Year | Market Value | Taxable Mkt Value | Gross Assessed | Exemption | Net Assessed | Millage | Est. Tax | Tax Savings | |||||
|
2025 |
415,500 |
415,500 |
45,705 |
1,000 |
44,705 |
123.17 |
$5,506 |
$123 |
|||||
|
2024 |
394,500 |
325,146 |
35,765 |
0 |
35,765 |
122.30 |
$4,374 |
$933 |
|||||
|
2023 |
396,000 |
309,663 |
34,062 |
0 |
34,062 |
121.91 |
$4,153 |
$1,158 |
|||||
|
2022 |
328,000 |
294,918 |
32,440 |
0 |
32,440 |
123.41 |
$4,004 |
$449 |
|||||
|
2021 |
291,000 |
280,875 |
30,896 |
0 |
30,896 |
122.23 |
$3,776 |
$136 |
|||||
| Property Account Status/Adjustments/Exemptions | ||
|---|---|---|
| Account # | Exemption Description | Amount |
|
R129521120 |
3% Cap Homestead |
0 |
|
R129521120 |
Homestead |
1,000 |
| Property Deed Transaction History (Recorded in the County Clerk's Office) | ||||||||||
|---|---|---|---|---|---|---|---|---|---|---|
| Date | Type | Book | Page | Price | Grantor | Grantee | ||||
|
5/23/2024 |
|
Deeds |
$390,000 |
MELLON PETER C |
WEEKS SARAH CHANTEL & DESTRY |
|||||
|
6/27/2019 |
|
Deeds |
$279,000 |
DILL JACQUELYN L LIVING TRUST |
MELLON PETER C |
|||||
|
5/17/2010 |
|
Deeds |
$230,000 |
ACKER ROBERT C III & DIANA LEIGH |
DILL JACQUELYN L LIVING TRUST |
|||||
|
1/21/2005 |
|
Deeds |
$0 |
ACKER ROBERT C III |
ACKER ROBERT C III & DIANA LEIGH |
|||||
|
12/22/2003 |
|
Deeds |
$230,000 |
CULPEPPER TAYLOR C |
ACKER ROBERT C III |
|||||
| Last Mailed Notice of Value (N.O.V.) Information/History | ||||||||
|---|---|---|---|---|---|---|---|---|
| Year | Date | Market Value | Taxable Market Value | Gross Assessed | Exemption | Net Assessed | ||
|
2026 |
02/23/2026 |
420,500 |
420,500 |
46,255 |
1,000 |
45,255 |
||
|
2025 |
02/14/2025 |
415,500 |
415,500 |
45,705 |
1,000 |
44,705 |
||
|
2024 |
02/13/2024 |
394,500 |
325,146 |
35,765 |
0 |
35,765 |
||
|
2023 |
02/14/2023 |
396,000 |
309,663 |
34,062 |
0 |
34,062 |
||
|
2022 |
03/15/2022 |
328,000 |
294,918 |
32,440 |
0 |
32,440 |
||
| Property Building Permit History | ||||||
|---|---|---|---|---|---|---|
| Issued | Permit # | Provided by | Bldg # | Description | Est Construction Cost | Status |
|
6/26/1996 |
10225926 |
OKLAHOMA CITY |
1 |
Main Dwellin |
135,000 |
Inactive |
| Click button on building number to access detailed information: | ||||||
|---|---|---|---|---|---|---|
| Bldg # | Vacant/Improved Land | Bldg Description | Year Built | SqFt | # Stories | |
|
1 |
Improved |
1½ Story Fin |
1997 |
3,049 |
1.5 Stories |
|