|
|
|
| Larry Stein Oklahoma County Assessor (405) 713-1200 - Public Access System |
|
|
|
|
|
|
| Real Property Display - Screen Produced 3/17/2026 7:31:21 AM | ||||
|---|---|---|---|---|
| Account: R150548460 | Type: Residential | Location: |
506 E CURTIS DR |
|
| Building Name/Occupant: |
|
MIDWEST CITY |
||
| Owner Name 1: | OGHENEKARO ONOBEOGHENE |
Parcel PIN#: |
1438-15-054-8460 |
|
| Owner Name 2: | 1/4 section #: |
1438 |
||
| Owner Name 3: | Parent Acct: |
|
||
| Billing Address: | 4181 APLICELLA CT | Tax District: |
|
|
| City, State, Zip | MANTECA, CA 95337-8479 | School System: |
Mid-Del #52 |
|
|
Country: (If noted) |
Land Size: |
0.1286 Acres |
||
|
Land Value: 16,240 |
|
|||
|
Sect 10-T11N-R2W Qtr SE |
CHESSER ADDITION
Block
011
Lot
015
|
|||
| Full Legal Description: CHESSER ADDITION 011 015 |
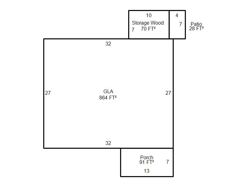
| Photo & Sketch (if available) | Comp Sales (ordered by relevancy) |
|
||||||||||||||||||
|
||||||||||||||||||||
| Value History (*The County Treasurer 405-713-1300 posts & collects actual tax amounts. Contact information HERE) | |||||||||||||
|---|---|---|---|---|---|---|---|---|---|---|---|---|---|
| Year | Market Value | Taxable Mkt Value | Gross Assessed | Exemption | Net Assessed | Millage | Est. Tax | Tax Savings | |||||
|
2025 |
86,500 |
52,092 |
5,729 |
0 |
5,729 |
119.58 |
$685 |
$453 |
|||||
|
2024 |
80,500 |
49,612 |
5,456 |
0 |
5,456 |
122.51 |
$669 |
$416 |
|||||
|
2023 |
70,500 |
47,250 |
5,197 |
0 |
5,197 |
117.71 |
$612 |
$301 |
|||||
|
2022 |
45,000 |
45,000 |
4,950 |
0 |
4,950 |
116.64 |
$577 |
$0 |
|||||
|
2021 |
45,000 |
45,000 |
4,950 |
0 |
4,950 |
119.45 |
$591 |
$0 |
|||||
| Property Account Status/Adjustments/Exemptions | ||||||
|---|---|---|---|---|---|---|
| Account # | Exemption Description | Amount | ||||
| No adjustment/exemption records returned. | ||||||
| Property Deed Transaction History (Recorded in the County Clerk's Office) | ||||||||||
|---|---|---|---|---|---|---|---|---|---|---|
| Date | Type | Book | Page | Price | Grantor | Grantee | ||||
|
3/18/2025 |
|
Deeds |
$70,000 |
ANDERSON KIRSTEN |
OGHENEKARO ONOBEOGHENE |
|||||
|
12/10/2024 |
|
Hmstd Off & |
$0 |
ANDERSON LISA M REV TRUST |
ANDERSON KIRSTEN |
|||||
|
12/3/2024 |
|
Hmstd Off & |
$0 |
ANDERSON LISA M |
ANDERSON LISA M REV TRUST |
|||||
|
6/4/2018 |
|
Deeds |
$45,000 |
DUDLEY ROBERT E |
ANDERSON LISA M |
|||||
|
9/23/1996 |
|
Historical |
$29,000 |
ROGERS COLLEEN M |
DUDLEY ROBERT E |
|||||
| Last Mailed Notice of Value (N.O.V.) Information/History | ||||||||
|---|---|---|---|---|---|---|---|---|
| Year | Date | Market Value | Taxable Market Value | Gross Assessed | Exemption | Net Assessed | ||
|
2026 |
02/06/2026 |
86,500 |
86,500 |
9,515 |
0 |
9,515 |
||
|
2025 |
01/31/2025 |
86,500 |
52,092 |
5,729 |
0 |
5,729 |
||
|
2024 |
01/22/2024 |
80,500 |
49,612 |
5,456 |
0 |
5,456 |
||
|
2023 |
01/23/2023 |
70,500 |
47,250 |
5,197 |
0 |
5,197 |
||
|
2018 |
04/09/2018 |
49,500 |
49,500 |
5,445 |
0 |
5,445 |
||
| Property Building Permit History | |||||||||||
|---|---|---|---|---|---|---|---|---|---|---|---|
| Issued | Permit # | Provided by | Bldg # | Description | Est Construction Cost | Status | |||||
| No Building Permit records returned. | |||||||||||
| Click button on building number to access detailed information: | ||||||
|---|---|---|---|---|---|---|
| Bldg # | Vacant/Improved Land | Bldg Description | Year Built | SqFt | # Stories | |
|
1 |
Improved |
Ranch 1 Story |
1944 |
864 |
1 Stories |
|