|
|
|
| Larry Stein Oklahoma County Assessor (405) 713-1200 - Public Access System |
|
|
|
|
|
|
| Real Property Display - Screen Produced 4/2/2026 9:04:16 AM | ||||
|---|---|---|---|---|
| Account: R124150500 | Type: Residential | Location: |
11525 N MERIDIAN AVE, Unit 207 |
|
| Building Name/Occupant: |
|
OKLAHOMA CITY |
||
| Owner Name 1: | BYRD DELOIS MARIE |
Parcel PIN#: |
3886-12-415-0500 |
|
| Owner Name 2: | 1/4 section #: |
3886 |
||
| Owner Name 3: | Parent Acct: |
|
||
| Billing Address: | 11525 N MERIDIAN AVE, Unit 207 | Tax District: |
|
|
| City, State, Zip | OKLAHOMA CITY, OK 73120 | School System: |
Oklahoma City #89 |
|
|
Country: (If noted) |
Land Size: |
1.0000 Site |
||
|
Land Value: 12,375 |
|
|||
|
Sect 22-T13N-R4W Qtr SE |
FOREST POINTE CONDOMINIUMS
Block
000
Lot
000
|
|||
| Full Legal Description: FOREST POINTE CONDOMINIUMS 000 000 UNIT 6C6 |
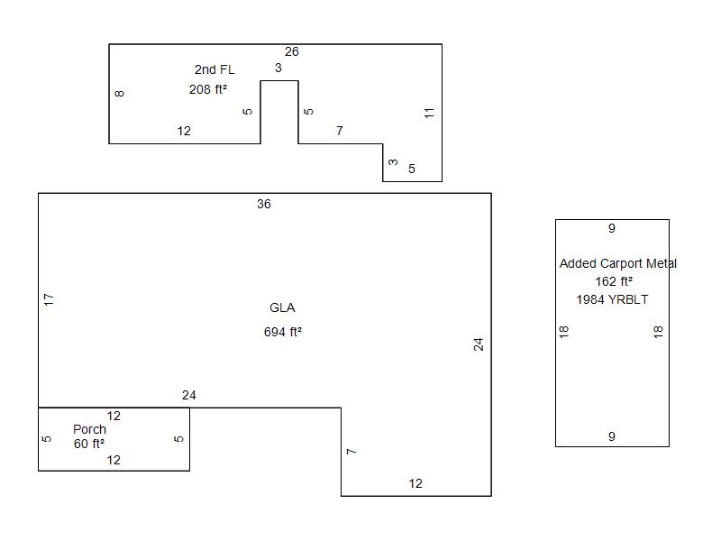
| Photo & Sketch (if available) | Comp Sales (ordered by relevancy) |
|
||||||||||||||||||
|
||||||||||||||||||||
| Value History (*The County Treasurer 405-713-1300 posts & collects actual tax amounts. Contact information HERE) | |||||||||||||
|---|---|---|---|---|---|---|---|---|---|---|---|---|---|
| Year | Market Value | Taxable Mkt Value | Gross Assessed | Exemption | Net Assessed | Millage | Est. Tax | Tax Savings | |||||
|
2026 |
142,000 |
142,000 |
15,620 |
1,000 |
14,620 |
122.90 |
$1,797 |
$123 |
|||||
|
2025 |
140,500 |
138,972 |
15,286 |
1,000 |
14,286 |
122.90 |
$1,756 |
$144 |
|||||
|
2024 |
138,500 |
134,925 |
14,841 |
0 |
14,841 |
123.89 |
$1,839 |
$49 |
|||||
|
2023 |
128,500 |
128,500 |
14,135 |
0 |
14,135 |
122.82 |
$1,736 |
$0 |
|||||
|
2022 |
92,000 |
86,546 |
9,519 |
0 |
9,519 |
117.63 |
$1,120 |
$71 |
|||||
| Property Account Status/Adjustments/Exemptions | ||
|---|---|---|
| Account # | Exemption Description | Amount |
|
R124150500 |
Homestead |
1,000 |
|
R124150500 |
3% Cap Homestead |
0 |
| Property Deed Transaction History (Recorded in the County Clerk's Office) | ||||||||||
|---|---|---|---|---|---|---|---|---|---|---|
| Date | Type | Book | Page | Price | Grantor | Grantee | ||||
|
6/7/2022 |
|
Deeds |
$130,000 |
TGC 207 LLC |
BYRD DELOIS MARIE |
|||||
|
6/15/2021 |
|
Hmstd Off & |
$ |
JOHNSON K LESLIE TRS |
TGC 207 LLC |
|||||
|
7/29/2019 |
|
Hmstd Off & |
$0 |
JOHNSON K LESLIE |
JOHNSON K LESLIE TRS |
|||||
|
7/29/2019 |
|
Hmstd Off & |
$0 |
TITUS JACKLYN A TRS |
JOHNSON K LESLIE |
|||||
|
7/10/2017 |
|
Deeds |
$77,500 |
REBSTOCK CHEVIS GRANT |
TITUS JACKLYN A TRS |
|||||
| Last Mailed Notice of Value (N.O.V.) Information/History | ||||||||
|---|---|---|---|---|---|---|---|---|
| Year | Date | Market Value | Taxable Market Value | Gross Assessed | Exemption | Net Assessed | ||
|
2026 |
02/23/2026 |
142,000 |
142,000 |
15,620 |
1,000 |
14,620 |
||
|
2025 |
02/14/2025 |
140,500 |
138,972 |
15,286 |
1,000 |
14,286 |
||
|
2024 |
02/13/2024 |
138,500 |
134,925 |
14,841 |
0 |
14,841 |
||
|
2023 |
02/14/2023 |
128,500 |
128,500 |
14,135 |
0 |
14,135 |
||
|
2022 |
03/15/2022 |
92,000 |
86,546 |
9,519 |
0 |
9,519 |
||
| Property Building Permit History | ||||||
|---|---|---|---|---|---|---|
| Issued | Permit # | Provided by | Bldg # | Description | Est Construction Cost | Status |
|
5/11/1995 |
10211178 |
OKLAHOMA CITY |
1 |
Burn - Trip |
0 |
Inactive |
| Click button on building number to access detailed information: | ||||||
|---|---|---|---|---|---|---|
| Bldg # | Vacant/Improved Land | Bldg Description | Year Built | SqFt | # Stories | |
|
1 |
Improved |
Condo <= 3 Stories |
1984 |
902 |
1 Stories |
|