|
|
|
| Larry Stein Oklahoma County Assessor (405) 713-1200 - Public Access System |
|
|
|
|
|
|
| Real Property Display - Screen Produced 4/4/2026 10:21:24 PM | ||||
|---|---|---|---|---|
| Account: R122571240 | Type: Residential | Location: |
12011 CANTLE RD |
|
| Building Name/Occupant: |
|
OKLAHOMA CITY |
||
| Owner Name 1: | HARRISON WESLEY |
Parcel PIN#: |
3892-12-257-1240 |
|
| Owner Name 2: | ROBINSON TARYN | 1/4 section #: |
3892 |
|
| Owner Name 3: | Parent Acct: |
|
||
| Billing Address: | 12011 CANTLE RD | Tax District: |
|
|
| City, State, Zip | OKLAHOMA CITY, OK 73120-8029 | School System: |
Oklahoma City #89 |
|
|
Country: (If noted) |
Land Size: |
0.1708 Acres |
||
|
Land Value: 43,789 |
|
|||
|
Sect 23-T13N-R4W Qtr NW |
THE ARBORS BLKS 17 & 18
Block
017
Lot
025
|
|||
| Full Legal Description: THE ARBORS BLKS 17 & 18 017 025 |
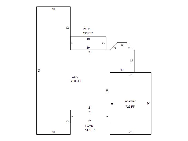
| Photo & Sketch (if available) | Comp Sales (ordered by relevancy) |
|
||||||||||||||||||
|
||||||||||||||||||||
| Value History (*The County Treasurer 405-713-1300 posts & collects actual tax amounts. Contact information HERE) | |||||||||||||
|---|---|---|---|---|---|---|---|---|---|---|---|---|---|
| Year | Market Value | Taxable Mkt Value | Gross Assessed | Exemption | Net Assessed | Millage | Est. Tax | Tax Savings | |||||
|
2026 |
338,000 |
338,000 |
37,180 |
0 |
37,180 |
122.90 |
$4,569 |
$0 |
|||||
|
2025 |
322,000 |
178,977 |
19,687 |
1,000 |
18,687 |
122.90 |
$2,297 |
$2,056 |
|||||
|
2024 |
306,500 |
178,977 |
19,687 |
1,000 |
18,687 |
123.89 |
$2,315 |
$1,862 |
|||||
|
2023 |
298,500 |
178,977 |
19,687 |
1,000 |
18,687 |
122.82 |
$2,295 |
$1,738 |
|||||
|
2022 |
247,500 |
178,977 |
19,687 |
1,000 |
18,687 |
117.63 |
$2,198 |
$1,004 |
|||||
| Property Account Status/Adjustments/Exemptions | ||||||
|---|---|---|---|---|---|---|
| Account # | Exemption Description | Amount | ||||
| No adjustment/exemption records returned. | ||||||
| Property Deed Transaction History (Recorded in the County Clerk's Office) | ||||||||||
|---|---|---|---|---|---|---|---|---|---|---|
| Date | Type | Book | Page | Price | Grantor | Grantee | ||||
|
9/11/2025 |
|
Deeds |
$279,000 |
ROSSON RONALD W TRS |
HARRISON WESLEY |
|||||
|
8/17/2005 |
|
Deeds |
$0 |
ROSSON RONALD W |
ROSSON RONALD W TRS |
|||||
|
6/9/2004 |
|
Deeds |
$170,000 |
NEALON RUBY K |
ROSSON RONALD W |
|||||
|
4/4/2003 |
|
Deeds |
$178,500 |
MCGINN MARIE L |
NEALON RUBY K |
|||||
|
3/24/2003 |
|
Deeds |
$0 |
MCGINN MARIE L MCGINN TIMOTHY V |
MCGINN MARIE L |
|||||
| Last Mailed Notice of Value (N.O.V.) Information/History | ||||||||
|---|---|---|---|---|---|---|---|---|
| Year | Date | Market Value | Taxable Market Value | Gross Assessed | Exemption | Net Assessed | ||
|
2026 |
02/23/2026 |
338,000 |
338,000 |
37,180 |
0 |
37,180 |
||
|
2025 |
02/14/2025 |
322,000 |
178,977 |
19,687 |
1,000 |
18,687 |
||
|
2024 |
02/13/2024 |
306,500 |
178,977 |
19,687 |
1,000 |
18,687 |
||
|
2023 |
02/14/2023 |
298,500 |
178,977 |
19,687 |
1,000 |
18,687 |
||
|
2022 |
03/15/2022 |
247,500 |
178,977 |
19,687 |
1,000 |
18,687 |
||
| Property Building Permit History | ||||||
|---|---|---|---|---|---|---|
| Issued | Permit # | Provided by | Bldg # | Description | Est Construction Cost | Status |
|
2/3/1999 |
10208616 |
OKLAHOMA CITY |
1 |
Burn - Trip |
12,500 |
Inactive |
|
3/22/1993 |
10208615 |
OKLAHOMA CITY |
1 |
Main Dwellin |
80,000 |
Inactive |
| Click button on building number to access detailed information: | ||||||
|---|---|---|---|---|---|---|
| Bldg # | Vacant/Improved Land | Bldg Description | Year Built | SqFt | # Stories | |
|
1 |
Improved |
Ranch 1 Story |
1993 |
2,088 |
1 Stories |
|