|
|
|
| Larry Stein Oklahoma County Assessor (405) 713-1200 - Public Access System |
|
|
|
|
|
|
| Real Property Display - Screen Produced 3/31/2026 10:11:03 PM | ||||
|---|---|---|---|---|
| Account: R150141710 | Type: Residential | Location: |
201 W DOUGLAS DR |
|
| Building Name/Occupant: |
|
MIDWEST CITY |
||
| Owner Name 1: | WESTERFIELD JACOB |
Parcel PIN#: |
1439-15-014-1710 |
|
| Owner Name 2: | 1/4 section #: |
1439 |
||
| Owner Name 3: | Parent Acct: |
|
||
| Billing Address: | 201 W DOUGLAS DR | Tax District: |
|
|
| City, State, Zip | OKLAHOMA CITY, OK 73110-5513 | School System: |
Mid-Del #52 |
|
|
Country: (If noted) |
Land Size: |
0.1752 Acres |
||
|
Land Value: 20,225 |
|
|||
|
Sect 10-T11N-R2W Qtr SW |
ATKINSON HEIGHTS ADD
Block
004
Lot
035
|
|||
| Full Legal Description: ATKINSON HEIGHTS ADD 004 035 |
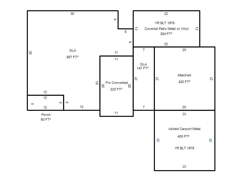
| Photo & Sketch (if available) | Comp Sales (ordered by relevancy) |
|
||||||||||||||||||
|
||||||||||||||||||||
| Value History (*The County Treasurer 405-713-1300 posts & collects actual tax amounts. Contact information HERE) | |||||||||||||
|---|---|---|---|---|---|---|---|---|---|---|---|---|---|
| Year | Market Value | Taxable Mkt Value | Gross Assessed | Exemption | Net Assessed | Millage | Est. Tax | Tax Savings | |||||
|
2026 |
125,500 |
125,500 |
13,805 |
0 |
13,805 |
119.58 |
$1,651 |
$0 |
|||||
|
2025 |
124,500 |
124,500 |
13,695 |
0 |
13,695 |
119.58 |
$1,638 |
$0 |
|||||
|
2024 |
119,500 |
111,825 |
12,300 |
0 |
12,300 |
122.51 |
$1,507 |
$103 |
|||||
|
2023 |
106,500 |
106,500 |
11,715 |
0 |
11,715 |
117.71 |
$1,379 |
$0 |
|||||
|
2022 |
95,500 |
77,726 |
8,549 |
0 |
8,549 |
116.64 |
$997 |
$228 |
|||||
| Property Account Status/Adjustments/Exemptions | ||
|---|---|---|
| Account # | Exemption Description | Amount |
|
R150141710 |
5% Capped Account |
0 |
| Property Deed Transaction History (Recorded in the County Clerk's Office) | |||||||
|---|---|---|---|---|---|---|---|
| Date | Type | Book | Page | Price | Grantor | Grantee | |
|
3/1/2024 |
|
Deeds |
$120,000 |
LILLIAN LAND & PROPERTY GROUP LLC |
WESTERFIELD JACOB |
||
|
2/28/2022 |
|
Mult Parcel |
$245,000 |
DAN FRANK ENTERPRISES LLC |
LELLIAN LAND & PROPERTY GROUP LLC |
||
|
11/7/2011 |
|
Deeds |
$30,000 |
COYLE MARK A |
DAN FRANK ENTERPRISES LLC |
||
|
11/1/1976 |
|
Historical |
$0 |
|
COYLE MARK A |
||
| Last Mailed Notice of Value (N.O.V.) Information/History | ||||||||
|---|---|---|---|---|---|---|---|---|
| Year | Date | Market Value | Taxable Market Value | Gross Assessed | Exemption | Net Assessed | ||
|
2026 |
02/06/2026 |
125,500 |
125,500 |
13,805 |
0 |
13,805 |
||
|
2025 |
01/31/2025 |
124,500 |
124,500 |
13,695 |
0 |
13,695 |
||
|
2024 |
01/22/2024 |
119,500 |
111,825 |
12,300 |
0 |
12,300 |
||
|
2024 |
04/05/2024 |
119,500 |
111,825 |
12,300 |
0 |
12,300 |
||
|
2023 |
01/23/2023 |
106,500 |
106,500 |
11,715 |
0 |
11,715 |
||
| Property Building Permit History | |||||||||||
|---|---|---|---|---|---|---|---|---|---|---|---|
| Issued | Permit # | Provided by | Bldg # | Description | Est Construction Cost | Status | |||||
| No Building Permit records returned. | |||||||||||
| Click button on building number to access detailed information: | ||||||
|---|---|---|---|---|---|---|
| Bldg # | Vacant/Improved Land | Bldg Description | Year Built | SqFt | # Stories | |
|
1 |
Improved |
Ranch 1 Story |
1942 |
1,014 |
1 Stories |
|