|
|
|
| Larry Stein Oklahoma County Assessor (405) 713-1200 - Public Access System |
|
|
|
|
|
|
| Real Property Display - Screen Produced 4/4/2026 7:25:38 AM | ||||
|---|---|---|---|---|
| Account: R103831185 | Type: Residential | Location: |
3304 W ROCK CREEK RD |
|
| Building Name/Occupant: |
|
OKLAHOMA CITY |
||
| Owner Name 1: | TEAM REALTY INVESTMENTS LLC |
Parcel PIN#: |
3894-10-383-1185 |
|
| Owner Name 2: | 1/4 section #: |
3894 |
||
| Owner Name 3: | Parent Acct: |
|
||
| Billing Address: | 6109 SUDBURY DR | Tax District: |
|
|
| City, State, Zip | OKLAHOMA CITY, OK 73162-1723 | School System: |
Oklahoma City #89 |
|
|
Country: (If noted) |
Land Size: |
0.2238 Acres |
||
|
Land Value: 59,963 |
|
|||
|
Sect 24-T13N-R4W Qtr SE |
QUAIL CREEK SEC 12
Block
108
Lot
002
|
|||
| Full Legal Description: QUAIL CREEK SEC 12 108 002 |
| Photo & Sketch (if available) | Comp Sales (ordered by relevancy) |
|
||||||||||||||||||
|
||||||||||||||||||||
| Value History (*The County Treasurer 405-713-1300 posts & collects actual tax amounts. Contact information HERE) | |||||||||||||
|---|---|---|---|---|---|---|---|---|---|---|---|---|---|
| Year | Market Value | Taxable Mkt Value | Gross Assessed | Exemption | Net Assessed | Millage | Est. Tax | Tax Savings | |||||
|
2026 |
456,500 |
456,500 |
50,215 |
0 |
50,215 |
122.90 |
$6,171 |
$0 |
|||||
|
2025 |
438,000 |
438,000 |
48,180 |
0 |
48,180 |
122.90 |
$5,921 |
$0 |
|||||
|
2024 |
422,500 |
422,500 |
46,475 |
0 |
46,475 |
123.89 |
$5,758 |
$0 |
|||||
|
2023 |
402,000 |
247,275 |
27,200 |
0 |
27,200 |
122.82 |
$3,341 |
$2,090 |
|||||
|
2022 |
235,500 |
235,500 |
25,905 |
0 |
25,905 |
117.63 |
$3,047 |
$0 |
|||||
| Property Account Status/Adjustments/Exemptions | ||
|---|---|---|
| Account # | Exemption Description | Amount |
|
R103831185 |
5% Capped Account |
0 |
| Property Deed Transaction History (Recorded in the County Clerk's Office) | ||||||||||
|---|---|---|---|---|---|---|---|---|---|---|
| Date | Type | Book | Page | Price | Grantor | Grantee | ||||
|
3/16/2023 |
|
Deeds |
$333,000 |
OKC DREAM HOME LLC |
TEAM REALTY INVESTMENTS LLC |
|||||
|
5/27/2021 |
|
Deeds |
$230,000 |
WOODWARD KAREN M |
OKC DREAM HOME LLC |
|||||
|
9/19/2012 |
|
Deeds |
$0 |
WOODARD DARREN B & KAREN M |
WOODWARD KAREN M |
|||||
|
1/26/2011 |
|
Deeds |
$145,000 |
MARSEL ALICE WOMACK |
WOODARD DARREN B & KAREN M |
|||||
|
8/8/2003 |
|
Deeds |
$183,500 |
HORN BRIAN K |
MARSEL ALICE WOMACK |
|||||
| Last Mailed Notice of Value (N.O.V.) Information/History | ||||||||
|---|---|---|---|---|---|---|---|---|
| Year | Date | Market Value | Taxable Market Value | Gross Assessed | Exemption | Net Assessed | ||
|
2026 |
02/23/2026 |
456,500 |
456,500 |
50,215 |
0 |
50,215 |
||
|
2025 |
02/14/2025 |
438,000 |
438,000 |
48,180 |
0 |
48,180 |
||
|
2024 |
02/13/2024 |
422,500 |
422,500 |
46,475 |
0 |
46,475 |
||
|
2023 |
02/14/2023 |
402,000 |
247,275 |
27,200 |
0 |
27,200 |
||
|
2022 |
03/15/2022 |
235,500 |
235,500 |
25,905 |
0 |
25,905 |
||
| Property Building Permit History | |||||||||||
|---|---|---|---|---|---|---|---|---|---|---|---|
| Issued | Permit # | Provided by | Bldg # | Description | Est Construction Cost | Status | |||||
| No Building Permit records returned. | |||||||||||
| Click button on building number to access detailed information: | ||||||
|---|---|---|---|---|---|---|
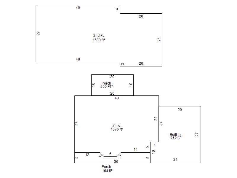
| Bldg # | Vacant/Improved Land | Bldg Description | Year Built | SqFt | # Stories | |
|
1 |
Improved |
2 Story |
1972 |
2,656 |
2 Stories |
|