|
|
|
| Larry Stein Oklahoma County Assessor (405) 713-1200 - Public Access System |
|
|
|
|
|
|
| Real Property Display - Screen Produced 4/4/2026 2:19:26 PM | ||||
|---|---|---|---|---|
| Account: R106151145 | Type: Residential | Location: |
11301 BLUE SAGE RD |
|
| Building Name/Occupant: |
|
OKLAHOMA CITY |
||
| Owner Name 1: | WILSHIRE SQUARE PH LLC |
Parcel PIN#: |
3894-10-615-1145 |
|
| Owner Name 2: | 1/4 section #: |
3894 |
||
| Owner Name 3: | Parent Acct: |
|
||
| Billing Address: | 3312 ROCK HOLLOW RD | Tax District: |
|
|
| City, State, Zip | OKLAHOMA CITY, OK 73120-1930 | School System: |
Oklahoma City #89 |
|
|
Country: (If noted) |
Land Size: |
0.2377 Acres |
||
|
Land Value: 67,825 |
|
|||
|
Sect 24-T13N-R4W Qtr SE |
QUAIL CREEK SEC 37
Block
121
Lot
016
|
|||
| Full Legal Description: QUAIL CREEK SEC 37 121 016 |
| Photo & Sketch (if available) | Comp Sales (ordered by relevancy) |
|
||||||||||||||||||
|
||||||||||||||||||||
| Value History (*The County Treasurer 405-713-1300 posts & collects actual tax amounts. Contact information HERE) | |||||||||||||
|---|---|---|---|---|---|---|---|---|---|---|---|---|---|
| Year | Market Value | Taxable Mkt Value | Gross Assessed | Exemption | Net Assessed | Millage | Est. Tax | Tax Savings | |||||
|
2026 |
450,500 |
450,500 |
49,555 |
0 |
49,555 |
122.90 |
$6,090 |
$0 |
|||||
|
2025 |
446,000 |
441,525 |
48,567 |
0 |
48,567 |
122.90 |
$5,969 |
$60 |
|||||
|
2024 |
420,500 |
420,500 |
46,255 |
0 |
46,255 |
123.89 |
$5,731 |
$0 |
|||||
|
2023 |
403,000 |
273,734 |
30,110 |
1,000 |
29,110 |
122.82 |
$3,575 |
$1,869 |
|||||
|
2022 |
331,000 |
273,734 |
30,110 |
1,000 |
29,110 |
117.63 |
$3,424 |
$859 |
|||||
| Property Account Status/Adjustments/Exemptions | ||
|---|---|---|
| Account # | Exemption Description | Amount |
|
R106151145 |
5% Capped Account |
0 |
| Property Deed Transaction History (Recorded in the County Clerk's Office) | ||||||||||
|---|---|---|---|---|---|---|---|---|---|---|
| Date | Type | Book | Page | Price | Grantor | Grantee | ||||
|
9/1/2023 |
|
Deeds |
$402,000 |
CULLEN FAMILY TRUST |
WILSHIRE SQUARE PH LLC |
|||||
|
7/19/2018 |
|
Deeds |
$0 |
CULLEN TERRENCE A & MARY ELLEN CO TRS |
CULLEN FAMILY TRUST |
|||||
|
10/11/2000 |
|
Deeds |
$0 |
CULLEN TERRENCE A & MARY ELLEN |
CULLEN TERRENCE A & MARY ELLEN CO TRS |
|||||
|
1/5/2000 |
|
Deeds |
$163,000 |
LEWIS PEGGY A |
CULLEN TERRENCE A & MARY ELLEN |
|||||
|
10/5/1998 |
|
Historical |
$150,000 |
MORRIS KENNETH & MARJORIE TRS |
LEWIS PEGGY A |
|||||
| Last Mailed Notice of Value (N.O.V.) Information/History | ||||||||
|---|---|---|---|---|---|---|---|---|
| Year | Date | Market Value | Taxable Market Value | Gross Assessed | Exemption | Net Assessed | ||
|
2026 |
02/23/2026 |
450,500 |
450,500 |
49,555 |
0 |
49,555 |
||
|
2025 |
02/14/2025 |
446,000 |
441,525 |
48,567 |
0 |
48,567 |
||
|
2024 |
02/13/2024 |
420,500 |
420,500 |
46,255 |
0 |
46,255 |
||
|
2023 |
02/14/2023 |
403,000 |
273,734 |
30,110 |
1,000 |
29,110 |
||
|
2022 |
03/15/2022 |
331,000 |
273,734 |
30,110 |
1,000 |
29,110 |
||
| Property Building Permit History | |||||||||||
|---|---|---|---|---|---|---|---|---|---|---|---|
| Issued | Permit # | Provided by | Bldg # | Description | Est Construction Cost | Status | |||||
| No Building Permit records returned. | |||||||||||
| Click button on building number to access detailed information: | ||||||
|---|---|---|---|---|---|---|
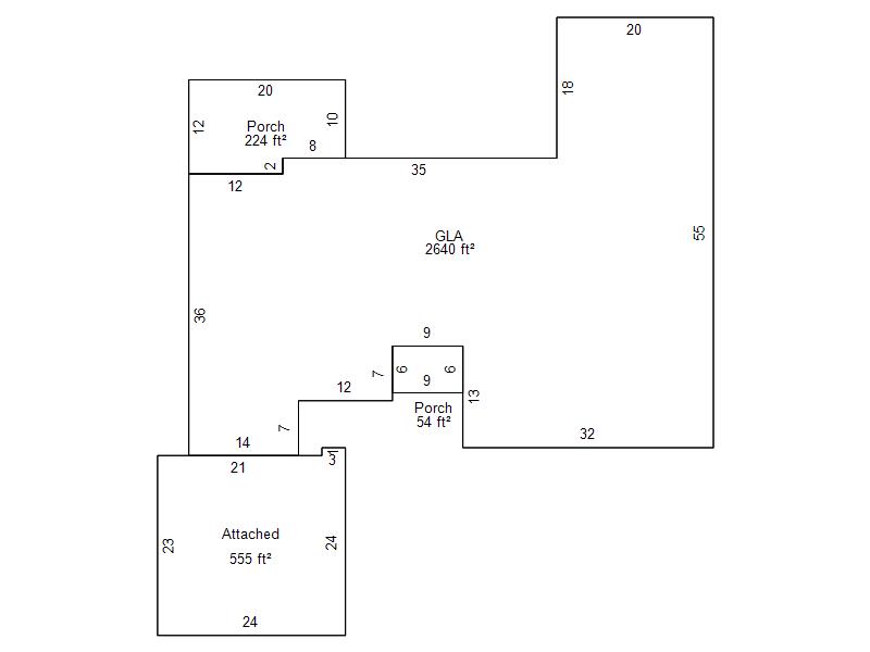
| Bldg # | Vacant/Improved Land | Bldg Description | Year Built | SqFt | # Stories | |
|
1 |
Improved |
Ranch 1 Story |
1980 |
2,640 |
1 Stories |
|