|
|
|
| Larry Stein Oklahoma County Assessor (405) 713-1200 - Public Access System |
|
|
|
|
|
|
| Real Property Display - Screen Produced 2/28/2026 4:41:38 AM | ||||
|---|---|---|---|---|
| Account: R148852200 | Type: Residential | Location: |
5820 HEFNER VILLAGE CIR |
|
| Building Name/Occupant: |
|
OKLAHOMA CITY |
||
| Owner Name 1: | RAKIA LLC |
Parcel PIN#: |
3907-14-885-2200 |
|
| Owner Name 2: | 1/4 section #: |
3907 |
||
| Owner Name 3: | Parent Acct: |
|
||
| Billing Address: | 427 GARRETT AVE | Tax District: |
|
|
| City, State, Zip | LINDSAY, OK 73052 | School System: |
Putnam City #1 |
|
|
Country: (If noted) |
Land Size: |
0.0468 Acres |
||
|
Land Value: 17,952 |
|
|||
|
Sect 27-T13N-R4W Qtr SW |
HEFNER VILLAGE 1
Block
031
Lot
003
|
|||
| Full Legal Description: HEFNER VILLAGE 1 031 003 |
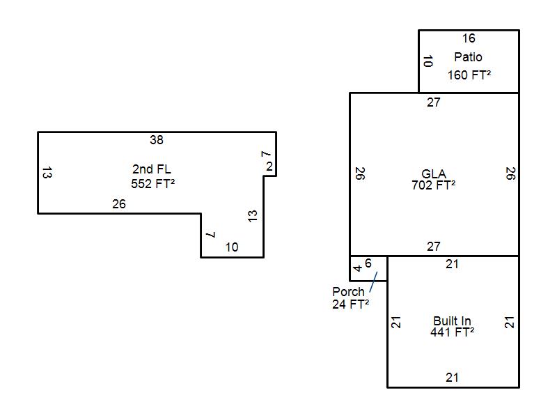
| Photo & Sketch (if available) | Comp Sales (ordered by relevancy) |
|
||||||||||||||||||
|
||||||||||||||||||||
| Value History (*The County Treasurer 405-713-1300 posts & collects actual tax amounts. Contact information HERE) | |||||||||||||
|---|---|---|---|---|---|---|---|---|---|---|---|---|---|
| Year | Market Value | Taxable Mkt Value | Gross Assessed | Exemption | Net Assessed | Millage | Est. Tax | Tax Savings | |||||
|
2025 |
138,000 |
131,197 |
14,431 |
0 |
14,431 |
123.17 |
$1,778 |
$92 |
|||||
|
2024 |
133,500 |
124,950 |
13,744 |
0 |
13,744 |
122.30 |
$1,681 |
$115 |
|||||
|
2023 |
119,000 |
119,000 |
13,090 |
0 |
13,090 |
121.91 |
$1,596 |
$0 |
|||||
|
2022 |
104,500 |
103,425 |
11,376 |
0 |
11,376 |
123.41 |
$1,404 |
$15 |
|||||
|
2021 |
98,500 |
98,500 |
10,835 |
0 |
10,835 |
122.23 |
$1,324 |
$0 |
|||||
| Property Account Status/Adjustments/Exemptions | ||
|---|---|---|
| Account # | Exemption Description | Amount |
|
R148852200 |
5% Capped Account |
0 |
| Property Deed Transaction History (Recorded in the County Clerk's Office) | |||||||
|---|---|---|---|---|---|---|---|
| Date | Type | Book | Page | Price | Grantor | Grantee | |
|
12/22/2022 |
|
Hmstd Off & |
$0 |
MISHEVA TSAREVA D |
RAKIA LLC |
||
|
5/18/2022 |
|
Deeds |
$117,500 |
KALIDY LLC |
MISHEVA TSAREVA D |
||
|
1/23/2017 |
|
Deeds |
$85,000 |
ARMSTRONG BRUCE W |
KALIDY LLC |
||
|
10/29/1987 |
|
Historical |
$40,000 |
DAVIS PATSY J |
ARMSTRONG BRUCE W |
||
|
3/1/1984 |
|
Historical |
$0 |
|
DAVIS PATSY J |
||
| Last Mailed Notice of Value (N.O.V.) Information/History | ||||||||
|---|---|---|---|---|---|---|---|---|
| Year | Date | Market Value | Taxable Market Value | Gross Assessed | Exemption | Net Assessed | ||
|
2026 |
02/23/2026 |
135,500 |
135,500 |
14,905 |
0 |
14,905 |
||
|
2025 |
02/14/2025 |
138,000 |
131,197 |
14,431 |
0 |
14,431 |
||
|
2024 |
02/13/2024 |
133,500 |
124,950 |
13,744 |
0 |
13,744 |
||
|
2023 |
02/14/2023 |
119,000 |
119,000 |
13,090 |
0 |
13,090 |
||
|
2022 |
03/15/2022 |
104,500 |
103,425 |
11,376 |
0 |
11,376 |
||
| Property Building Permit History | |||||||||||
|---|---|---|---|---|---|---|---|---|---|---|---|
| Issued | Permit # | Provided by | Bldg # | Description | Est Construction Cost | Status | |||||
| No Building Permit records returned. | |||||||||||
| Click button on building number to access detailed information: | ||||||
|---|---|---|---|---|---|---|
| Bldg # | Vacant/Improved Land | Bldg Description | Year Built | SqFt | # Stories | |
|
1 |
Improved |
Townhouse Multiple Story |
1974 |
1,254 |
2 Stories |
|