|
|
|
| Larry Stein Oklahoma County Assessor (405) 713-1200 - Public Access System |
|
|
|
|
|
|
| Real Property Display - Screen Produced 4/3/2026 5:48:52 AM | ||||
|---|---|---|---|---|
| Account: R149311130 | Type: Residential | Location: |
6513 NW 95TH ST |
|
| Building Name/Occupant: |
|
OKLAHOMA CITY |
||
| Owner Name 1: | DAY CHRISTOPHER MICHAEL & ALECIA LYNNE |
Parcel PIN#: |
3911-14-931-1130 |
|
| Owner Name 2: | 1/4 section #: |
3911 |
||
| Owner Name 3: | Parent Acct: |
|
||
| Billing Address: | 6513 NW 95TH ST | Tax District: |
|
|
| City, State, Zip | OKLAHOMA CITY, OK 73162-7406 | School System: |
Putnam City #1 |
|
|
Country: (If noted) |
Land Size: |
0.3037 Acres |
||
|
Land Value: 64,000 |
|
|||
|
Sect 28-T13N-R4W Qtr SW |
BRIARCREEK
Block
001
Lot
014
|
|||
| Full Legal Description: BRIARCREEK 001 014 |
| Photo & Sketch (if available) | Comp Sales (ordered by relevancy) |
|
||||||||||||||||||
|
||||||||||||||||||||
| Value History (*The County Treasurer 405-713-1300 posts & collects actual tax amounts. Contact information HERE) | |||||||||||||
|---|---|---|---|---|---|---|---|---|---|---|---|---|---|
| Year | Market Value | Taxable Mkt Value | Gross Assessed | Exemption | Net Assessed | Millage | Est. Tax | Tax Savings | |||||
|
2026 |
303,500 |
303,500 |
33,385 |
1,000 |
32,385 |
123.17 |
$3,989 |
$123 |
|||||
|
2025 |
304,500 |
275,186 |
30,269 |
1,000 |
29,269 |
123.17 |
$3,605 |
$520 |
|||||
|
2024 |
298,000 |
267,171 |
29,387 |
1,000 |
28,387 |
122.30 |
$3,472 |
$537 |
|||||
|
2023 |
288,000 |
259,390 |
28,532 |
1,000 |
27,532 |
121.91 |
$3,357 |
$506 |
|||||
|
2022 |
257,000 |
251,835 |
27,701 |
1,000 |
26,701 |
123.41 |
$3,295 |
$194 |
|||||
| Property Account Status/Adjustments/Exemptions | ||
|---|---|---|
| Account # | Exemption Description | Amount |
|
R149311130 |
Homestead |
1,000 |
| Property Deed Transaction History (Recorded in the County Clerk's Office) | ||||||||||
|---|---|---|---|---|---|---|---|---|---|---|
| Date | Type | Book | Page | Price | Grantor | Grantee | ||||
|
8/6/2025 |
|
Deeds |
$333,500 |
FLORER MURDOCK ERIN L |
DAY CHRISTOPHER MICHAEL & ALECIA LYNNE |
|||||
|
4/14/2020 |
|
Deeds |
$247,000 |
KENNEDY DAN |
FLORER MURDOCK ERIN L |
|||||
|
9/17/2019 |
|
Deeds |
$138,000 |
BROWN REALTY INVESTMENTS LLC |
KENNEDY DAN |
|||||
|
7/1/2019 |
|
Sheriff's/Ma |
$131,500 |
WHITAKER JACQUELINE K |
BROWN REALTY INVESTMENTS LLC |
|||||
|
2/13/2014 |
|
Hmstd Off & |
$0 |
WHITAKER JOANN |
WHITAKER JACQUELINE K |
|||||
| Last Mailed Notice of Value (N.O.V.) Information/History | ||||||||
|---|---|---|---|---|---|---|---|---|
| Year | Date | Market Value | Taxable Market Value | Gross Assessed | Exemption | Net Assessed | ||
|
2026 |
02/23/2026 |
303,500 |
303,500 |
33,385 |
0 |
33,385 |
||
|
2025 |
02/14/2025 |
304,500 |
275,186 |
30,269 |
1,000 |
29,269 |
||
|
2024 |
02/13/2024 |
298,000 |
267,171 |
29,387 |
1,000 |
28,387 |
||
|
2023 |
02/14/2023 |
288,000 |
259,390 |
28,532 |
1,000 |
27,532 |
||
|
2022 |
03/15/2022 |
257,000 |
251,835 |
27,701 |
1,000 |
26,701 |
||
| Property Building Permit History | |||||||||||
|---|---|---|---|---|---|---|---|---|---|---|---|
| Issued | Permit # | Provided by | Bldg # | Description | Est Construction Cost | Status | |||||
| No Building Permit records returned. | |||||||||||
| Click button on building number to access detailed information: | ||||||
|---|---|---|---|---|---|---|
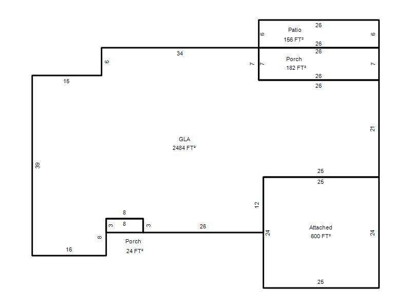
| Bldg # | Vacant/Improved Land | Bldg Description | Year Built | SqFt | # Stories | |
|
1 |
Improved |
Ranch 1 Story |
1982 |
2,484 |
1 Stories |
|