|
|
|
| Larry Stein Oklahoma County Assessor (405) 713-1200 - Public Access System |
|
|
|
|
|
|
| Real Property Display - Screen Produced 4/4/2026 5:09:20 AM | ||||
|---|---|---|---|---|
| Account: R148782650 | Type: Residential | Location: |
6801 TALBOT CANYON RD |
|
| Building Name/Occupant: |
|
OKLAHOMA CITY |
||
| Owner Name 1: | HARDWICK SPENCER |
Parcel PIN#: |
3912-14-878-2650 |
|
| Owner Name 2: | HARDWICK JERRY | 1/4 section #: |
3912 |
|
| Owner Name 3: | Parent Acct: |
|
||
| Billing Address: | 6801 TALBOT CANYON RD | Tax District: |
|
|
| City, State, Zip | OKLAHOMA CITY, OK 73162-6646 | School System: |
Putnam City #1 |
|
|
Country: (If noted) |
Land Size: |
0.1980 Acres |
||
|
Land Value: 38,813 |
|
|||
|
Sect 28-T13N-R4W Qtr NW |
CANYON NORTH SEC 1
Block
015
Lot
002
|
|||
| Full Legal Description: CANYON NORTH SEC 1 015 002 |
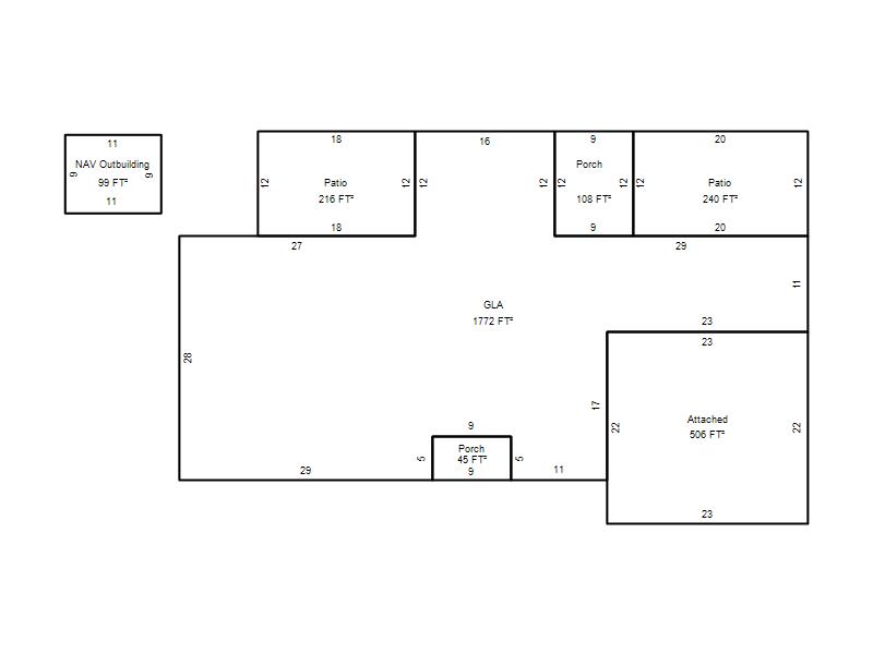
| Photo & Sketch (if available) | Comp Sales (ordered by relevancy) |
|
||||||||||||||||||
|
||||||||||||||||||||
| Value History (*The County Treasurer 405-713-1300 posts & collects actual tax amounts. Contact information HERE) | |||||||||||||
|---|---|---|---|---|---|---|---|---|---|---|---|---|---|
| Year | Market Value | Taxable Mkt Value | Gross Assessed | Exemption | Net Assessed | Millage | Est. Tax | Tax Savings | |||||
|
2026 |
225,500 |
225,500 |
24,805 |
1,000 |
23,805 |
123.17 |
$2,932 |
$123 |
|||||
|
2025 |
226,500 |
224,025 |
24,642 |
1,000 |
23,642 |
123.17 |
$2,912 |
$157 |
|||||
|
2024 |
217,500 |
217,500 |
23,925 |
1,000 |
22,925 |
122.30 |
$2,804 |
$122 |
|||||
|
2023 |
213,500 |
181,746 |
19,992 |
0 |
19,992 |
121.91 |
$2,437 |
$426 |
|||||
|
2022 |
183,500 |
173,092 |
19,039 |
0 |
19,039 |
123.41 |
$2,350 |
$141 |
|||||
| Property Account Status/Adjustments/Exemptions | ||
|---|---|---|
| Account # | Exemption Description | Amount |
|
R148782650 |
3% Cap Homestead |
0 |
|
R148782650 |
Homestead |
1,000 |
| Property Deed Transaction History (Recorded in the County Clerk's Office) | ||||||||||
|---|---|---|---|---|---|---|---|---|---|---|
| Date | Type | Book | Page | Price | Grantor | Grantee | ||||
|
8/14/2023 |
|
Deeds |
$0 |
DAVIS COLLETTE KATHLEEN TEAFATILLER TRS |
DAVIS COLLETTE KATHLEEN TEAFATILLER TRS |
|||||
|
8/14/2023 |
|
Deeds |
$250,000 |
DAVIS COLLETTE KATHLEEN TEAFATILLER TRS |
HARDWICK SPENCER |
|||||
|
2/4/2023 |
|
Hmstd Off & |
$0 |
DAVIS COLLETTE KATHLEEN |
DAVIS COLLETTE KATHLEEN TEAFATILLER TRS |
|||||
|
2/14/2019 |
|
Deeds |
$161,000 |
KIRTLEY MELISSA |
DAVIS COLLETTE KATHLEEN |
|||||
|
11/5/2018 |
|
Sheriff's/Ma |
$119,000 |
GONZALEZ JACOB R |
KIRTLEY MELISSA |
|||||
| Last Mailed Notice of Value (N.O.V.) Information/History | ||||||||
|---|---|---|---|---|---|---|---|---|
| Year | Date | Market Value | Taxable Market Value | Gross Assessed | Exemption | Net Assessed | ||
|
2026 |
02/23/2026 |
225,500 |
225,500 |
24,805 |
1,000 |
23,805 |
||
|
2025 |
02/14/2025 |
226,500 |
224,025 |
24,642 |
1,000 |
23,642 |
||
|
2024 |
02/13/2024 |
217,500 |
217,500 |
23,925 |
0 |
23,925 |
||
|
2023 |
02/14/2023 |
213,500 |
181,746 |
19,992 |
0 |
19,992 |
||
|
2023 |
03/02/2023 |
213,500 |
181,746 |
19,992 |
0 |
19,992 |
||
| Property Building Permit History | |||||||||||
|---|---|---|---|---|---|---|---|---|---|---|---|
| Issued | Permit # | Provided by | Bldg # | Description | Est Construction Cost | Status | |||||
| No Building Permit records returned. | |||||||||||
| Click button on building number to access detailed information: | ||||||
|---|---|---|---|---|---|---|
| Bldg # | Vacant/Improved Land | Bldg Description | Year Built | SqFt | # Stories | |
|
1 |
Improved |
Ranch 1 Story |
1977 |
1,772 |
1 Stories |
|