|
|
|
| Larry Stein Oklahoma County Assessor (405) 713-1200 - Public Access System |
|
|
|
|
|
|
| Real Property Display - Screen Produced 3/17/2026 7:31:21 AM | ||||
|---|---|---|---|---|
| Account: R150103275 | Type: Residential | Location: |
221 E MYRTLE DR |
|
| Building Name/Occupant: |
|
MIDWEST CITY |
||
| Owner Name 1: | CAMOZZI STEPHEN |
Parcel PIN#: |
1440-15-010-3275 |
|
| Owner Name 2: | CAMOZZI GINA M | 1/4 section #: |
1440 |
|
| Owner Name 3: | Parent Acct: |
|
||
| Billing Address: | 221 E MYRTLE DR | Tax District: |
|
|
| City, State, Zip | MIDWEST CITY, OK 73110-5219 | School System: |
Mid-Del #52 |
|
|
Country: (If noted) |
Land Size: |
0.1674 Acres |
||
|
Land Value: 20,777 |
|
|||
|
Sect 10-T11N-R2W Qtr NW |
SPECKMAN HEIGHTS ADD
Block
006
Lot
020
|
|||
| Full Legal Description: SPECKMAN HEIGHTS ADD 006 020 |
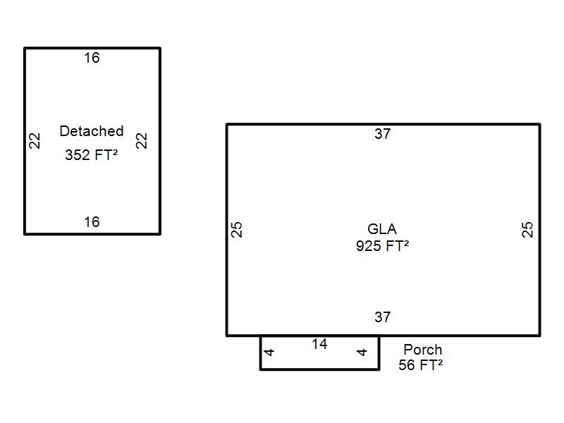
| Photo & Sketch (if available) | Comp Sales (ordered by relevancy) |
|
||||||||||||||||||
|
||||||||||||||||||||
| Value History (*The County Treasurer 405-713-1300 posts & collects actual tax amounts. Contact information HERE) | |||||||||||||
|---|---|---|---|---|---|---|---|---|---|---|---|---|---|
| Year | Market Value | Taxable Mkt Value | Gross Assessed | Exemption | Net Assessed | Millage | Est. Tax | Tax Savings | |||||
|
2025 |
93,500 |
67,641 |
7,440 |
0 |
7,440 |
119.58 |
$890 |
$340 |
|||||
|
2024 |
86,500 |
64,420 |
7,085 |
0 |
7,085 |
122.51 |
$868 |
$298 |
|||||
|
2023 |
76,000 |
61,353 |
6,748 |
0 |
6,748 |
117.71 |
$794 |
$190 |
|||||
|
2022 |
69,000 |
58,432 |
6,427 |
0 |
6,427 |
116.64 |
$750 |
$136 |
|||||
|
2021 |
59,500 |
55,650 |
6,121 |
0 |
6,121 |
119.45 |
$731 |
$51 |
|||||
| Property Account Status/Adjustments/Exemptions | ||||||
|---|---|---|---|---|---|---|
| Account # | Exemption Description | Amount | ||||
| No adjustment/exemption records returned. | ||||||
| Property Deed Transaction History (Recorded in the County Clerk's Office) | ||||||||||
|---|---|---|---|---|---|---|---|---|---|---|
| Date | Type | Book | Page | Price | Grantor | Grantee | ||||
|
9/30/2025 |
|
Deeds |
$125,000 |
ACM PROPERTY MANAGEMENT II LLC |
CAMOZZI STEPHEN |
|||||
|
11/5/2014 |
|
Hmstd Off & |
$0 |
BEAKS CHIU SHIANG |
ACM PROPERTY MANAGEMENT II LLC |
|||||
|
7/28/2014 |
|
Hmstd Off & |
$0 |
BEAKS ALPHONSUS J & CHIU SHIANG |
BEAKS CHIU SHIANG |
|||||
|
5/10/2010 |
|
Mult Parcel |
$83,000 |
THOMAS HAZEL M |
BEAKS ALPHONSUS J & CHIU SHIANG |
|||||
|
11/4/1998 |
|
Deeds |
$0 |
THOMAS LAWSON A & HAZEL M |
THOMAS HAZEL M |
|||||
| Last Mailed Notice of Value (N.O.V.) Information/History | ||||||||
|---|---|---|---|---|---|---|---|---|
| Year | Date | Market Value | Taxable Market Value | Gross Assessed | Exemption | Net Assessed | ||
|
2026 |
02/06/2026 |
140,000 |
140,000 |
15,400 |
0 |
15,400 |
||
|
2025 |
01/31/2025 |
93,500 |
67,641 |
7,440 |
0 |
7,440 |
||
|
2024 |
01/22/2024 |
86,500 |
64,420 |
7,085 |
0 |
7,085 |
||
|
2023 |
01/23/2023 |
76,000 |
61,353 |
6,748 |
0 |
6,748 |
||
|
2022 |
02/22/2022 |
69,000 |
58,432 |
6,427 |
0 |
6,427 |
||
| Property Building Permit History | |||||||||||
|---|---|---|---|---|---|---|---|---|---|---|---|
| Issued | Permit # | Provided by | Bldg # | Description | Est Construction Cost | Status | |||||
| No Building Permit records returned. | |||||||||||
| Click button on building number to access detailed information: | ||||||
|---|---|---|---|---|---|---|
| Bldg # | Vacant/Improved Land | Bldg Description | Year Built | SqFt | # Stories | |
|
1 |
Improved |
Ranch 1 Story |
1947 |
925 |
1 Stories |
|