|
|
|
| Larry Stein Oklahoma County Assessor (405) 713-1200 - Public Access System |
|
|
|
|
|
|
| Real Property Display - Screen Produced 3/22/2026 9:26:33 PM | ||||
|---|---|---|---|---|
| Account: R148682010 | Type: Residential | Location: |
8824 NW 82ND ST |
|
| Building Name/Occupant: |
|
OKLAHOMA CITY |
||
| Owner Name 1: | MURDOCH PATSY A |
Parcel PIN#: |
3923-14-868-2010 |
|
| Owner Name 2: | 1/4 section #: |
3923 |
||
| Owner Name 3: | Parent Acct: |
|
||
| Billing Address: | 8824 NW 82ND ST | Tax District: |
|
|
| City, State, Zip | OKLAHOMA CITY, OK 73132-4015 | School System: |
Putnam City #1 |
|
|
Country: (If noted) |
Land Size: |
0.1850 Acres |
||
|
Land Value: 56,017 |
|
|||
|
Sect 31-T13N-R4W Qtr SW |
WILSHIRE HILLS AMENDED
Block
004
Lot
036
|
|||
| Full Legal Description: WILSHIRE HILLS AMENDED 004 036 |
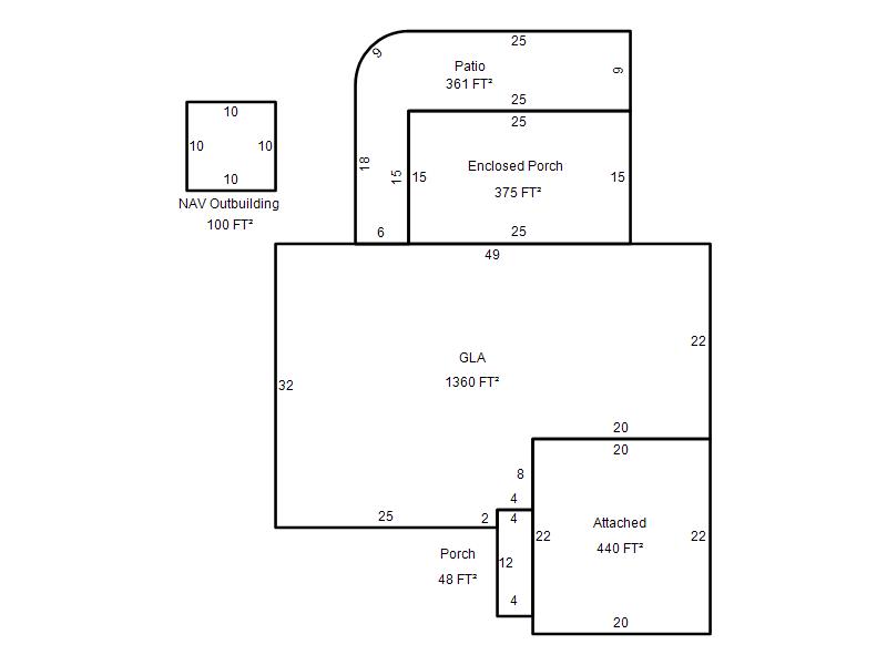
| Photo & Sketch (if available) | Comp Sales (ordered by relevancy) |
|
||||||||||||||||||
|
||||||||||||||||||||
| Value History (*The County Treasurer 405-713-1300 posts & collects actual tax amounts. Contact information HERE) | |||||||||||||
|---|---|---|---|---|---|---|---|---|---|---|---|---|---|
| Year | Market Value | Taxable Mkt Value | Gross Assessed | Exemption | Net Assessed | Millage | Est. Tax | Tax Savings | |||||
|
2025 |
188,000 |
188,000 |
20,680 |
0 |
20,680 |
123.17 |
$2,547 |
$0 |
|||||
|
2024 |
176,500 |
147,038 |
16,174 |
0 |
16,174 |
122.30 |
$1,978 |
$396 |
|||||
|
2023 |
168,000 |
140,037 |
15,403 |
0 |
15,403 |
121.91 |
$1,878 |
$375 |
|||||
|
2022 |
140,500 |
133,369 |
14,669 |
0 |
14,669 |
123.41 |
$1,810 |
$97 |
|||||
|
2021 |
132,500 |
127,019 |
13,971 |
0 |
13,971 |
122.23 |
$1,708 |
$74 |
|||||
| Property Account Status/Adjustments/Exemptions | ||
|---|---|---|
| Account # | Exemption Description | Amount |
|
R148682010 |
5% Capped Account |
0 |
| Property Deed Transaction History (Recorded in the County Clerk's Office) | ||||||||||
|---|---|---|---|---|---|---|---|---|---|---|
| Date | Type | Book | Page | Price | Grantor | Grantee | ||||
|
12/31/2024 |
|
Deeds |
$183,000 |
JENKINS JACOB G & ANGELA M |
MURDOCH PATSY A |
|||||
|
4/15/2014 |
|
Deeds |
$98,000 |
HARDY DAVID W |
JENKINS JACOB G & ANGELA M |
|||||
|
11/1/2013 |
|
Deeds |
$0 |
TRAUGH D L REV TRUST |
HARDY DAVID W |
|||||
|
10/21/2013 |
|
Hmstd Off & |
$0 |
TRAUGH D L TRS TRAUGH D L REV TRUST |
HARDY DAVID W |
|||||
|
2/8/1993 |
|
Historical |
$0 |
TRAUGH D L |
TRAUGH D L TRS |
|||||
| Last Mailed Notice of Value (N.O.V.) Information/History | ||||||||
|---|---|---|---|---|---|---|---|---|
| Year | Date | Market Value | Taxable Market Value | Gross Assessed | Exemption | Net Assessed | ||
|
2026 |
02/23/2026 |
188,500 |
188,500 |
20,735 |
0 |
20,735 |
||
|
2025 |
02/14/2025 |
188,000 |
188,000 |
20,680 |
0 |
20,680 |
||
|
2024 |
02/13/2024 |
176,500 |
147,038 |
16,174 |
0 |
16,174 |
||
|
2023 |
02/14/2023 |
168,000 |
140,037 |
15,403 |
0 |
15,403 |
||
|
2022 |
03/15/2022 |
140,500 |
133,369 |
14,669 |
0 |
14,669 |
||
| Property Building Permit History | |||||||||||
|---|---|---|---|---|---|---|---|---|---|---|---|
| Issued | Permit # | Provided by | Bldg # | Description | Est Construction Cost | Status | |||||
| No Building Permit records returned. | |||||||||||
| Click button on building number to access detailed information: | ||||||
|---|---|---|---|---|---|---|
| Bldg # | Vacant/Improved Land | Bldg Description | Year Built | SqFt | # Stories | |
|
1 |
Improved |
Ranch 1 Story |
1976 |
1,360 |
1 Stories |
|