|
|
|
| Larry Stein Oklahoma County Assessor (405) 713-1200 - Public Access System |
|
|
|
|
|
|
| Real Property Display - Screen Produced 3/22/2026 9:33:54 AM | ||||
|---|---|---|---|---|
| Account: R121421430 | Type: Residential | Location: |
9104 DENA LN |
|
| Building Name/Occupant: |
|
OKLAHOMA CITY |
||
| Owner Name 1: | SANCHEZ GILBERTO CHIQUITO |
Parcel PIN#: |
3924-12-142-1430 |
|
| Owner Name 2: | GIL CEJA SANDRA DEL CARNEN | 1/4 section #: |
3924 |
|
| Owner Name 3: | Parent Acct: |
|
||
| Billing Address: | 9104 DENA LN | Tax District: |
|
|
| City, State, Zip | OKLAHOMA CITY, OK 73132-1063 | School System: |
Putnam City #1 |
|
|
Country: (If noted) |
Land Size: |
0.1566 Acres |
||
|
Land Value: 30,690 |
|
|||
|
Sect 31-T13N-R4W Qtr NW |
RAMBLING ACRES SEC 4
Block
037
Lot
015
|
|||
| Full Legal Description: RAMBLING ACRES SEC 4 037 015 |
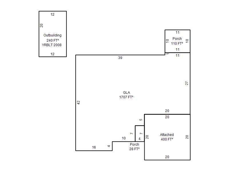
| Photo & Sketch (if available) | Comp Sales (ordered by relevancy) |
|
||||||||||||||||||
|
||||||||||||||||||||
| Value History (*The County Treasurer 405-713-1300 posts & collects actual tax amounts. Contact information HERE) | |||||||||||||
|---|---|---|---|---|---|---|---|---|---|---|---|---|---|
| Year | Market Value | Taxable Mkt Value | Gross Assessed | Exemption | Net Assessed | Millage | Est. Tax | Tax Savings | |||||
|
2025 |
227,000 |
227,000 |
24,970 |
0 |
24,970 |
123.17 |
$3,076 |
$0 |
|||||
|
2024 |
218,000 |
173,134 |
19,044 |
1,000 |
18,044 |
122.30 |
$2,207 |
$726 |
|||||
|
2023 |
222,000 |
168,092 |
18,489 |
1,000 |
17,489 |
121.91 |
$2,132 |
$845 |
|||||
|
2022 |
186,500 |
163,197 |
17,950 |
1,000 |
16,950 |
123.41 |
$2,092 |
$440 |
|||||
|
2021 |
174,500 |
158,444 |
17,428 |
1,000 |
16,428 |
122.23 |
$2,008 |
$338 |
|||||
| Property Account Status/Adjustments/Exemptions | ||||||
|---|---|---|---|---|---|---|
| Account # | Exemption Description | Amount | ||||
| No adjustment/exemption records returned. | ||||||
| Property Deed Transaction History (Recorded in the County Clerk's Office) | ||||||||||
|---|---|---|---|---|---|---|---|---|---|---|
| Date | Type | Book | Page | Price | Grantor | Grantee | ||||
|
9/29/2025 |
|
Deeds |
$260,000 |
NMMH EQUITY & INVESTMENTS LLC |
SANCHEZ GILBERTO CHIQUITO |
|||||
|
9/20/2024 |
|
Deeds |
$170,000 |
HOWARD DREON DESHON |
NMMH EQUITY & INVESTMENTS LLC |
|||||
|
8/12/2024 |
|
Hmstd Off & |
$ |
WILSON MICHAEL |
HOWARD DREON DESHON |
|||||
|
2/14/2008 |
|
Deeds |
$0 |
WILSON MICHAEL & PAMELA J |
WILSON MICHAEL |
|||||
|
10/29/1996 |
|
Historical |
$82,000 |
WEAVER JIM & MELVA |
WILSON MICHAEL & PAMELA J |
|||||
| Last Mailed Notice of Value (N.O.V.) Information/History | ||||||||
|---|---|---|---|---|---|---|---|---|
| Year | Date | Market Value | Taxable Market Value | Gross Assessed | Exemption | Net Assessed | ||
|
2026 |
02/23/2026 |
229,500 |
229,500 |
25,245 |
0 |
25,245 |
||
|
2025 |
02/14/2025 |
227,000 |
227,000 |
24,970 |
0 |
24,970 |
||
|
2024 |
02/13/2024 |
218,000 |
173,134 |
19,044 |
1,000 |
18,044 |
||
|
2023 |
02/14/2023 |
222,000 |
168,092 |
18,489 |
1,000 |
17,489 |
||
|
2022 |
03/15/2022 |
186,500 |
163,197 |
17,950 |
1,000 |
16,950 |
||
| Property Building Permit History | ||||||
|---|---|---|---|---|---|---|
| Issued | Permit # | Provided by | Bldg # | Description | Est Construction Cost | Status |
|
5/7/2007 |
10338907 |
OKLAHOMA CITY |
1 |
Storage Buil |
2,000 |
Inactive |
|
2/19/1996 |
10207310 |
OKLAHOMA CITY |
1 |
Main Dwellin |
65,000 |
Inactive |
| Click button on building number to access detailed information: | ||||||
|---|---|---|---|---|---|---|
| Bldg # | Vacant/Improved Land | Bldg Description | Year Built | SqFt | # Stories | |
|
1 |
Improved |
Ranch 1 Story |
1996 |
1,707 |
1 Stories |
|