|
|
|
| Larry Stein Oklahoma County Assessor (405) 713-1200 - Public Access System |
|
|
|
|
|
|
| Real Property Display - Screen Produced 4/3/2026 9:45:16 PM | ||||
|---|---|---|---|---|
| Account: R123223360 | Type: Residential | Location: |
8108 CINNAMON TEAL DR |
|
| Building Name/Occupant: |
|
OKLAHOMA CITY |
||
| Owner Name 1: | WILLIAMS JANET |
Parcel PIN#: |
3927-12-322-3360 |
|
| Owner Name 2: | 1/4 section #: |
3927 |
||
| Owner Name 3: | Parent Acct: |
|
||
| Billing Address: | 8108 CINNAMON TEAL DR | Tax District: |
|
|
| City, State, Zip | OKLAHOMA CITY, OK 73132-3345 | School System: |
Putnam City #1 |
|
|
Country: (If noted) |
Land Size: |
0.1515 Acres |
||
|
Land Value: 34,320 |
|
|||
|
Sect 32-T13N-R4W Qtr SW |
WILSHIRE RIDGE
Block
009
Lot
016
|
|||
| Full Legal Description: WILSHIRE RIDGE 009 016 |
| Photo & Sketch (if available) | Comp Sales (ordered by relevancy) |
|
||||||||||||||||||
|
||||||||||||||||||||
| Value History (*The County Treasurer 405-713-1300 posts & collects actual tax amounts. Contact information HERE) | |||||||||||||
|---|---|---|---|---|---|---|---|---|---|---|---|---|---|
| Year | Market Value | Taxable Mkt Value | Gross Assessed | Exemption | Net Assessed | Millage | Est. Tax | Tax Savings | |||||
|
2026 |
190,000 |
190,000 |
20,900 |
0 |
20,900 |
123.17 |
$2,574 |
$0 |
|||||
|
2025 |
189,000 |
136,212 |
14,982 |
1,000 |
13,982 |
123.17 |
$1,722 |
$838 |
|||||
|
2024 |
180,000 |
132,245 |
14,546 |
1,000 |
13,546 |
122.30 |
$1,657 |
$765 |
|||||
|
2023 |
169,000 |
128,394 |
14,123 |
1,000 |
13,123 |
121.91 |
$1,600 |
$666 |
|||||
|
2022 |
138,500 |
124,655 |
13,711 |
1,000 |
12,711 |
123.41 |
$1,569 |
$311 |
|||||
| Property Account Status/Adjustments/Exemptions | ||||||
|---|---|---|---|---|---|---|
| Account # | Exemption Description | Amount | ||||
| No adjustment/exemption records returned. | ||||||
| Property Deed Transaction History (Recorded in the County Clerk's Office) | ||||||||||
|---|---|---|---|---|---|---|---|---|---|---|
| Date | Type | Book | Page | Price | Grantor | Grantee | ||||
|
4/18/2025 |
|
Deeds |
$185,000 |
CHAPMAN JILL M |
WILLIAMS JANET |
|||||
|
4/10/2024 |
|
Deeds |
$0 |
ALCAZAR ARTURO |
CHAPMAN JILL M |
|||||
|
6/27/2011 |
|
Deeds |
$0 |
CHAPMAN ALCAZAR JILL M |
CHAPMAN JILL M |
|||||
|
6/20/2011 |
|
Deeds |
$0 |
ALCAZAR ARTURO CHAPMAN JILL M |
CHAPMAN ALCAZAR JILL M |
|||||
|
12/7/1999 |
|
Deeds |
$78,500 |
PFEIFLER MARK CARLE |
ALCAZAR ARTURO CHAPMAN JILL M |
|||||
| Last Mailed Notice of Value (N.O.V.) Information/History | ||||||||
|---|---|---|---|---|---|---|---|---|
| Year | Date | Market Value | Taxable Market Value | Gross Assessed | Exemption | Net Assessed | ||
|
2026 |
02/23/2026 |
190,000 |
190,000 |
20,900 |
0 |
20,900 |
||
|
2025 |
02/14/2025 |
189,000 |
136,212 |
14,982 |
1,000 |
13,982 |
||
|
2024 |
02/13/2024 |
180,000 |
132,245 |
14,546 |
1,000 |
13,546 |
||
|
2023 |
02/14/2023 |
169,000 |
128,394 |
14,123 |
1,000 |
13,123 |
||
|
2022 |
03/15/2022 |
138,500 |
124,655 |
13,711 |
1,000 |
12,711 |
||
| Property Building Permit History | |||||||||||
|---|---|---|---|---|---|---|---|---|---|---|---|
| Issued | Permit # | Provided by | Bldg # | Description | Est Construction Cost | Status | |||||
| No Building Permit records returned. | |||||||||||
| Click button on building number to access detailed information: | ||||||
|---|---|---|---|---|---|---|
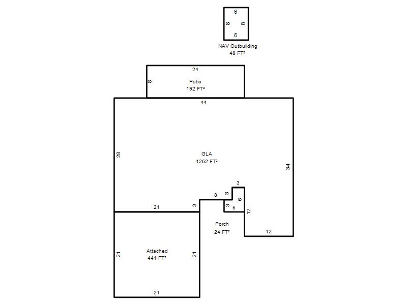
| Bldg # | Vacant/Improved Land | Bldg Description | Year Built | SqFt | # Stories | |
|
1 |
Improved |
Ranch 1 Story |
1986 |
1,262 |
1 Stories |
|