|
|
|
| Larry Stein Oklahoma County Assessor (405) 713-1200 - Public Access System |
|
|
|
|
|
|
| Real Property Display - Screen Produced 4/1/2026 5:38:47 PM | ||||
|---|---|---|---|---|
| Account: R141841030 | Type: Residential | Location: |
8228 SPRINGBROOK DR |
|
| Building Name/Occupant: |
|
OKLAHOMA CITY |
||
| Owner Name 1: | DRAKE BOBBY A & SONDRA E |
Parcel PIN#: |
3930-14-184-1030 |
|
| Owner Name 2: | 1/4 section #: |
3930 |
||
| Owner Name 3: | Parent Acct: |
|
||
| Billing Address: | 8228 SPRINGBROOK DR | Tax District: |
|
|
| City, State, Zip | OKLAHOMA CITY, OK 73132-4617 | School System: |
Putnam City #1 |
|
|
Country: (If noted) |
Land Size: |
0.2556 Acres |
||
|
Land Value: 47,311 |
|
|||
|
Sect 33-T13N-R4W Qtr SE |
SPRING BROOK
Block
001
Lot
002
|
|||
| Full Legal Description: SPRING BROOK 001 002 |
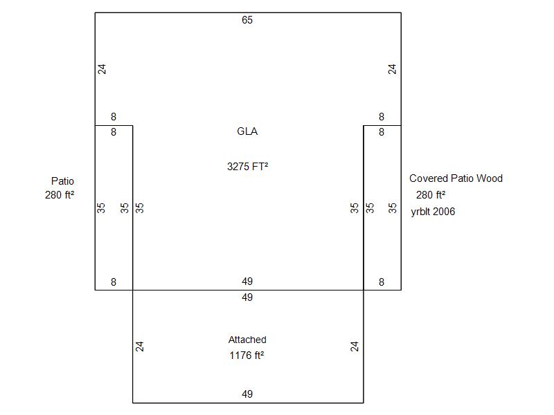
| Photo & Sketch (if available) | Comp Sales (ordered by relevancy) |
|
||||||||||||||||||
|
||||||||||||||||||||
| Value History (*The County Treasurer 405-713-1300 posts & collects actual tax amounts. Contact information HERE) | |||||||||||||
|---|---|---|---|---|---|---|---|---|---|---|---|---|---|
| Year | Market Value | Taxable Mkt Value | Gross Assessed | Exemption | Net Assessed | Millage | Est. Tax | Tax Savings | |||||
|
2026 |
316,000 |
301,826 |
33,199 |
33,199 |
0 |
123.17 |
$0 |
$4,281 |
|||||
|
2025 |
316,000 |
293,035 |
32,233 |
32,233 |
0 |
123.17 |
$0 |
$4,281 |
|||||
|
2024 |
284,500 |
284,500 |
31,295 |
0 |
31,295 |
122.30 |
$3,827 |
$0 |
|||||
|
2023 |
265,500 |
230,422 |
25,345 |
0 |
25,345 |
121.91 |
$3,090 |
$470 |
|||||
|
2022 |
253,000 |
219,450 |
24,139 |
0 |
24,139 |
123.41 |
$2,979 |
$455 |
|||||
| Property Account Status/Adjustments/Exemptions | ||
|---|---|---|
| Account # | Exemption Description | Amount |
|
R141841030 |
100% DAV Exemption |
100 |
|
R141841030 |
3% Cap Homestead |
0 |
|
R141841030 |
DAV Homestead |
0 |
| Property Deed Transaction History (Recorded in the County Clerk's Office) | ||||||||||
|---|---|---|---|---|---|---|---|---|---|---|
| Date | Type | Book | Page | Price | Grantor | Grantee | ||||
|
9/12/2023 |
|
Deeds |
$350,000 |
KAM BUSINESS VENTURES LLC SERIES F |
DRAKE BOBBY A & SONDRA E |
|||||
|
9/25/2020 |
|
Hmstd Off & |
$0 |
KAM BUSINESS VENTURES LLC |
KAM BUSINESS VENTURES LLC SERIES F |
|||||
|
12/10/2019 |
|
Deeds |
$205,000 |
CHAPPELL JANET M TRS |
MEHNER KEVIN |
|||||
|
12/10/2019 |
|
Hmstd Off & |
$0 |
MEHNER KEVIN |
KAM BUSINESS VENTURES LLC |
|||||
|
4/8/2013 |
|
Other |
$0 |
PUGSLEY CHARLES L & GERALDINE |
CHAPPELL JANET M TRS |
|||||
| Last Mailed Notice of Value (N.O.V.) Information/History | ||||||||
|---|---|---|---|---|---|---|---|---|
| Year | Date | Market Value | Taxable Market Value | Gross Assessed | Exemption | Net Assessed | ||
|
2026 |
02/23/2026 |
316,000 |
301,826 |
33,199 |
33,199 |
0 |
||
|
2025 |
02/14/2025 |
316,000 |
293,035 |
32,233 |
1,000 |
31,233 |
||
|
2024 |
02/13/2024 |
284,500 |
284,500 |
31,295 |
0 |
31,295 |
||
|
2023 |
02/14/2023 |
265,500 |
230,422 |
25,345 |
0 |
25,345 |
||
|
2022 |
03/15/2022 |
253,000 |
219,450 |
24,139 |
0 |
24,139 |
||
| Property Building Permit History | |||||||||||
|---|---|---|---|---|---|---|---|---|---|---|---|
| Issued | Permit # | Provided by | Bldg # | Description | Est Construction Cost | Status | |||||
| No Building Permit records returned. | |||||||||||
| Click button on building number to access detailed information: | ||||||
|---|---|---|---|---|---|---|
| Bldg # | Vacant/Improved Land | Bldg Description | Year Built | SqFt | # Stories | |
|
1 |
Improved |
Duplex One Story |
1973 |
3,275 |
1 Stories |
|