|
|
|
| Larry Stein Oklahoma County Assessor (405) 713-1200 - Public Access System |
|
|
|
|
|
|
| Real Property Display - Screen Produced 3/19/2026 12:51:45 AM | ||||
|---|---|---|---|---|
| Account: R151571030 | Type: Residential | Location: |
1725 BALLAD DR |
|
| Building Name/Occupant: |
|
MIDWEST CITY |
||
| Owner Name 1: | BLATT JUSTIN |
Parcel PIN#: |
1445-15-157-1030 |
|
| Owner Name 2: | 1/4 section #: |
1445 |
||
| Owner Name 3: | Parent Acct: |
|
||
| Billing Address: | 1725 BALLAD DR | Tax District: |
|
|
| City, State, Zip | MIDWEST CITY, OK 73130-6425 | School System: |
Mid-Del #52 |
|
|
Country: (If noted) |
Land Size: |
0.1873 Acres |
||
|
Land Value: 31,416 |
|
|||
|
Sect 12-T11N-R2W Qtr NE |
WILLOW WIND SEC 1
Block
001
Lot
004
|
|||
| Full Legal Description: WILLOW WIND SEC 1 001 004 |
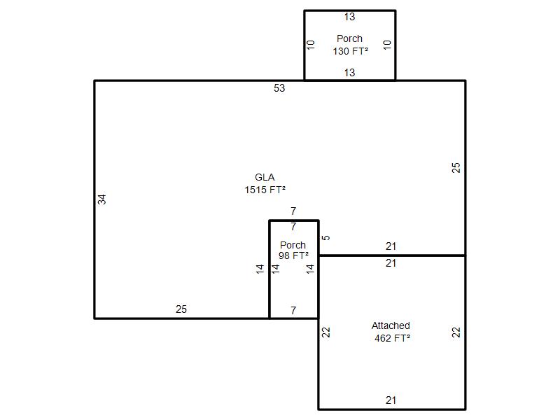
| Photo & Sketch (if available) | Comp Sales (ordered by relevancy) |
|
||||||||||||||||||
|
||||||||||||||||||||
| Value History (*The County Treasurer 405-713-1300 posts & collects actual tax amounts. Contact information HERE) | |||||||||||||
|---|---|---|---|---|---|---|---|---|---|---|---|---|---|
| Year | Market Value | Taxable Mkt Value | Gross Assessed | Exemption | Net Assessed | Millage | Est. Tax | Tax Savings | |||||
|
2025 |
201,000 |
201,000 |
22,110 |
0 |
22,110 |
119.58 |
$2,644 |
$0 |
|||||
|
2024 |
193,000 |
193,000 |
21,230 |
0 |
21,230 |
122.51 |
$2,601 |
$0 |
|||||
|
2023 |
173,500 |
132,765 |
14,603 |
1,000 |
13,603 |
117.71 |
$1,601 |
$645 |
|||||
|
2022 |
156,500 |
128,899 |
14,177 |
1,000 |
13,177 |
116.64 |
$1,537 |
$471 |
|||||
|
2021 |
136,500 |
125,145 |
13,765 |
1,000 |
12,765 |
119.45 |
$1,525 |
$269 |
|||||
| Property Account Status/Adjustments/Exemptions | ||||||
|---|---|---|---|---|---|---|
| Account # | Exemption Description | Amount | ||||
| No adjustment/exemption records returned. | ||||||
| Property Deed Transaction History (Recorded in the County Clerk's Office) | |||||||
|---|---|---|---|---|---|---|---|
| Date | Type | Book | Page | Price | Grantor | Grantee | |
|
11/6/2025 |
|
Deeds |
$215,000 |
JOHNSON HOLLIE N |
BLATT JUSTIN |
||
|
6/15/2023 |
|
Deeds |
$175,000 |
GOW ROBERT D TRS |
JOHNSON HOLLIE N |
||
|
11/18/2003 |
|
Deeds |
$0 |
GOW ROBERT D |
GOW ROBERT D TRS |
||
|
11/1/1978 |
|
Historical |
$0 |
|
GOW ROBERT D |
||
| Last Mailed Notice of Value (N.O.V.) Information/History | ||||||||
|---|---|---|---|---|---|---|---|---|
| Year | Date | Market Value | Taxable Market Value | Gross Assessed | Exemption | Net Assessed | ||
|
2025 |
01/31/2025 |
201,000 |
201,000 |
22,110 |
0 |
22,110 |
||
|
2024 |
01/22/2024 |
193,000 |
193,000 |
21,230 |
0 |
21,230 |
||
|
2023 |
01/23/2023 |
173,500 |
132,765 |
14,603 |
1,000 |
13,603 |
||
|
2022 |
02/22/2022 |
156,500 |
128,899 |
14,177 |
1,000 |
13,177 |
||
|
2021 |
02/24/2021 |
136,500 |
125,145 |
13,765 |
1,000 |
12,765 |
||
| Property Building Permit History | |||||||||||
|---|---|---|---|---|---|---|---|---|---|---|---|
| Issued | Permit # | Provided by | Bldg # | Description | Est Construction Cost | Status | |||||
| No Building Permit records returned. | |||||||||||
| Click button on building number to access detailed information: | ||||||
|---|---|---|---|---|---|---|
| Bldg # | Vacant/Improved Land | Bldg Description | Year Built | SqFt | # Stories | |
|
1 |
Improved |
Ranch 1 Story |
1978 |
1,515 |
1 Stories |
|