|
|
|
| Larry Stein Oklahoma County Assessor (405) 713-1200 - Public Access System |
|
|
|
|
|
|
| Real Property Display - Screen Produced 4/2/2026 3:50:54 PM | ||||
|---|---|---|---|---|
| Account: R180031130 | Type: Residential | Location: |
3001 E SORGHUM MILL RD |
|
| Building Name/Occupant: |
|
EDMOND |
||
| Owner Name 1: | JONES MATTHEW |
Parcel PIN#: |
4419-18-003-1130 |
|
| Owner Name 2: | JONES GAYLE | 1/4 section #: |
4419 |
|
| Owner Name 3: | Parent Acct: |
|
||
| Billing Address: | 3001 E SORGHUM MILL RD | Tax District: |
|
|
| City, State, Zip | EDMOND, OK 73034 | School System: |
Edmond #12 |
|
|
Country: (If noted) |
Land Size: |
1.3100 Acres |
||
|
Land Value: 76,252 |
|
|||
|
Sect 5-T14N-R2W Qtr SW |
UNPLTD PT SEC 5 14N 2W
Block
000
Lot
000
|
|||
| Full Legal Description: UNPLTD PT SEC 5 14N 2W 000 000 PT SW4 SEC 5 14N 2W PT W100ACRS OF SW4 BEG SW/C OF SW4 TH N660FT E332FT S660FT W332FT TO BEG EX W33FT & S33FT FOR RD & EX N436FT OR TR 7 |
| Photo & Sketch (if available) | Comp Sales (ordered by relevancy) |
|
||||||||||||||||||
|
||||||||||||||||||||
| Value History (*The County Treasurer 405-713-1300 posts & collects actual tax amounts. Contact information HERE) | |||||||||||||
|---|---|---|---|---|---|---|---|---|---|---|---|---|---|
| Year | Market Value | Taxable Mkt Value | Gross Assessed | Exemption | Net Assessed | Millage | Est. Tax | Tax Savings | |||||
|
2026 |
336,500 |
275,000 |
30,250 |
1,000 |
29,250 |
105.16 |
$3,076 |
$817 |
|||||
|
2025 |
334,000 |
275,000 |
30,250 |
1,000 |
29,250 |
105.16 |
$3,076 |
$788 |
|||||
|
2024 |
328,500 |
275,000 |
30,250 |
1,000 |
29,250 |
105.03 |
$3,072 |
$723 |
|||||
|
2023 |
275,000 |
275,000 |
30,250 |
1,000 |
29,250 |
104.24 |
$3,049 |
$104 |
|||||
|
2022 |
264,500 |
226,416 |
24,905 |
1,000 |
23,905 |
104.64 |
$2,501 |
$543 |
|||||
| Property Account Status/Adjustments/Exemptions | ||
|---|---|---|
| Account # | Exemption Description | Amount |
|
R180031130 |
3% Cap Homestead |
0 |
|
R180031130 |
Freeze Senior Valuation |
0 |
|
R180031130 |
Homestead |
1,000 |
| Property Deed Transaction History (Recorded in the County Clerk's Office) | |||||||
|---|---|---|---|---|---|---|---|
| Date | Type | Book | Page | Price | Grantor | Grantee | |
|
3/28/2022 |
|
Deeds |
$273,500 |
HILL ARGUS T & JOSEPHINE I |
JONES MATTHEW |
||
|
1/4/2008 |
|
Deeds |
$0 |
HILL ARGUS T & JOSEPHINE I TRS HILL ARGUS T & JOSEPHINE I RE |
HILL ARGUS T & JOSEPHINE I |
||
|
7/9/2002 |
|
Deeds |
$0 |
J R SKAGGS CONSTRUCTION INC |
HILL ARGUS T & JOSEPHINE I |
||
|
12/31/1997 |
|
Historical |
$0 |
HILL ARGUS T & JOSEPHINE I |
HILL ARGUS T & JOSEPHINE I |
||
|
6/1/1981 |
|
Historical |
$0 |
|
HILL ARGUS T & JOSEPHINE I |
||
| Last Mailed Notice of Value (N.O.V.) Information/History | ||||||||
|---|---|---|---|---|---|---|---|---|
| Year | Date | Market Value | Taxable Market Value | Gross Assessed | Exemption | Net Assessed | ||
|
2026 |
02/06/2026 |
336,500 |
275,000 |
30,250 |
1,000 |
29,250 |
||
|
2025 |
01/31/2025 |
334,000 |
275,000 |
30,250 |
1,000 |
29,250 |
||
|
2024 |
01/22/2024 |
328,500 |
275,000 |
30,250 |
1,000 |
29,250 |
||
|
2023 |
01/23/2023 |
275,000 |
275,000 |
30,250 |
0 |
30,250 |
||
|
2022 |
02/22/2022 |
264,500 |
226,416 |
24,905 |
1,000 |
23,905 |
||
| Property Building Permit History | |||||||||||
|---|---|---|---|---|---|---|---|---|---|---|---|
| Issued | Permit # | Provided by | Bldg # | Description | Est Construction Cost | Status | |||||
| No Building Permit records returned. | |||||||||||
| Click button on building number to access detailed information: | ||||||
|---|---|---|---|---|---|---|
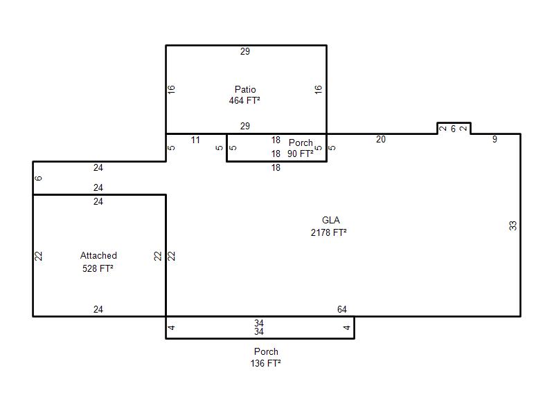
| Bldg # | Vacant/Improved Land | Bldg Description | Year Built | SqFt | # Stories | |
|
1 |
Improved |
Ranch 1 Story |
1973 |
2,178 |
1 Stories |
|