|
|
|
| Larry Stein Oklahoma County Assessor (405) 713-1200 - Public Access System |
|
|
|
|
|
|
| Real Property Display - Screen Produced 4/1/2026 5:48:32 AM | ||||
|---|---|---|---|---|
| Account: R182221660 | Type: Residential | Location: |
4901 JESSIE JAMES DR |
|
| Building Name/Occupant: |
|
EDMOND |
||
| Owner Name 1: | HARRIS GARY C & JULIE A |
Parcel PIN#: |
4428-18-222-1660 |
|
| Owner Name 2: | 1/4 section #: |
4428 |
||
| Owner Name 3: | Parent Acct: |
|
||
| Billing Address: | 4901 JESSIE JAMES DR | Tax District: |
|
|
| City, State, Zip | EDMOND, OK 73034-7909 | School System: |
Edmond #12 |
|
|
Country: (If noted) |
Land Size: |
0.8900 Acres |
||
|
Land Value: 67,713 |
|
|||
|
Sect 7-T14N-R2W Qtr NW |
RUSTLING HILLS
Block
001
Lot
034
|
|||
| Full Legal Description: RUSTLING HILLS 001 034 |
| Photo & Sketch (if available) | Comp Sales (ordered by relevancy) |
|
|||||||||||||||
|
|||||||||||||||||
| Value History (*The County Treasurer 405-713-1300 posts & collects actual tax amounts. Contact information HERE) | |||||||||||||
|---|---|---|---|---|---|---|---|---|---|---|---|---|---|
| Year | Market Value | Taxable Mkt Value | Gross Assessed | Exemption | Net Assessed | Millage | Est. Tax | Tax Savings | |||||
|
2026 |
372,500 |
372,500 |
40,975 |
0 |
40,975 |
105.16 |
$4,309 |
$0 |
|||||
|
2025 |
375,500 |
375,500 |
41,305 |
0 |
41,305 |
105.16 |
$4,344 |
$0 |
|||||
|
2024 |
369,500 |
369,500 |
40,645 |
0 |
40,645 |
105.03 |
$4,269 |
$0 |
|||||
|
2023 |
317,000 |
235,221 |
25,873 |
1,000 |
24,873 |
104.24 |
$2,593 |
$1,042 |
|||||
|
2022 |
271,000 |
228,370 |
25,120 |
1,000 |
24,120 |
104.64 |
$2,524 |
$595 |
|||||
| Property Account Status/Adjustments/Exemptions | ||
|---|---|---|
| Account # | Exemption Description | Amount |
|
R182221660 |
5% Capped Account |
0 |
| Property Deed Transaction History (Recorded in the County Clerk's Office) | |||||||
|---|---|---|---|---|---|---|---|
| Date | Type | Book | Page | Price | Grantor | Grantee | |
|
11/8/2023 |
|
Deeds |
$420,000 |
WREDE RONALD D & LINDA A TRS |
HARRIS GARY C & JULIE A |
||
|
2/6/1998 |
|
Historical |
$0 |
WREDE RONALD D & LINDA A |
WREDE RONALD D & LINDA A TRS |
||
|
12/7/1992 |
|
Historical |
$102,000 |
TORNQUIST KENNETH W & BEVERLY |
WREDE RONALD D & LINDA A |
||
|
1/11/1988 |
|
Historical |
$81,000 |
NELSON ALLEN H & MARGARET M |
TORNQUIST KENNETH W & BEVERLY |
||
|
12/1/1982 |
|
Historical |
$0 |
|
NELSON ALLEN H & MARGARET M |
||
| Last Mailed Notice of Value (N.O.V.) Information/History | ||||||||
|---|---|---|---|---|---|---|---|---|
| Year | Date | Market Value | Taxable Market Value | Gross Assessed | Exemption | Net Assessed | ||
|
2025 |
01/31/2025 |
375,500 |
375,500 |
41,305 |
0 |
41,305 |
||
|
2024 |
01/22/2024 |
369,500 |
369,500 |
40,645 |
0 |
40,645 |
||
|
2023 |
01/23/2023 |
317,000 |
235,221 |
25,873 |
1,000 |
24,873 |
||
|
2022 |
02/22/2022 |
271,000 |
228,370 |
25,119 |
1,000 |
24,119 |
||
|
2021 |
02/24/2021 |
240,500 |
221,719 |
24,389 |
1,000 |
23,389 |
||
| Property Building Permit History | |||||||||||
|---|---|---|---|---|---|---|---|---|---|---|---|
| Issued | Permit # | Provided by | Bldg # | Description | Est Construction Cost | Status | |||||
| No Building Permit records returned. | |||||||||||
| Click button on building number to access detailed information: | ||||||
|---|---|---|---|---|---|---|
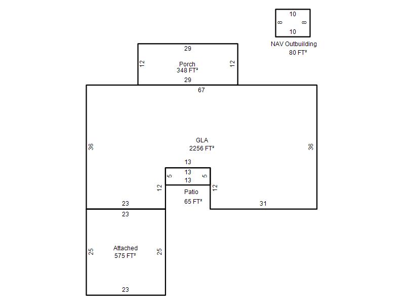
| Bldg # | Vacant/Improved Land | Bldg Description | Year Built | SqFt | # Stories | |
|
1 |
Improved |
Ranch 1 Story |
1977 |
2,256 |
1 Stories |
|