|
|
|
| Larry Stein Oklahoma County Assessor (405) 713-1200 - Public Access System |
|
|
|
|
|
|
| Real Property Display - Screen Produced 4/25/2026 9:27:32 PM | ||||
|---|---|---|---|---|
| Account: R120151480 | Type: Residential | Location: |
9208 PEPPERDINE |
|
| Building Name/Occupant: |
|
MIDWEST CITY |
||
| Owner Name 1: | ELLIOTT MICHELE I |
Parcel PIN#: |
1448-12-015-1480 |
|
| Owner Name 2: | 1/4 section #: |
1448 |
||
| Owner Name 3: | Parent Acct: |
|
||
| Billing Address: | 9208 PEPPERDINE | Tax District: |
|
|
| City, State, Zip | OKLAHOMA CITY, OK 73130 | School System: |
Mid-Del #52 |
|
|
Country: (If noted) |
Land Size: |
0.0599 Acres |
||
|
Land Value: 16,835 |
|
|||
|
Sect 12-T11N-R2W Qtr NW |
OLDE TOWNE TO MWC OKLA
Block
004
Lot
009
|
|||
| Full Legal Description: OLDE TOWNE TO MWC OKLA 004 009 |
| Value History (*The County Treasurer 405-713-1300 posts & collects actual tax amounts. Contact information HERE) | |||||||||||||
|---|---|---|---|---|---|---|---|---|---|---|---|---|---|
| Year | Market Value | Taxable Mkt Value | Gross Assessed | Exemption | Net Assessed | Millage | Est. Tax | Tax Savings | |||||
|
2026 |
155,000 |
155,000 |
17,050 |
17,050 |
0 |
119.58 |
$0 |
$2,039 |
|||||
|
2025 |
160,000 |
160,000 |
17,600 |
17,600 |
0 |
119.58 |
$0 |
$2,105 |
|||||
|
2024 |
163,500 |
163,500 |
17,985 |
17,985 |
0 |
122.51 |
$0 |
$2,203 |
|||||
| Property Account Status/Adjustments/Exemptions | ||
|---|---|---|
| Account # | Exemption Description | Amount |
|
R120151480 |
3% Cap Homestead |
0 |
|
R120151480 |
100% DAV Exemption |
100 |
|
R120151480 |
DAV Homestead |
0 |
| Property Deed Transaction History (Recorded in the County Clerk's Office) | ||||||||||
|---|---|---|---|---|---|---|---|---|---|---|
| Date | Type | Book | Page | Price | Grantor | Grantee | ||||
|
6/7/2022 |
|
Deeds |
$158,000 |
SHOOK BRENDA |
ELLIOTT MICHELE I |
|||||
|
6/11/2019 |
|
Hmstd Off & |
$0 |
SHOOK ORVEL & EVA |
SHOOK EVA |
|||||
|
6/11/2019 |
|
Hmstd Off & |
$0 |
SHOOK EVA |
SHOOK BRENDA |
|||||
| Last Mailed Notice of Value (N.O.V.) Information/History | ||||||||
|---|---|---|---|---|---|---|---|---|
| Year | Date | Market Value | Taxable Market Value | Gross Assessed | Exemption | Net Assessed | ||
|
2024 |
01/22/2024 |
163,500 |
163,500 |
17,985 |
17,985 |
0 |
||
|
2023 |
01/23/2023 |
163,000 |
163,000 |
17,930 |
17,930 |
0 |
||
|
2022 |
02/22/2022 |
105,500 |
105,288 |
11,581 |
0 |
11,581 |
||
| Property Building Permit History | |||||||||||
|---|---|---|---|---|---|---|---|---|---|---|---|
| Issued | Permit # | Provided by | Bldg # | Description | Est Construction Cost | Status | |||||
| No Building Permit records returned. | |||||||||||
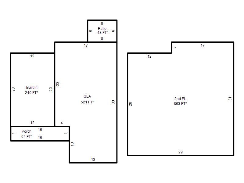
| Click button below to access detailed information and additional property photos: | ||||||
|---|---|---|---|---|---|---|
| Bldg # | Vacant/Improved Land | Bldg Description | Year Built | SqFt | # Stories | |
|
1 |
Improved |
Townhouse Multiple Story |
1982 |
1,384 |
2 Stories |
|