|
|
|
| Larry Stein Oklahoma County Assessor (405) 713-1200 - Public Access System |
|
|
|
|
|
|
| Real Property Display - Screen Produced 3/25/2026 3:32:48 AM | ||||
|---|---|---|---|---|
| Account: R182261220 | Type: Residential | Location: |
1702 WINDHILL AVE |
|
| Building Name/Occupant: |
|
EDMOND |
||
| Owner Name 1: | JUDD HOPE ALEXANDRIA |
Parcel PIN#: |
4519-18-226-1220 |
|
| Owner Name 2: | 1/4 section #: |
4519 |
||
| Owner Name 3: | Parent Acct: |
|
||
| Billing Address: | 1702 WINDHILL AVE | Tax District: |
|
|
| City, State, Zip | EDMOND, OK 73034 | School System: |
Edmond #12 |
|
|
Country: (If noted) |
Land Size: |
0.0455 Acres |
||
|
Land Value: 20,295 |
|
|||
|
Sect 30-T14N-R2W Qtr SW |
WOODCREEK TOWN HOMES
Block
005
Lot
002
|
|||
| Full Legal Description: WOODCREEK TOWN HOMES 005 002 |
| Photo & Sketch (if available) | Comp Sales (ordered by relevancy) |
|
||||||||||||||||||
|
||||||||||||||||||||
| Value History (*The County Treasurer 405-713-1300 posts & collects actual tax amounts. Contact information HERE) | |||||||||||||
|---|---|---|---|---|---|---|---|---|---|---|---|---|---|
| Year | Market Value | Taxable Mkt Value | Gross Assessed | Exemption | Net Assessed | Millage | Est. Tax | Tax Savings | |||||
|
2025 |
187,000 |
187,000 |
20,570 |
0 |
20,570 |
105.16 |
$2,163 |
$0 |
|||||
|
2024 |
190,500 |
190,500 |
20,955 |
0 |
20,955 |
105.03 |
$2,201 |
$0 |
|||||
|
2023 |
183,000 |
183,000 |
20,130 |
0 |
20,130 |
104.24 |
$2,098 |
$0 |
|||||
|
2022 |
151,000 |
137,386 |
15,112 |
1,000 |
14,112 |
104.64 |
$1,477 |
$261 |
|||||
|
2021 |
138,000 |
133,385 |
14,672 |
1,000 |
13,672 |
104.15 |
$1,424 |
$157 |
|||||
| Property Account Status/Adjustments/Exemptions | ||
|---|---|---|
| Account # | Exemption Description | Amount |
|
R182261220 |
5% Capped Account |
0 |
| Property Deed Transaction History (Recorded in the County Clerk's Office) | ||||||||||
|---|---|---|---|---|---|---|---|---|---|---|
| Date | Type | Book | Page | Price | Grantor | Grantee | ||||
|
2/3/2023 |
|
Deeds |
$185,000 |
HUNTLEIGH CO HOLDINGS LLC |
JUDD HOPE ALEXANDRIA |
|||||
|
6/21/2022 |
|
Deeds |
$99,000 |
COLSTON CHRIS E |
HUNTLEIGH CO HOLDINGS LLC |
|||||
|
12/29/2006 |
|
Deeds |
$96,000 |
FEDERAL NATIONAL MORTGAGE ASSOCIATION ATTN ANN PALEZ |
COLSTON CHRIS E |
|||||
|
10/30/2006 |
|
Hmstd Off & |
$0 |
CARROLL ANNITA L |
FEDERAL NATIONAL MORTGAGE ASSOCIATION ATTN ANN PALEZ |
|||||
|
8/27/2004 |
|
Deeds |
$108,000 |
STRUTHERS DAWN M |
CARROLL ANNITA L |
|||||
| Last Mailed Notice of Value (N.O.V.) Information/History | ||||||||
|---|---|---|---|---|---|---|---|---|
| Year | Date | Market Value | Taxable Market Value | Gross Assessed | Exemption | Net Assessed | ||
|
2024 |
01/22/2024 |
190,500 |
190,500 |
20,955 |
0 |
20,955 |
||
|
2023 |
01/23/2023 |
183,000 |
183,000 |
20,130 |
0 |
20,130 |
||
|
2023 |
03/02/2023 |
183,000 |
183,000 |
20,130 |
0 |
20,130 |
||
|
2022 |
02/22/2022 |
151,000 |
137,386 |
15,112 |
1,000 |
14,112 |
||
|
2021 |
02/24/2021 |
138,000 |
133,385 |
14,672 |
1,000 |
13,672 |
||
| Property Building Permit History | |||||||||||
|---|---|---|---|---|---|---|---|---|---|---|---|
| Issued | Permit # | Provided by | Bldg # | Description | Est Construction Cost | Status | |||||
| No Building Permit records returned. | |||||||||||
| Click button on building number to access detailed information: | ||||||
|---|---|---|---|---|---|---|
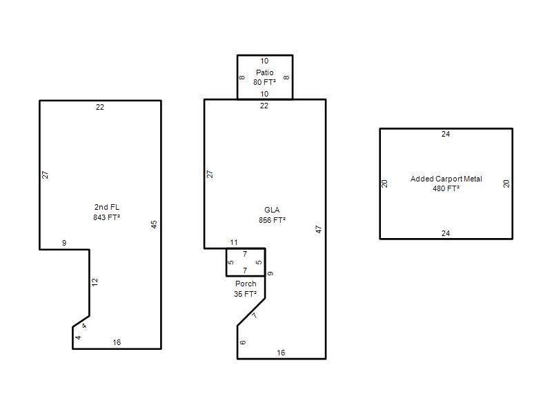
| Bldg # | Vacant/Improved Land | Bldg Description | Year Built | SqFt | # Stories | |
|
1 |
Improved |
Townhouse Multiple Story |
1979 |
1,699 |
2 Stories |
|