|
|
|
| Larry Stein Oklahoma County Assessor (405) 713-1200 - Public Access System |
|
|
|
|
|
|
| Real Property Display - Screen Produced 4/1/2026 1:59:34 AM | ||||
|---|---|---|---|---|
| Account: R124911210 | Type: Residential | Location: |
1404 ECHOHOLLOW TRL |
|
| Building Name/Occupant: |
|
EDMOND |
||
| Owner Name 1: | BYNUM CODY RYAN |
Parcel PIN#: |
4638-12-491-1210 |
|
| Owner Name 2: | 1/4 section #: |
4638 |
||
| Owner Name 3: | Parent Acct: |
|
||
| Billing Address: | 1404 ECHOHOLLOW TRL | Tax District: |
|
|
| City, State, Zip | EDMOND, OK 73025 | School System: |
Edmond #12 |
|
|
Country: (If noted) |
UNITED STATES |
Land Size: |
0.2789 Acres |
|
|
Land Value: 73,994 |
|
|||
|
Sect 10-T14N-R3W Qtr SE |
OAKTREE PARK 1ST TO EDMOND
Block
002
Lot
002
|
|||
| Full Legal Description: OAKTREE PARK 1ST TO EDMOND 002 002 |
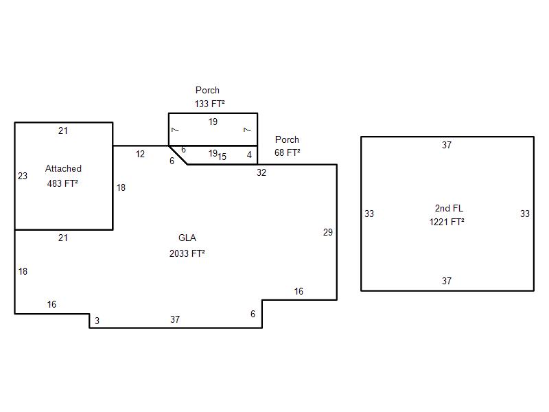
| Photo & Sketch (if available) | Comp Sales (ordered by relevancy) |
|
||||||||||||||||||
|
||||||||||||||||||||
| Value History (*The County Treasurer 405-713-1300 posts & collects actual tax amounts. Contact information HERE) | |||||||||||||
|---|---|---|---|---|---|---|---|---|---|---|---|---|---|
| Year | Market Value | Taxable Mkt Value | Gross Assessed | Exemption | Net Assessed | Millage | Est. Tax | Tax Savings | |||||
|
2026 |
549,000 |
549,000 |
60,390 |
60,390 |
0 |
105.16 |
$0 |
$6,351 |
|||||
|
2025 |
546,500 |
546,500 |
60,115 |
60,115 |
0 |
105.16 |
$0 |
$6,322 |
|||||
|
2024 |
527,500 |
455,524 |
50,107 |
0 |
50,107 |
105.03 |
$5,263 |
$832 |
|||||
|
2023 |
498,500 |
433,833 |
47,721 |
0 |
47,721 |
104.24 |
$4,975 |
$741 |
|||||
|
2022 |
435,000 |
413,175 |
45,449 |
0 |
45,449 |
104.64 |
$4,756 |
$251 |
|||||
| Property Account Status/Adjustments/Exemptions | ||
|---|---|---|
| Account # | Exemption Description | Amount |
|
R124911210 |
3% Cap Homestead |
0 |
|
R124911210 |
100% DAV Exemption |
100 |
|
R124911210 |
DAV Homestead |
0 |
| Property Deed Transaction History (Recorded in the County Clerk's Office) | ||||||||||
|---|---|---|---|---|---|---|---|---|---|---|
| Date | Type | Book | Page | Price | Grantor | Grantee | ||||
|
4/24/2024 |
|
Deeds |
$490,000 |
EMERSON TAMARA L |
BYNUM CODY RYAN |
|||||
|
2/8/2024 |
|
Hmstd Off & |
$0 |
EMERSON TAMARA |
EMERSON TAMARA L |
|||||
|
7/10/2020 |
|
Deeds |
$410,000 |
STURDEVANT SARAH |
EMERSON TAMARA |
|||||
|
8/21/2018 |
|
Deeds |
$380,000 |
BUNTYN KINSEY LYNN |
STURDEVANT SARAH |
|||||
|
12/31/2012 |
|
Hmstd Off & |
$0 |
BUNTYN MARK F |
BUNTYN KINSEY LYNN |
|||||
| Last Mailed Notice of Value (N.O.V.) Information/History | ||||||||
|---|---|---|---|---|---|---|---|---|
| Year | Date | Market Value | Taxable Market Value | Gross Assessed | Exemption | Net Assessed | ||
|
2026 |
02/06/2026 |
549,000 |
549,000 |
60,390 |
60,390 |
0 |
||
|
2025 |
01/31/2025 |
546,500 |
546,500 |
60,115 |
60,115 |
0 |
||
|
2024 |
01/22/2024 |
527,500 |
455,524 |
50,107 |
0 |
50,107 |
||
|
2024 |
04/05/2024 |
527,500 |
455,524 |
50,107 |
0 |
50,107 |
||
|
2023 |
01/23/2023 |
498,500 |
433,833 |
47,721 |
0 |
47,721 |
||
| Property Building Permit History | ||||||
|---|---|---|---|---|---|---|
| Issued | Permit # | Provided by | Bldg # | Description | Est Construction Cost | Status |
|
4/30/1998 |
10212686 |
EDMOND |
1 |
Swimming Pool |
33,000 |
Inactive |
| Click button on building number to access detailed information: | ||||||
|---|---|---|---|---|---|---|
| Bldg # | Vacant/Improved Land | Bldg Description | Year Built | SqFt | # Stories | |
|
1 |
Improved |
1½ Story Fin |
1989 |
3,254 |
1.5 Stories |
|