|
|
|
| Larry Stein Oklahoma County Assessor (405) 713-1200 - Public Access System |
|
|
|
|
|
|
| Real Property Display - Screen Produced 3/20/2026 3:29:47 PM | ||||
|---|---|---|---|---|
| Account: R183430660 | Type: Residential | Location: |
403 N BAUMANN AVE |
|
| Building Name/Occupant: |
|
EDMOND |
||
| Owner Name 1: | AWM REAL ESTATE LLC |
Parcel PIN#: |
4698-18-343-0660 |
|
| Owner Name 2: | 1/4 section #: |
4698 |
||
| Owner Name 3: | Parent Acct: |
|
||
| Billing Address: | 14500 N HIWASSEE RD | Tax District: |
|
|
| City, State, Zip | JONES, OK 73049-8821 | School System: |
Edmond #12 |
|
|
Country: (If noted) |
Land Size: |
0.2796 Acres |
||
|
Land Value: 47,015 |
|
|||
|
Sect 25-T14N-R3W Qtr SE |
HIGHLAND PARK ADD
Block
005
Lot
000
|
|||
| Full Legal Description: HIGHLAND PARK ADD 005 000 S 1/2 LOT 14 & ALL LOTS 15 THRU 17 |
| Photo & Sketch (if available) | Comp Sales (ordered by relevancy) |
|
||||||||||||||||||
|
||||||||||||||||||||
| Value History (*The County Treasurer 405-713-1300 posts & collects actual tax amounts. Contact information HERE) | |||||||||||||
|---|---|---|---|---|---|---|---|---|---|---|---|---|---|
| Year | Market Value | Taxable Mkt Value | Gross Assessed | Exemption | Net Assessed | Millage | Est. Tax | Tax Savings | |||||
|
2025 |
174,000 |
174,000 |
19,140 |
0 |
19,140 |
105.16 |
$2,013 |
$0 |
|||||
|
2024 |
134,000 |
134,000 |
14,740 |
0 |
14,740 |
105.03 |
$1,548 |
$0 |
|||||
|
2023 |
131,000 |
131,000 |
14,410 |
0 |
14,410 |
104.24 |
$1,502 |
$0 |
|||||
|
2022 |
100,500 |
90,554 |
9,960 |
0 |
9,960 |
104.64 |
$1,042 |
$114 |
|||||
|
2021 |
95,500 |
86,242 |
9,485 |
0 |
9,485 |
104.15 |
$988 |
$106 |
|||||
| Property Account Status/Adjustments/Exemptions | ||
|---|---|---|
| Account # | Exemption Description | Amount |
|
R183430660 |
5% Capped Account |
0 |
| Property Deed Transaction History (Recorded in the County Clerk's Office) | |||||||
|---|---|---|---|---|---|---|---|
| Date | Type | Book | Page | Price | Grantor | Grantee | |
|
3/14/2024 |
|
Deeds |
$220,000 |
STILWELL JAMES F & SHELLY L |
AWM REAL ESTATE LLC |
||
|
9/14/2022 |
|
Deeds |
$130,000 |
VULCAN PROPERTIES GROUP LLC |
STILWELL JAMES F & SHELLY L |
||
|
8/10/2021 |
|
Hmstd Off & |
$0 |
BROWN WENDY M |
VULCAN PROPERTIES GROUP LLC |
||
|
12/17/1999 |
|
Deeds |
$79,000 |
THE SUTLERY INC EMPLOYEES PENSION PLAN & TRUST |
BROWN WENDY M |
||
|
4/1/1985 |
|
Historical |
$0 |
|
THE SUTLERY INC EMPLOYEES |
||
| Last Mailed Notice of Value (N.O.V.) Information/History | ||||||||
|---|---|---|---|---|---|---|---|---|
| Year | Date | Market Value | Taxable Market Value | Gross Assessed | Exemption | Net Assessed | ||
|
2026 |
02/06/2026 |
186,500 |
182,700 |
20,097 |
0 |
20,097 |
||
|
2025 |
01/31/2025 |
174,000 |
174,000 |
19,140 |
0 |
19,140 |
||
|
2024 |
01/22/2024 |
134,000 |
134,000 |
14,740 |
0 |
14,740 |
||
|
2024 |
04/05/2024 |
134,000 |
134,000 |
14,740 |
0 |
14,740 |
||
|
2023 |
01/23/2023 |
131,000 |
131,000 |
14,410 |
0 |
14,410 |
||
| Property Building Permit History | |||||||||||
|---|---|---|---|---|---|---|---|---|---|---|---|
| Issued | Permit # | Provided by | Bldg # | Description | Est Construction Cost | Status | |||||
| No Building Permit records returned. | |||||||||||
| Click button on building number to access detailed information: | ||||||
|---|---|---|---|---|---|---|
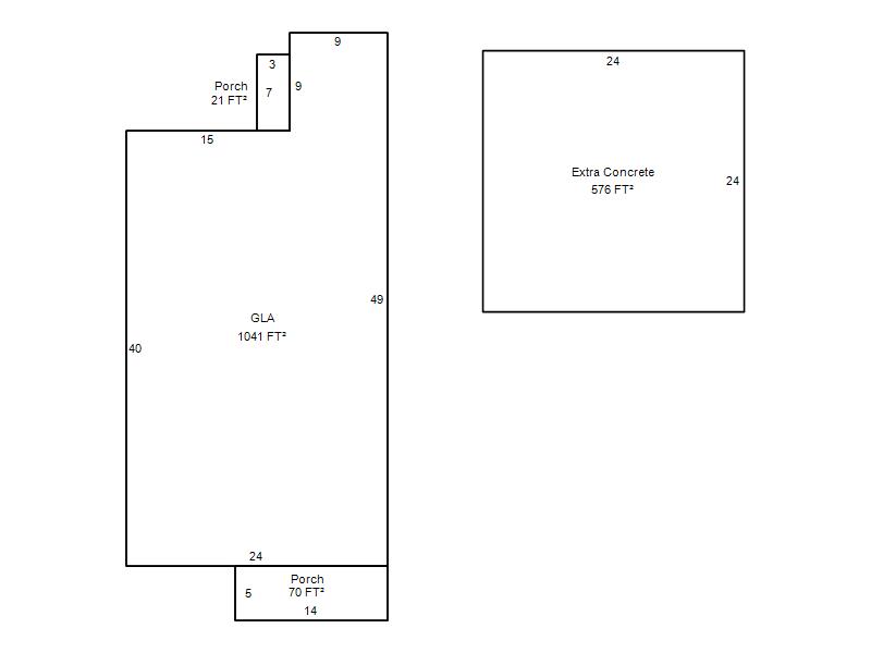
| Bldg # | Vacant/Improved Land | Bldg Description | Year Built | SqFt | # Stories | |
|
1 |
Improved |
Ranch 1 Story |
1949 |
1,041 |
1 Stories |
|