|
|
|
| Larry Stein Oklahoma County Assessor (405) 713-1200 - Public Access System |
|
|
|
|
|
|
| Real Property Display - Screen Produced 3/20/2026 4:56:59 PM | ||||
|---|---|---|---|---|
| Account: R184851290 | Type: Residential | Location: |
1018 WASHINGTON ST |
|
| Building Name/Occupant: |
|
EDMOND |
||
| Owner Name 1: | BLAKE FAMILY INVESTMENTS LLC |
Parcel PIN#: |
4700-18-485-1290 |
|
| Owner Name 2: | 1/4 section #: |
4700 |
||
| Owner Name 3: | Parent Acct: |
|
||
| Billing Address: | 18500 SCARLET OAK LN | Tax District: |
|
|
| City, State, Zip | EDMOND, OK 73012 | School System: |
Edmond #12 |
|
|
Country: (If noted) |
Land Size: |
0.1983 Acres |
||
|
Land Value: 27,475 |
|
|||
|
Sect 25-T14N-R3W Qtr NW |
COLLEGE VIEW SEC 1
Block
002
Lot
011
|
|||
| Full Legal Description: COLLEGE VIEW SEC 1 002 011 |
| Photo & Sketch (if available) | Comp Sales (ordered by relevancy) |
|
||||||||||||||||||
|
||||||||||||||||||||
| Value History (*The County Treasurer 405-713-1300 posts & collects actual tax amounts. Contact information HERE) | |||||||||||||
|---|---|---|---|---|---|---|---|---|---|---|---|---|---|
| Year | Market Value | Taxable Mkt Value | Gross Assessed | Exemption | Net Assessed | Millage | Est. Tax | Tax Savings | |||||
|
2025 |
250,000 |
250,000 |
27,500 |
0 |
27,500 |
105.16 |
$2,892 |
$0 |
|||||
|
2024 |
248,500 |
227,115 |
24,982 |
1,000 |
23,982 |
105.03 |
$2,519 |
$352 |
|||||
|
2023 |
220,500 |
220,500 |
24,255 |
1,000 |
23,255 |
104.24 |
$2,424 |
$104 |
|||||
|
2022 |
172,000 |
159,862 |
17,584 |
0 |
17,584 |
104.64 |
$1,840 |
$140 |
|||||
|
2021 |
152,500 |
152,250 |
16,747 |
0 |
16,747 |
104.15 |
$1,744 |
$3 |
|||||
| Property Account Status/Adjustments/Exemptions | ||
|---|---|---|
| Account # | Exemption Description | Amount |
|
R184851290 |
5% Capped Account |
0 |
| Property Deed Transaction History (Recorded in the County Clerk's Office) | ||||||||||
|---|---|---|---|---|---|---|---|---|---|---|
| Date | Type | Book | Page | Price | Grantor | Grantee | ||||
|
3/26/2025 |
|
Hmstd Off & |
$0 |
BLAKE WILLIAM WALKER & SYDNEY MOORE |
BLAKE FAMILY INVESTMENTS LLC |
|||||
|
6/26/2024 |
|
Deeds |
$215,000 |
COTT DILLON J |
BLAKE WILLIAM WALKER & SYDNEY MOORE |
|||||
|
3/10/2022 |
|
Deeds |
$212,000 |
STERN JOHN W TRS ETAL |
COTT DILLON J |
|||||
|
7/9/2018 |
|
Deeds |
$156,000 |
OVREBO CLARK L |
STERN JOHN W TRS ETAL |
|||||
|
5/31/1996 |
|
Historical |
$70,000 |
JAYNE E HOWARD & PHYLLIS M |
OVREBO CLARK L |
|||||
| Last Mailed Notice of Value (N.O.V.) Information/History | ||||||||
|---|---|---|---|---|---|---|---|---|
| Year | Date | Market Value | Taxable Market Value | Gross Assessed | Exemption | Net Assessed | ||
|
2026 |
02/06/2026 |
260,000 |
260,000 |
28,600 |
0 |
28,600 |
||
|
2025 |
01/31/2025 |
250,000 |
250,000 |
27,500 |
0 |
27,500 |
||
|
2024 |
01/22/2024 |
248,500 |
227,115 |
24,982 |
1,000 |
23,982 |
||
|
2023 |
01/23/2023 |
220,500 |
220,500 |
24,255 |
0 |
24,255 |
||
|
2022 |
02/22/2022 |
172,000 |
159,862 |
17,584 |
0 |
17,584 |
||
| Property Building Permit History | |||||||||||
|---|---|---|---|---|---|---|---|---|---|---|---|
| Issued | Permit # | Provided by | Bldg # | Description | Est Construction Cost | Status | |||||
| No Building Permit records returned. | |||||||||||
| Click button on building number to access detailed information: | ||||||
|---|---|---|---|---|---|---|
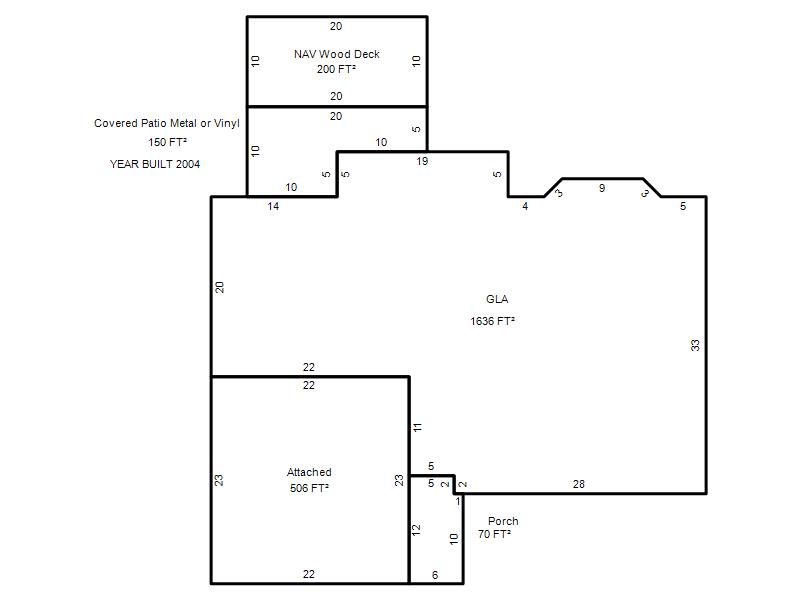
| Bldg # | Vacant/Improved Land | Bldg Description | Year Built | SqFt | # Stories | |
|
1 |
Improved |
Ranch 1 Story |
1971 |
1,636 |
1 Stories |
|