|
|
|
| Larry Stein Oklahoma County Assessor (405) 713-1200 - Public Access System |
|
|
|
|
|
|
| Real Property Display - Screen Produced 4/3/2026 5:47:46 AM | ||||
|---|---|---|---|---|
| Account: R180411555 | Type: Residential | Location: |
67 SHIRLEY LN |
|
| Building Name/Occupant: |
|
EDMOND |
||
| Owner Name 1: | SCOTT ROY A REV INTERVIVOS TRUST |
Parcel PIN#: |
4701-18-041-1555 |
|
| Owner Name 2: | 1/4 section #: |
4701 |
||
| Owner Name 3: | Parent Acct: |
|
||
| Billing Address: | 4929 W COUNTRY CLUB DR | Tax District: |
|
|
| City, State, Zip | STILLWATER, OK 74074-1535 | School System: |
Edmond #12 |
|
|
Country: (If noted) |
Land Size: |
0.1957 Acres |
||
|
Land Value: 25,575 |
|
|||
|
Sect 26-T14N-R3W Qtr NE |
MASON ACRES
Block
002
Lot
026
|
|||
| Full Legal Description: MASON ACRES 002 026 |
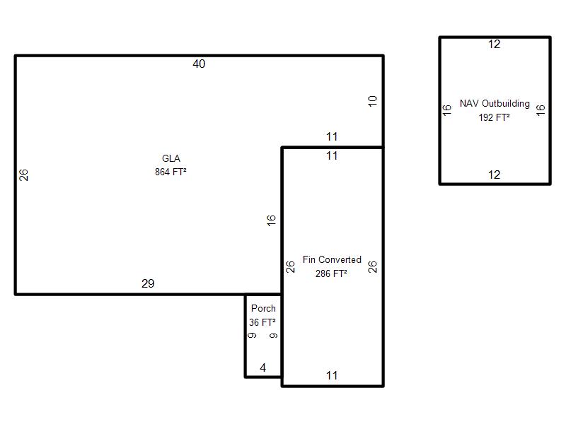
| Photo & Sketch (if available) | Comp Sales (ordered by relevancy) |
|
||||||||||||||||||
|
||||||||||||||||||||
| Value History (*The County Treasurer 405-713-1300 posts & collects actual tax amounts. Contact information HERE) | |||||||||||||
|---|---|---|---|---|---|---|---|---|---|---|---|---|---|
| Year | Market Value | Taxable Mkt Value | Gross Assessed | Exemption | Net Assessed | Millage | Est. Tax | Tax Savings | |||||
|
2026 |
157,000 |
157,000 |
17,270 |
0 |
17,270 |
105.16 |
$1,816 |
$0 |
|||||
|
2025 |
156,000 |
122,522 |
13,476 |
0 |
13,476 |
105.16 |
$1,417 |
$387 |
|||||
|
2024 |
145,000 |
116,688 |
12,835 |
0 |
12,835 |
105.03 |
$1,348 |
$327 |
|||||
|
2023 |
136,000 |
111,132 |
12,224 |
0 |
12,224 |
104.24 |
$1,274 |
$285 |
|||||
|
2022 |
119,000 |
105,840 |
11,642 |
0 |
11,642 |
104.64 |
$1,218 |
$151 |
|||||
| Property Account Status/Adjustments/Exemptions | ||||||
|---|---|---|---|---|---|---|
| Account # | Exemption Description | Amount | ||||
| No adjustment/exemption records returned. | ||||||
| Property Deed Transaction History (Recorded in the County Clerk's Office) | ||||||||||
|---|---|---|---|---|---|---|---|---|---|---|
| Date | Type | Book | Page | Price | Grantor | Grantee | ||||
|
9/1/2025 |
|
Hmstd Off & |
$0 |
SCOTT ROY A REV INTERVIVOS TRUST |
SCOTT ROY A REV INTERVIVOS TRUST |
|||||
|
2/5/2025 |
|
Deeds |
$147,000 |
STEVE BS RENTALS LLC |
SCOTT ROY A REV INTERVIVOS TRUST |
|||||
|
10/31/2018 |
|
Hmstd Off & |
$0 |
BRIDEWELL LEWIS ROY & VIRGINIA LEE TRS |
STEVE BS RENTALS LLC |
|||||
|
4/17/2007 |
|
Hmstd Off & |
$0 |
VRB LLC |
BRIDEWELL LEWIS ROY & VIRGINIA LEE TRS |
|||||
|
8/5/2003 |
|
Hmstd Off & |
$0 |
BRIDWELL VIRGINIA REV TRUST |
VRB LLC |
|||||
| Last Mailed Notice of Value (N.O.V.) Information/History | ||||||||
|---|---|---|---|---|---|---|---|---|
| Year | Date | Market Value | Taxable Market Value | Gross Assessed | Exemption | Net Assessed | ||
|
2026 |
02/06/2026 |
157,000 |
157,000 |
17,270 |
0 |
17,270 |
||
|
2025 |
01/31/2025 |
156,000 |
122,522 |
13,476 |
0 |
13,476 |
||
|
2025 |
03/28/2025 |
156,000 |
122,522 |
13,476 |
0 |
13,476 |
||
|
2024 |
01/22/2024 |
145,000 |
116,688 |
12,835 |
0 |
12,835 |
||
|
2023 |
01/23/2023 |
136,000 |
111,132 |
12,224 |
0 |
12,224 |
||
| Property Building Permit History | |||||||||||
|---|---|---|---|---|---|---|---|---|---|---|---|
| Issued | Permit # | Provided by | Bldg # | Description | Est Construction Cost | Status | |||||
| No Building Permit records returned. | |||||||||||
| Click button on building number to access detailed information: | ||||||
|---|---|---|---|---|---|---|
| Bldg # | Vacant/Improved Land | Bldg Description | Year Built | SqFt | # Stories | |
|
1 |
Improved |
Ranch 1 Story |
1961 |
864 |
1 Stories |
|