|
|
|
| Larry Stein Oklahoma County Assessor (405) 713-1200 - Public Access System |
|
|
|
|
|
|
| Real Property Display - Screen Produced 3/20/2026 7:47:39 PM | ||||
|---|---|---|---|---|
| Account: R182061450 | Type: Residential | Location: |
405 MEADOW LAKE DR |
|
| Building Name/Occupant: |
|
EDMOND |
||
| Owner Name 1: | HODGE DANIEL |
Parcel PIN#: |
4704-18-206-1450 |
|
| Owner Name 2: | 1/4 section #: |
4704 |
||
| Owner Name 3: | Parent Acct: |
|
||
| Billing Address: | 405 MEADOW LAKE DR | Tax District: |
|
|
| City, State, Zip | EDMOND, OK 73003 | School System: |
Edmond #12 |
|
|
Country: (If noted) |
Land Size: |
0.1452 Acres |
||
|
Land Value: 24,035 |
|
|||
|
Sect 26-T14N-R3W Qtr NW |
MEADOW LAKES SEC 4
Block
012
Lot
008
|
|||
| Full Legal Description: MEADOW LAKES SEC 4 012 008 |
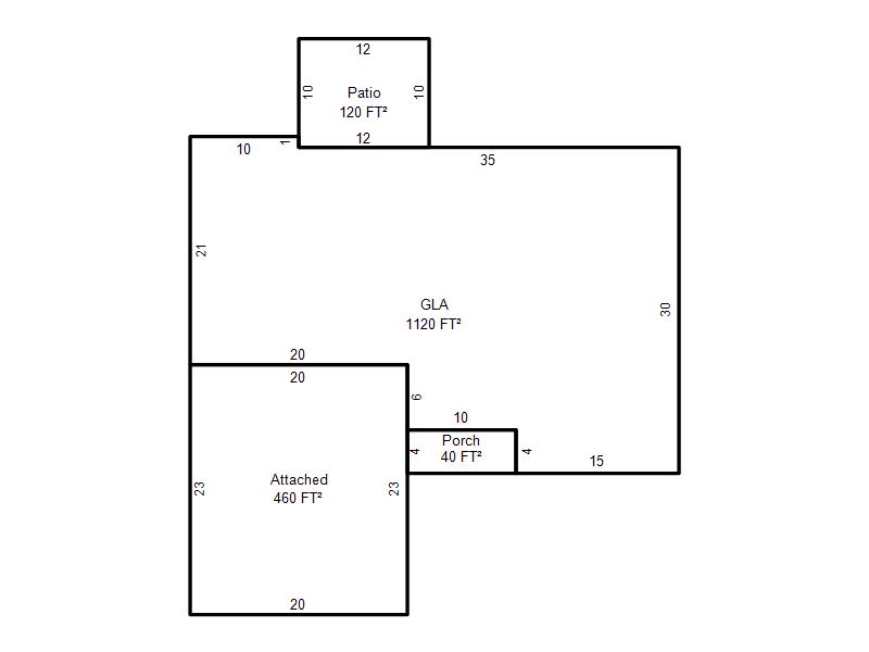
| Photo & Sketch (if available) | Comp Sales (ordered by relevancy) |
|
||||||||||||||||||
|
||||||||||||||||||||
| Value History (*The County Treasurer 405-713-1300 posts & collects actual tax amounts. Contact information HERE) | |||||||||||||
|---|---|---|---|---|---|---|---|---|---|---|---|---|---|
| Year | Market Value | Taxable Mkt Value | Gross Assessed | Exemption | Net Assessed | Millage | Est. Tax | Tax Savings | |||||
|
2025 |
174,000 |
146,132 |
16,074 |
0 |
16,074 |
105.16 |
$1,690 |
$322 |
|||||
|
2024 |
170,000 |
139,174 |
15,309 |
0 |
15,309 |
105.03 |
$1,608 |
$356 |
|||||
|
2023 |
160,500 |
132,547 |
14,579 |
0 |
14,579 |
104.24 |
$1,520 |
$321 |
|||||
|
2022 |
142,000 |
126,236 |
13,885 |
0 |
13,885 |
104.64 |
$1,453 |
$181 |
|||||
|
2021 |
123,500 |
120,225 |
13,224 |
0 |
13,224 |
104.15 |
$1,377 |
$38 |
|||||
| Property Account Status/Adjustments/Exemptions | ||||||
|---|---|---|---|---|---|---|
| Account # | Exemption Description | Amount | ||||
| No adjustment/exemption records returned. | ||||||
| Property Deed Transaction History (Recorded in the County Clerk's Office) | ||||||||||
|---|---|---|---|---|---|---|---|---|---|---|
| Date | Type | Book | Page | Price | Grantor | Grantee | ||||
|
4/14/2025 |
|
Deeds |
$205,000 |
MORRISON KATHY L & KIRK W TRS |
HODGE DANIEL |
|||||
|
4/7/2025 |
|
Hmstd Off & |
$0 |
BROWNELL DAVID D & SONIA K TRS |
MORRISON KATHY L & KIRK W TRS |
|||||
|
2/11/2013 |
|
Deeds |
$0 |
MORRISON KIRK W & KATHY L TRS MORRISON KIRK & KATHY LIVING T |
MORRISON KATHY L & KIRK W TRS |
|||||
|
5/12/2010 |
|
Deeds |
$0 |
MORRISON KIRK & KATHY BROWNELL DAVID & KATHY |
MORRISON KIRK & KATHY TRS |
|||||
|
1/9/2010 |
|
Deeds |
$0 |
BROWNELL DAVID D MORRISON KIRK WAYNE |
BROWNELL DAVID D & SONIA TRS BROWNELL DAVID D & SONIA K LIV |
|||||
| Last Mailed Notice of Value (N.O.V.) Information/History | ||||||||
|---|---|---|---|---|---|---|---|---|
| Year | Date | Market Value | Taxable Market Value | Gross Assessed | Exemption | Net Assessed | ||
|
2026 |
02/06/2026 |
176,500 |
176,500 |
19,415 |
0 |
19,415 |
||
|
2025 |
01/31/2025 |
174,000 |
146,132 |
16,074 |
0 |
16,074 |
||
|
2024 |
01/22/2024 |
170,000 |
139,174 |
15,309 |
0 |
15,309 |
||
|
2023 |
01/23/2023 |
160,500 |
132,547 |
14,579 |
0 |
14,579 |
||
|
2022 |
02/22/2022 |
142,000 |
126,236 |
13,885 |
0 |
13,885 |
||
| Property Building Permit History | |||||||||||
|---|---|---|---|---|---|---|---|---|---|---|---|
| Issued | Permit # | Provided by | Bldg # | Description | Est Construction Cost | Status | |||||
| No Building Permit records returned. | |||||||||||
| Click button on building number to access detailed information: | ||||||
|---|---|---|---|---|---|---|
| Bldg # | Vacant/Improved Land | Bldg Description | Year Built | SqFt | # Stories | |
|
1 |
Improved |
Ranch 1 Story |
1974 |
1,120 |
1 Stories |
|