|
|
|
| Larry Stein Oklahoma County Assessor (405) 713-1200 - Public Access System |
|
|
|
|
|
|
| Real Property Display - Screen Produced 3/20/2026 8:04:53 PM | ||||
|---|---|---|---|---|
| Account: R182061760 | Type: Residential | Location: |
601 KAY HILL LN |
|
| Building Name/Occupant: |
|
EDMOND |
||
| Owner Name 1: | AIRINGTON JAMES CLAYTON |
Parcel PIN#: |
4704-18-206-1760 |
|
| Owner Name 2: | AIRINGTON DESIREE MICHELE | 1/4 section #: |
4704 |
|
| Owner Name 3: | Parent Acct: |
|
||
| Billing Address: | 601 KAY HILL LN | Tax District: |
|
|
| City, State, Zip | EDMOND, OK 73003-5048 | School System: |
Edmond #12 |
|
|
Country: (If noted) |
Land Size: |
0.1732 Acres |
||
|
Land Value: 24,000 |
|
|||
|
Sect 26-T14N-R3W Qtr NW |
MEADOW LAKES SEC 4
Block
014
Lot
020
|
|||
| Full Legal Description: MEADOW LAKES SEC 4 014 020 |
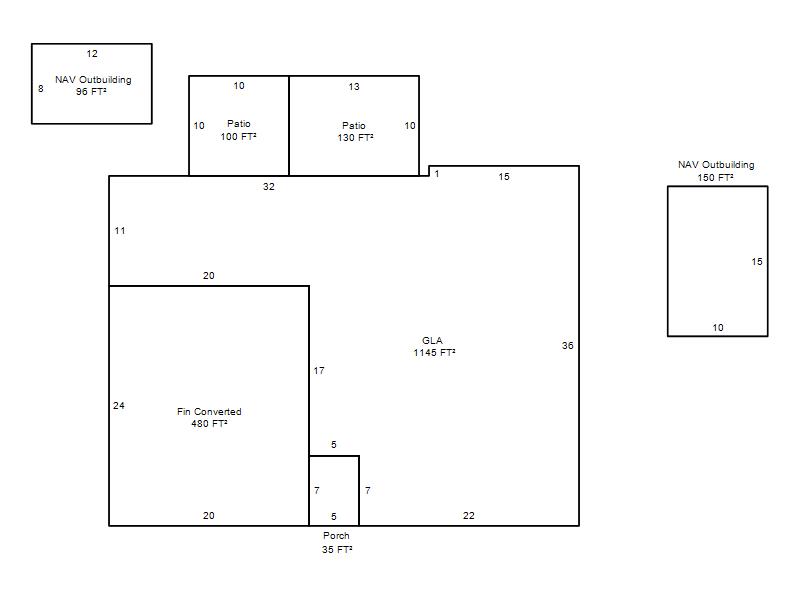
| Photo & Sketch (if available) | Comp Sales (ordered by relevancy) |
|
||||||||||||||||||
|
||||||||||||||||||||
| Value History (*The County Treasurer 405-713-1300 posts & collects actual tax amounts. Contact information HERE) | |||||||||||||
|---|---|---|---|---|---|---|---|---|---|---|---|---|---|
| Year | Market Value | Taxable Mkt Value | Gross Assessed | Exemption | Net Assessed | Millage | Est. Tax | Tax Savings | |||||
|
2025 |
194,000 |
153,602 |
16,896 |
1,000 |
15,896 |
105.16 |
$1,672 |
$572 |
|||||
|
2024 |
189,500 |
149,129 |
16,403 |
1,000 |
15,403 |
105.03 |
$1,618 |
$571 |
|||||
|
2023 |
178,500 |
144,786 |
15,925 |
1,000 |
14,925 |
104.24 |
$1,556 |
$491 |
|||||
|
2022 |
161,000 |
140,569 |
15,462 |
1,000 |
14,462 |
104.64 |
$1,513 |
$340 |
|||||
|
2021 |
140,500 |
136,475 |
15,012 |
1,000 |
14,012 |
104.15 |
$1,459 |
$150 |
|||||
| Property Account Status/Adjustments/Exemptions | ||||||
|---|---|---|---|---|---|---|
| Account # | Exemption Description | Amount | ||||
| No adjustment/exemption records returned. | ||||||
| Property Deed Transaction History (Recorded in the County Clerk's Office) | ||||||||||
|---|---|---|---|---|---|---|---|---|---|---|
| Date | Type | Book | Page | Price | Grantor | Grantee | ||||
|
7/15/2025 |
|
Deeds |
$185,000 |
MOMENTUM GROUP LLC |
AIRINGTON JAMES CLAYTON |
|||||
|
2/5/2025 |
|
Deeds |
$140,000 |
TROYER MARK ANTHONY |
MOMENTUM GROUP LLC |
|||||
|
9/6/2011 |
|
Deeds |
$0 |
TROYER MARK A |
TROYER MARK ANTHONY |
|||||
|
12/22/1997 |
|
Historical |
$61,000 |
BUNN BILLY D |
TROYER MARK A |
|||||
|
2/22/1989 |
|
Historical |
$47,000 |
MATTINGLY JOHN T & AMY R |
BUNN BILLY D |
|||||
| Last Mailed Notice of Value (N.O.V.) Information/History | ||||||||
|---|---|---|---|---|---|---|---|---|
| Year | Date | Market Value | Taxable Market Value | Gross Assessed | Exemption | Net Assessed | ||
|
2026 |
02/06/2026 |
195,000 |
195,000 |
21,450 |
0 |
21,450 |
||
|
2025 |
01/31/2025 |
194,000 |
153,602 |
16,896 |
1,000 |
15,896 |
||
|
2025 |
03/28/2025 |
194,000 |
153,602 |
16,896 |
1,000 |
15,896 |
||
|
2024 |
01/22/2024 |
189,500 |
149,129 |
16,403 |
1,000 |
15,403 |
||
|
2023 |
01/23/2023 |
178,500 |
144,786 |
15,925 |
1,000 |
14,925 |
||
| Property Building Permit History | ||||||
|---|---|---|---|---|---|---|
| Issued | Permit # | Provided by | Bldg # | Description | Est Construction Cost | Status |
|
1/28/1992 |
10257308 |
EDMOND |
1 |
Add On |
1,000 |
Inactive |
| Click button on building number to access detailed information: | ||||||
|---|---|---|---|---|---|---|
| Bldg # | Vacant/Improved Land | Bldg Description | Year Built | SqFt | # Stories | |
|
1 |
Improved |
Ranch 1 Story |
1976 |
1,145 |
1 Stories |
|