|
|
|
| Larry Stein Oklahoma County Assessor (405) 713-1200 - Public Access System |
|
|
|
|
|
|
| Real Property Display - Screen Produced 4/1/2026 8:43:31 AM | ||||
|---|---|---|---|---|
| Account: R122641210 | Type: Residential | Location: |
2116 SHOREWOOD LN |
|
| Building Name/Occupant: |
|
EDMOND |
||
| Owner Name 1: | CHAUHAN SUDEEP |
Parcel PIN#: |
4707-12-264-1210 |
|
| Owner Name 2: | 1/4 section #: |
4707 |
||
| Owner Name 3: | Parent Acct: |
|
||
| Billing Address: | 2116 SHOREWOOD LN | Tax District: |
|
|
| City, State, Zip | EDMOND, OK 73003-4726 | School System: |
Edmond #12 |
|
|
Country: (If noted) |
Land Size: |
0.1641 Acres |
||
|
Land Value: 30,388 |
|
|||
|
Sect 27-T14N-R3W Qtr SW |
OAK BROOK 1ST
Block
002
Lot
007
|
|||
| Full Legal Description: OAK BROOK 1ST 002 007 |
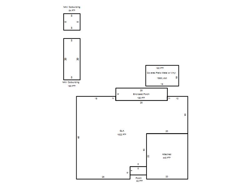
| Photo & Sketch (if available) | Comp Sales (ordered by relevancy) |
|
||||||||||||||||||
|
||||||||||||||||||||
| Value History (*The County Treasurer 405-713-1300 posts & collects actual tax amounts. Contact information HERE) | |||||||||||||
|---|---|---|---|---|---|---|---|---|---|---|---|---|---|
| Year | Market Value | Taxable Mkt Value | Gross Assessed | Exemption | Net Assessed | Millage | Est. Tax | Tax Savings | |||||
|
2026 |
233,000 |
233,000 |
25,630 |
0 |
25,630 |
105.16 |
$2,695 |
$0 |
|||||
|
2025 |
225,500 |
194,481 |
21,392 |
0 |
21,392 |
105.16 |
$2,250 |
$359 |
|||||
|
2024 |
223,000 |
185,220 |
20,374 |
0 |
20,374 |
105.03 |
$2,140 |
$436 |
|||||
|
2023 |
210,500 |
176,400 |
19,404 |
0 |
19,404 |
104.24 |
$2,023 |
$391 |
|||||
|
2022 |
168,000 |
168,000 |
18,480 |
0 |
18,480 |
104.64 |
$1,934 |
$0 |
|||||
| Property Account Status/Adjustments/Exemptions | ||||||
|---|---|---|---|---|---|---|
| Account # | Exemption Description | Amount | ||||
| No adjustment/exemption records returned. | ||||||
| Property Deed Transaction History (Recorded in the County Clerk's Office) | ||||||||||
|---|---|---|---|---|---|---|---|---|---|---|
| Date | Type | Book | Page | Price | Grantor | Grantee | ||||
|
2/28/2025 |
|
Deeds |
$223,000 |
BUFFINGTON JENNIFER K & CARL E |
CHAUHAN SUDEEP |
|||||
|
6/11/2021 |
|
Deeds |
$160,000 |
FARID KHALED |
BUFFINGTON JENNIFER K & CARL E |
|||||
|
3/6/2015 |
|
Deeds |
$148,000 |
LSG PROPERTY INVESTMENTS LLC |
FARID KHALED |
|||||
|
6/29/2007 |
|
Mult Parcel |
$2,500,000 |
BERRY EDWARD L & JUDITH J TRS |
LSG PROPERTY INVESTMENTS LLC |
|||||
|
8/10/2004 |
|
Deeds |
$0 |
BERRY EDWARD L & JUDITH J |
BERRY EDWARD L & JUDITH J REV TRUST |
|||||
| Last Mailed Notice of Value (N.O.V.) Information/History | ||||||||
|---|---|---|---|---|---|---|---|---|
| Year | Date | Market Value | Taxable Market Value | Gross Assessed | Exemption | Net Assessed | ||
|
2026 |
02/06/2026 |
233,000 |
233,000 |
25,630 |
0 |
25,630 |
||
|
2025 |
01/31/2025 |
225,500 |
194,481 |
21,392 |
0 |
21,392 |
||
|
2025 |
03/28/2025 |
225,500 |
194,481 |
21,392 |
0 |
21,392 |
||
|
2024 |
01/22/2024 |
223,000 |
185,220 |
20,374 |
0 |
20,374 |
||
|
2023 |
01/23/2023 |
210,500 |
176,400 |
19,404 |
0 |
19,404 |
||
| Property Building Permit History | |||||||||||
|---|---|---|---|---|---|---|---|---|---|---|---|
| Issued | Permit # | Provided by | Bldg # | Description | Est Construction Cost | Status | |||||
| No Building Permit records returned. | |||||||||||
| Click button on building number to access detailed information: | ||||||
|---|---|---|---|---|---|---|
| Bldg # | Vacant/Improved Land | Bldg Description | Year Built | SqFt | # Stories | |
|
1 |
Improved |
Ranch 1 Story |
1984 |
1,622 |
1 Stories |
|