|
|
|
| Larry Stein Oklahoma County Assessor (405) 713-1200 - Public Access System |
|
|
|
|
|
|
| Real Property Display - Screen Produced 3/23/2026 4:23:37 AM | ||||
|---|---|---|---|---|
| Account: R127811350 | Type: Residential | Location: |
2611 PINE VLY |
|
| Building Name/Occupant: |
|
EDMOND |
||
| Owner Name 1: | SHELLEY KEVIN R |
Parcel PIN#: |
4709-12-781-1350 |
|
| Owner Name 2: | MITCHELL PATRICK R | 1/4 section #: |
4709 |
|
| Owner Name 3: | Parent Acct: |
|
||
| Billing Address: | 2611 PINE VLY | Tax District: |
|
|
| City, State, Zip | EDMOND, OK 73012-4363 | School System: |
Edmond #12 |
|
|
Country: (If noted) |
Land Size: |
0.1832 Acres |
||
|
Land Value: 41,895 |
|
|||
|
Sect 28-T14N-R3W Qtr NE |
THE TRAILS 11TH AMD
Block
009
Lot
012
|
|||
| Full Legal Description: THE TRAILS 11TH AMD 009 012 |
| Photo & Sketch (if available) | Comp Sales (ordered by relevancy) |
|
||||||||||||||||||
|
||||||||||||||||||||
| Value History (*The County Treasurer 405-713-1300 posts & collects actual tax amounts. Contact information HERE) | |||||||||||||
|---|---|---|---|---|---|---|---|---|---|---|---|---|---|
| Year | Market Value | Taxable Mkt Value | Gross Assessed | Exemption | Net Assessed | Millage | Est. Tax | Tax Savings | |||||
|
2025 |
295,000 |
237,480 |
26,122 |
1,000 |
25,122 |
105.16 |
$2,642 |
$771 |
|||||
|
2024 |
289,500 |
230,564 |
25,361 |
1,000 |
24,361 |
105.03 |
$2,559 |
$786 |
|||||
|
2023 |
278,000 |
223,849 |
24,623 |
1,000 |
23,623 |
104.24 |
$2,463 |
$725 |
|||||
|
2022 |
241,000 |
217,330 |
23,906 |
1,000 |
22,906 |
104.64 |
$2,397 |
$377 |
|||||
|
2021 |
211,000 |
211,000 |
23,210 |
1,000 |
22,210 |
104.15 |
$2,313 |
$104 |
|||||
| Property Account Status/Adjustments/Exemptions | ||||||
|---|---|---|---|---|---|---|
| Account # | Exemption Description | Amount | ||||
| No adjustment/exemption records returned. | ||||||
| Property Deed Transaction History (Recorded in the County Clerk's Office) | ||||||||||
|---|---|---|---|---|---|---|---|---|---|---|
| Date | Type | Book | Page | Price | Grantor | Grantee | ||||
|
7/16/2025 |
|
Deeds |
$303,000 |
HUYS LOIS |
SHELLEY KEVIN R |
|||||
|
4/6/2020 |
|
Deeds |
$208,000 |
LAYMON SAMUEL L & HOLLYE |
HUYS LOIS |
|||||
|
3/31/2005 |
|
Deeds |
$153,000 |
KLISARES NICKOLAS A |
LAYMON SAMUEL L & HOLLYE |
|||||
|
5/17/1999 |
|
Deeds |
$142,000 |
ELY GARY JOE |
KLISARES NICKOLAS A |
|||||
|
4/4/1995 |
|
Historical |
$0 |
COLEMAN HOMES INC |
ELY GARY JOE |
|||||
| Last Mailed Notice of Value (N.O.V.) Information/History | ||||||||
|---|---|---|---|---|---|---|---|---|
| Year | Date | Market Value | Taxable Market Value | Gross Assessed | Exemption | Net Assessed | ||
|
2026 |
02/06/2026 |
293,000 |
293,000 |
32,230 |
0 |
32,230 |
||
|
2025 |
01/31/2025 |
295,000 |
237,480 |
26,122 |
1,000 |
25,122 |
||
|
2024 |
01/22/2024 |
289,500 |
230,564 |
25,361 |
1,000 |
24,361 |
||
|
2023 |
01/23/2023 |
278,000 |
223,849 |
24,623 |
1,000 |
23,623 |
||
|
2022 |
02/22/2022 |
241,000 |
217,330 |
23,906 |
1,000 |
22,906 |
||
| Property Building Permit History | ||||||
|---|---|---|---|---|---|---|
| Issued | Permit # | Provided by | Bldg # | Description | Est Construction Cost | Status |
|
2/9/1994 |
10219373 |
EDMOND |
1 |
Main Dwellin |
117,000 |
Inactive |
| Click button on building number to access detailed information: | ||||||
|---|---|---|---|---|---|---|
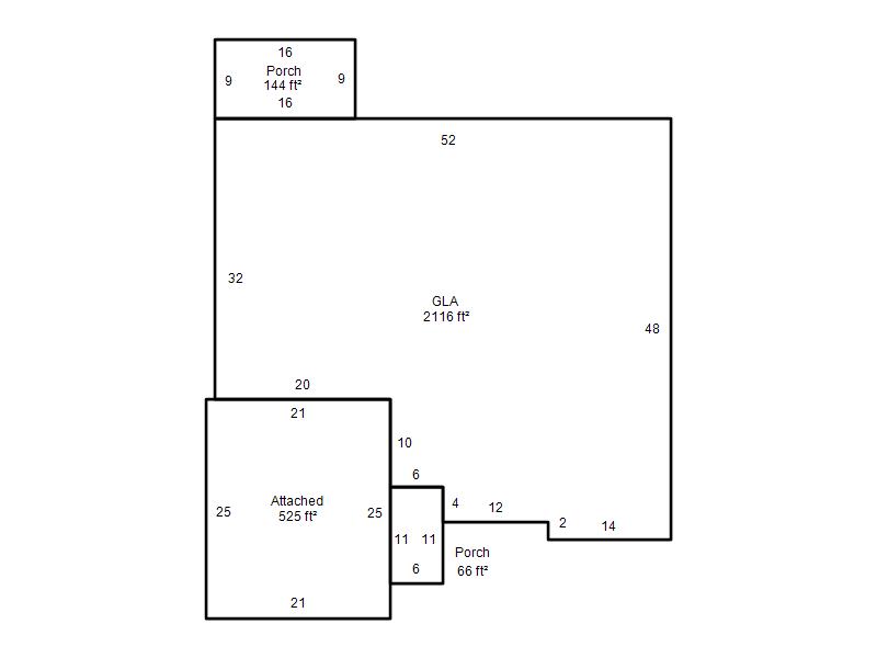
| Bldg # | Vacant/Improved Land | Bldg Description | Year Built | SqFt | # Stories | |
|
1 |
Improved |
Ranch 1 Story |
1994 |
2,116 |
1 Stories |
|