|
|
|
| Larry Stein Oklahoma County Assessor (405) 713-1200 - Public Access System |
|
|
|
|
|
|
| Real Property Display - Screen Produced 4/2/2026 3:57:38 PM | ||||
|---|---|---|---|---|
| Account: R129291420 | Type: Residential | Location: |
1308 NW 173RD ST |
|
| Building Name/Occupant: |
|
OKLAHOMA CITY |
||
| Owner Name 1: | HANGER BRADLEY ALLEN |
Parcel PIN#: |
4725-12-929-1420 |
|
| Owner Name 2: | 1/4 section #: |
4725 |
||
| Owner Name 3: | Parent Acct: |
|
||
| Billing Address: | 1308 NW 173RD ST | Tax District: |
|
|
| City, State, Zip | EDMOND, OK 73012-6972 | School System: |
Edmond #12 |
|
|
Country: (If noted) |
Land Size: |
0.1567 Acres |
||
|
Land Value: 37,538 |
|
|||
|
Sect 32-T14N-R3W Qtr NE |
DURBIN HILLS 3RD
Block
012
Lot
004
|
|||
| Full Legal Description: DURBIN HILLS 3RD 012 004 |
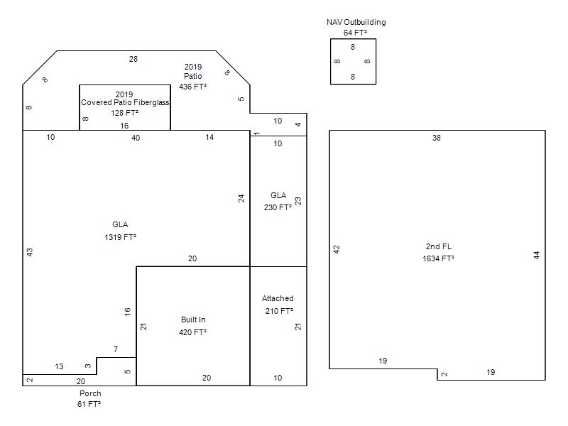
| Photo & Sketch (if available) | Comp Sales (ordered by relevancy) |
|
||||||||||||||||||
|
||||||||||||||||||||
| Value History (*The County Treasurer 405-713-1300 posts & collects actual tax amounts. Contact information HERE) | |||||||||||||
|---|---|---|---|---|---|---|---|---|---|---|---|---|---|
| Year | Market Value | Taxable Mkt Value | Gross Assessed | Exemption | Net Assessed | Millage | Est. Tax | Tax Savings | |||||
|
2026 |
399,000 |
399,000 |
43,890 |
0 |
43,890 |
120.32 |
$5,281 |
$0 |
|||||
|
2025 |
395,000 |
395,000 |
43,450 |
0 |
43,450 |
120.32 |
$5,228 |
$0 |
|||||
|
2024 |
371,000 |
371,000 |
40,810 |
0 |
40,810 |
119.96 |
$4,896 |
$0 |
|||||
|
2023 |
362,000 |
362,000 |
39,820 |
0 |
39,820 |
119.02 |
$4,739 |
$0 |
|||||
|
2022 |
291,500 |
253,081 |
27,838 |
1,000 |
26,838 |
120.10 |
$3,223 |
$628 |
|||||
| Property Account Status/Adjustments/Exemptions | ||
|---|---|---|
| Account # | Exemption Description | Amount |
|
R129291420 |
5% Capped Account |
0 |
| Property Deed Transaction History (Recorded in the County Clerk's Office) | ||||||||||
|---|---|---|---|---|---|---|---|---|---|---|
| Date | Type | Book | Page | Price | Grantor | Grantee | ||||
|
6/28/2024 |
|
Deeds |
$385,000 |
ZHAO SHIYAO |
HANGER BRADLEY ALLEN |
|||||
|
4/27/2022 |
|
Deeds |
$350,000 |
SORUM ROBERT D JR |
ZHAO SHIYAO |
|||||
|
4/27/2001 |
|
Deeds |
$154,500 |
ROLF RANDALL |
SORUM ROBERT D JR |
|||||
|
3/30/1999 |
|
Historical |
$0 |
ROLF RANDALL & MICHELLE C |
ROLF RANDALL |
|||||
|
9/30/1998 |
|
Historical |
$138,000 |
GOFF HOMES OF OKC INC |
ROLF RANDALL & MICHELLE |
|||||
| Last Mailed Notice of Value (N.O.V.) Information/History | ||||||||
|---|---|---|---|---|---|---|---|---|
| Year | Date | Market Value | Taxable Market Value | Gross Assessed | Exemption | Net Assessed | ||
|
2026 |
02/06/2026 |
399,000 |
399,000 |
43,890 |
0 |
43,890 |
||
|
2025 |
01/31/2025 |
395,000 |
395,000 |
43,450 |
0 |
43,450 |
||
|
2024 |
01/22/2024 |
371,000 |
371,000 |
40,810 |
0 |
40,810 |
||
|
2023 |
01/23/2023 |
362,000 |
362,000 |
39,820 |
0 |
39,820 |
||
|
2022 |
02/22/2022 |
291,500 |
253,081 |
27,837 |
1,000 |
26,837 |
||
| Property Building Permit History | ||||||
|---|---|---|---|---|---|---|
| Issued | Permit # | Provided by | Bldg # | Description | Est Construction Cost | Status |
|
6/8/1998 |
10225059 |
OKLAHOMA CITY |
1 |
Main Dwellin |
114,900 |
Inactive |
| Click button on building number to access detailed information: | ||||||
|---|---|---|---|---|---|---|
| Bldg # | Vacant/Improved Land | Bldg Description | Year Built | SqFt | # Stories | |
|
1 |
Improved |
2 Story |
1998 |
3,183 |
2 Stories |
|