|
|
|
| Larry Stein Oklahoma County Assessor (405) 713-1200 - Public Access System |
|
|
|
|
|
|
| Real Property Display - Screen Produced 4/1/2026 10:08:36 AM | ||||
|---|---|---|---|---|
| Account: R200751280 | Type: Residential | Location: |
17101 BRIDLE RIDGE CIR |
|
| Building Name/Occupant: |
|
OKLAHOMA CITY |
||
| Owner Name 1: | THAO INVESTMENT PROPERTIES LLC |
Parcel PIN#: |
4727-20-075-1280 |
|
| Owner Name 2: | 1/4 section #: |
4727 |
||
| Owner Name 3: | Parent Acct: |
|
||
| Billing Address: | 6009 NW 155TH ST | Tax District: |
|
|
| City, State, Zip | EDMOND, OK 73013 | School System: |
Edmond #12 |
|
|
Country: (If noted) |
Land Size: |
0.2238 Acres |
||
|
Land Value: 46,800 |
|
|||
|
Sect 32-T14N-R3W Qtr SW |
FENWICK SEC 3
Block
007
Lot
029
|
|||
| Full Legal Description: FENWICK SEC 3 007 029 |
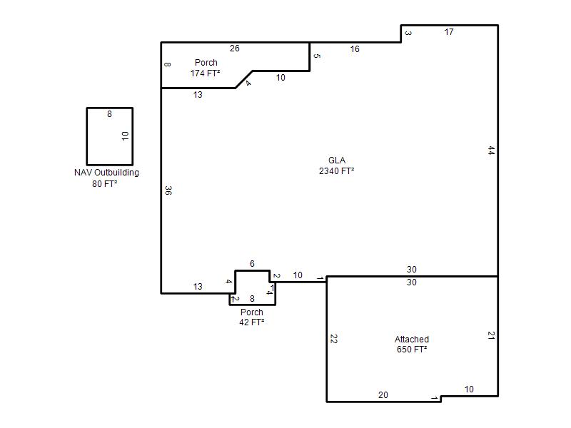
| Photo & Sketch (if available) | Comp Sales (ordered by relevancy) |
|
||||||||||||||||||
|
||||||||||||||||||||
| Value History (*The County Treasurer 405-713-1300 posts & collects actual tax amounts. Contact information HERE) | |||||||||||||
|---|---|---|---|---|---|---|---|---|---|---|---|---|---|
| Year | Market Value | Taxable Mkt Value | Gross Assessed | Exemption | Net Assessed | Millage | Est. Tax | Tax Savings | |||||
|
2026 |
348,500 |
348,500 |
38,335 |
0 |
38,335 |
120.32 |
$4,612 |
$0 |
|||||
|
2025 |
350,000 |
350,000 |
38,500 |
0 |
38,500 |
120.32 |
$4,632 |
$0 |
|||||
|
2024 |
344,500 |
344,500 |
37,895 |
0 |
37,895 |
119.96 |
$4,546 |
$0 |
|||||
|
2023 |
333,500 |
267,877 |
29,466 |
1,000 |
28,466 |
119.02 |
$3,388 |
$978 |
|||||
|
2022 |
285,500 |
260,075 |
28,608 |
1,000 |
27,608 |
120.10 |
$3,316 |
$456 |
|||||
| Property Account Status/Adjustments/Exemptions | ||
|---|---|---|
| Account # | Exemption Description | Amount |
|
R200751280 |
5% Capped Account |
0 |
| Property Deed Transaction History (Recorded in the County Clerk's Office) | ||||||||||
|---|---|---|---|---|---|---|---|---|---|---|
| Date | Type | Book | Page | Price | Grantor | Grantee | ||||
|
5/10/2023 |
|
Deeds |
$325,000 |
MARTIN BILLY JUNIOR & MARLYS JEAN TRS |
THAO INVESTMENT PROPERTIES LLC |
|||||
|
11/19/2007 |
|
Deeds |
$215,000 |
OCONNOR SHAUN M & STACY L |
MARTIN BILL J MARTIN MARLYS J |
|||||
|
11/19/2007 |
|
Deeds |
$0 |
MARTIN BILL J MARTIN MARLYS J |
MARTIN BILLY JUNIOR & MARLYS JEAN TRS |
|||||
|
9/8/1999 |
|
Deeds |
$162,500 |
PAUL MATTHEWS CONSTRUCTION INC |
OCONNOR SHAUN M & STACY L |
|||||
|
3/16/1999 |
|
Historical |
$22,000 |
FENWICK LLC |
PAUL MATTHEWS CONSTRUCTION INC |
|||||
| Last Mailed Notice of Value (N.O.V.) Information/History | ||||||||
|---|---|---|---|---|---|---|---|---|
| Year | Date | Market Value | Taxable Market Value | Gross Assessed | Exemption | Net Assessed | ||
|
2025 |
01/31/2025 |
350,000 |
350,000 |
38,500 |
0 |
38,500 |
||
|
2024 |
01/22/2024 |
344,500 |
344,500 |
37,895 |
0 |
37,895 |
||
|
2023 |
01/23/2023 |
333,500 |
267,877 |
29,466 |
1,000 |
28,466 |
||
|
2022 |
02/22/2022 |
285,500 |
260,075 |
28,608 |
1,000 |
27,608 |
||
|
2021 |
02/24/2021 |
252,500 |
252,500 |
27,775 |
1,000 |
26,775 |
||
| Property Building Permit History | ||||||
|---|---|---|---|---|---|---|
| Issued | Permit # | Provided by | Bldg # | Description | Est Construction Cost | Status |
|
4/7/1999 |
10267697 |
OKLAHOMA CITY |
1 |
Main Dwellin |
160,000 |
Inactive |
| Click button on building number to access detailed information: | ||||||
|---|---|---|---|---|---|---|
| Bldg # | Vacant/Improved Land | Bldg Description | Year Built | SqFt | # Stories | |
|
1 |
Improved |
Ranch 1 Story |
1999 |
2,340 |
1 Stories |
|