|
|
|
| Larry Stein Oklahoma County Assessor (405) 713-1200 - Public Access System |
|
|
|
|
|
|
| Real Property Display - Screen Produced 3/22/2026 5:50:33 AM | ||||
|---|---|---|---|---|
| Account: R201971060 | Type: Residential | Location: |
2016 NW 172ND ST |
|
| Building Name/Occupant: |
|
OKLAHOMA CITY |
||
| Owner Name 1: | DFY MICRO OWNERSHIP COMPANY 1 LLC |
Parcel PIN#: |
4728-20-197-1060 |
|
| Owner Name 2: | 1/4 section #: |
4728 |
||
| Owner Name 3: | Parent Acct: |
4728-18-423-4050 |
||
| Billing Address: | 590 E TIMPANOGOS CIR | Tax District: |
|
|
| City, State, Zip | OREM, UT 84097-6225 | School System: |
Edmond #12 |
|
|
Country: (If noted) |
Land Size: |
0.1625 Acres |
||
|
Land Value: 30,019 |
|
|||
|
Sect 32-T14N-R3W Qtr NW |
COPPER CREEK 4TH
Block
023
Lot
007
|
|||
| Full Legal Description: COPPER CREEK 4TH 023 007 |
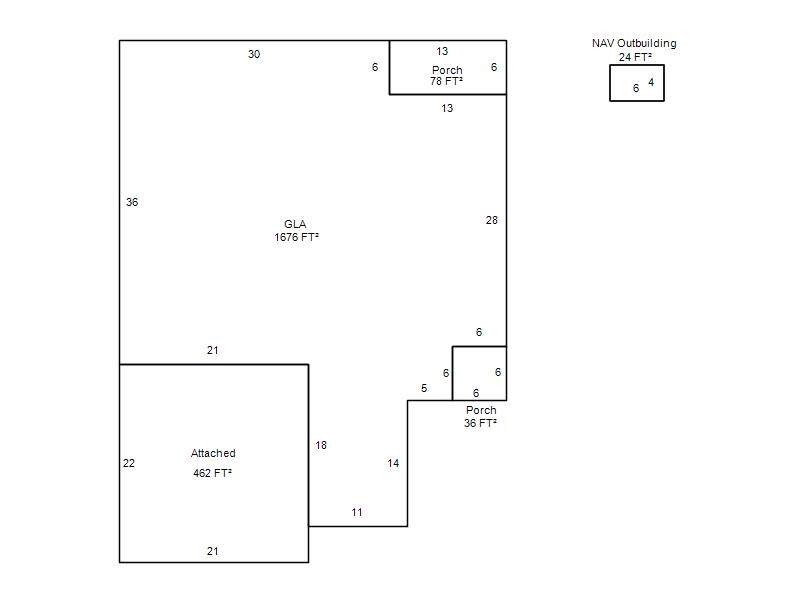
| Photo & Sketch (if available) | Comp Sales (ordered by relevancy) |
|
||||||||||||||||||
|
||||||||||||||||||||
| Value History (*The County Treasurer 405-713-1300 posts & collects actual tax amounts. Contact information HERE) | |||||||||||||
|---|---|---|---|---|---|---|---|---|---|---|---|---|---|
| Year | Market Value | Taxable Mkt Value | Gross Assessed | Exemption | Net Assessed | Millage | Est. Tax | Tax Savings | |||||
|
2025 |
264,000 |
175,959 |
19,354 |
0 |
19,354 |
120.32 |
$2,329 |
$1,165 |
|||||
|
2024 |
257,500 |
167,580 |
18,433 |
0 |
18,433 |
119.96 |
$2,211 |
$1,187 |
|||||
|
2023 |
245,000 |
159,600 |
17,556 |
0 |
17,556 |
119.02 |
$2,090 |
$1,118 |
|||||
|
2022 |
152,000 |
152,000 |
16,720 |
0 |
16,720 |
120.10 |
$2,008 |
$0 |
|||||
|
2021 |
152,000 |
152,000 |
16,720 |
0 |
16,720 |
118.88 |
$1,988 |
$0 |
|||||
| Property Account Status/Adjustments/Exemptions | ||||||
|---|---|---|---|---|---|---|
| Account # | Exemption Description | Amount | ||||
| No adjustment/exemption records returned. | ||||||
| Property Deed Transaction History (Recorded in the County Clerk's Office) | ||||||||||
|---|---|---|---|---|---|---|---|---|---|---|
| Date | Type | Book | Page | Price | Grantor | Grantee | ||||
|
9/4/2025 |
|
Deeds |
$279,000 |
RODRIGUEZ PEDRO HERNANDEZ |
DFY MICRO OWNERSHIP COMPANY 1 LLC |
|||||
|
4/16/2025 |
|
Hmstd Off & |
$0 |
BENNETT ROBERT R & JEANNINE M |
BENNETT JEANNINE M |
|||||
|
4/16/2025 |
|
Deeds |
$182,500 |
BENNETT JEANNINE M |
RODRIGUEZ PEDRO HERNANDEZ |
|||||
|
8/21/2019 |
|
Deeds |
$150,000 |
BUXTON BRADLEY C |
BENNETT ROBERT R & JEANNINE M |
|||||
|
2/14/2003 |
|
Deeds |
$127,000 |
HEARTLAND HOMES LLC |
BUXTON BRADLEY C |
|||||
| Last Mailed Notice of Value (N.O.V.) Information/History | ||||||||
|---|---|---|---|---|---|---|---|---|
| Year | Date | Market Value | Taxable Market Value | Gross Assessed | Exemption | Net Assessed | ||
|
2026 |
02/06/2026 |
272,500 |
272,500 |
29,975 |
0 |
29,975 |
||
|
2025 |
01/31/2025 |
264,000 |
175,959 |
19,354 |
0 |
19,354 |
||
|
2024 |
01/22/2024 |
257,500 |
167,580 |
18,433 |
0 |
18,433 |
||
|
2023 |
01/23/2023 |
245,000 |
159,600 |
17,556 |
0 |
17,556 |
||
|
2019 |
02/26/2019 |
171,500 |
171,500 |
18,865 |
0 |
18,865 |
||
| Property Building Permit History | ||||||
|---|---|---|---|---|---|---|
| Issued | Permit # | Provided by | Bldg # | Description | Est Construction Cost | Status |
|
10/11/2002 |
10272629 |
OKLAHOMA CITY |
1 |
Under Constr |
2,003 |
Inactive |
|
9/13/2002 |
10272630 |
OKLAHOMA CITY |
1 |
Main Dwellin |
125,200 |
Inactive |
| Click button on building number to access detailed information: | ||||||
|---|---|---|---|---|---|---|
| Bldg # | Vacant/Improved Land | Bldg Description | Year Built | SqFt | # Stories | |
|
1 |
Improved |
Ranch 1 Story |
2003 |
1,676 |
1 Stories |
|