|
|
|
| Larry Stein Oklahoma County Assessor (405) 713-1200 - Public Access System |
|
|
|
|
|
|
| Real Property Display - Screen Produced 3/21/2026 1:07:24 AM | ||||
|---|---|---|---|---|
| Account: R120891550 | Type: Residential | Location: |
2904 PINTO TRL |
|
| Building Name/Occupant: |
|
EDMOND |
||
| Owner Name 1: | BREWER RICK & KRISTINE |
Parcel PIN#: |
4729-12-089-1550 |
|
| Owner Name 2: | 1/4 section #: |
4729 |
||
| Owner Name 3: | Parent Acct: |
|
||
| Billing Address: | 2904 PINTO TRL | Tax District: |
|
|
| City, State, Zip | EDMOND, OK 73012-6667 | School System: |
Edmond #12 |
|
|
Country: (If noted) |
Land Size: |
0.1641 Acres |
||
|
Land Value: 33,963 |
|
|||
|
Sect 33-T14N-R3W Qtr NE |
THE TRAILS SOUTH 7TH
Block
004
Lot
014
|
|||
| Full Legal Description: THE TRAILS SOUTH 7TH 004 014 |
| Photo & Sketch (if available) | Comp Sales (ordered by relevancy) |
|
||||||||||||||||||
|
||||||||||||||||||||
| Value History (*The County Treasurer 405-713-1300 posts & collects actual tax amounts. Contact information HERE) | |||||||||||||
|---|---|---|---|---|---|---|---|---|---|---|---|---|---|
| Year | Market Value | Taxable Mkt Value | Gross Assessed | Exemption | Net Assessed | Millage | Est. Tax | Tax Savings | |||||
|
2025 |
222,000 |
188,249 |
20,707 |
0 |
20,707 |
105.16 |
$2,178 |
$390 |
|||||
|
2024 |
216,000 |
179,285 |
19,721 |
0 |
19,721 |
105.03 |
$2,071 |
$424 |
|||||
|
2023 |
206,000 |
170,748 |
18,781 |
0 |
18,781 |
104.24 |
$1,958 |
$404 |
|||||
|
2022 |
181,500 |
162,618 |
17,887 |
0 |
17,887 |
104.64 |
$1,872 |
$217 |
|||||
|
2021 |
159,500 |
154,875 |
17,036 |
0 |
17,036 |
104.15 |
$1,774 |
$53 |
|||||
| Property Account Status/Adjustments/Exemptions | ||
|---|---|---|
| Account # | Exemption Description | Amount |
|
R120891550 |
100% DAV Exemption |
100 |
|
R120891550 |
DAV Homestead |
0 |
| Property Deed Transaction History (Recorded in the County Clerk's Office) | ||||||||||
|---|---|---|---|---|---|---|---|---|---|---|
| Date | Type | Book | Page | Price | Grantor | Grantee | ||||
|
5/1/2025 |
|
Deeds |
$215,000 |
BE AE HOMES LLC |
BREWER RICK & KRISTINE |
|||||
|
2/21/2025 |
|
Deeds |
$167,500 |
PETE REESER PROPERTIES INC |
BE AE HOMES LLC |
|||||
|
7/27/2011 |
|
Deeds |
$124,000 |
MAVROSAKIS CARIN M MAVROSAKIS PETER E |
PETE REESER PROPERTIES INC |
|||||
|
1/22/2011 |
|
Hmstd Off & |
$0 |
CHRISTENSEN MARIA DEL SOCORRO TRS CHRISTENSEN FAMILY 1998 TR |
MAVROSAKIS CARIN M MAVROSAKIS PETER E |
|||||
|
2/1/2010 |
|
Deeds |
$0 |
CHRISTENSEN CONRAD V TRS CHRISTENSEN MARIA DEL SOCORRO TRS |
CHRISTENSEN MARIA DEL SOCORRO TRS CHRISTENSEN FAMILY 1998 TR |
|||||
| Last Mailed Notice of Value (N.O.V.) Information/History | ||||||||
|---|---|---|---|---|---|---|---|---|
| Year | Date | Market Value | Taxable Market Value | Gross Assessed | Exemption | Net Assessed | ||
|
2026 |
02/06/2026 |
225,500 |
225,500 |
24,805 |
24,805 |
0 |
||
|
2025 |
01/31/2025 |
222,000 |
188,249 |
20,707 |
0 |
20,707 |
||
|
2025 |
03/28/2025 |
222,000 |
188,249 |
20,707 |
0 |
20,707 |
||
|
2024 |
01/22/2024 |
216,000 |
179,285 |
19,721 |
0 |
19,721 |
||
|
2023 |
01/23/2023 |
206,000 |
170,748 |
18,781 |
0 |
18,781 |
||
| Property Building Permit History | |||||||||||
|---|---|---|---|---|---|---|---|---|---|---|---|
| Issued | Permit # | Provided by | Bldg # | Description | Est Construction Cost | Status | |||||
| No Building Permit records returned. | |||||||||||
| Click button on building number to access detailed information: | ||||||
|---|---|---|---|---|---|---|
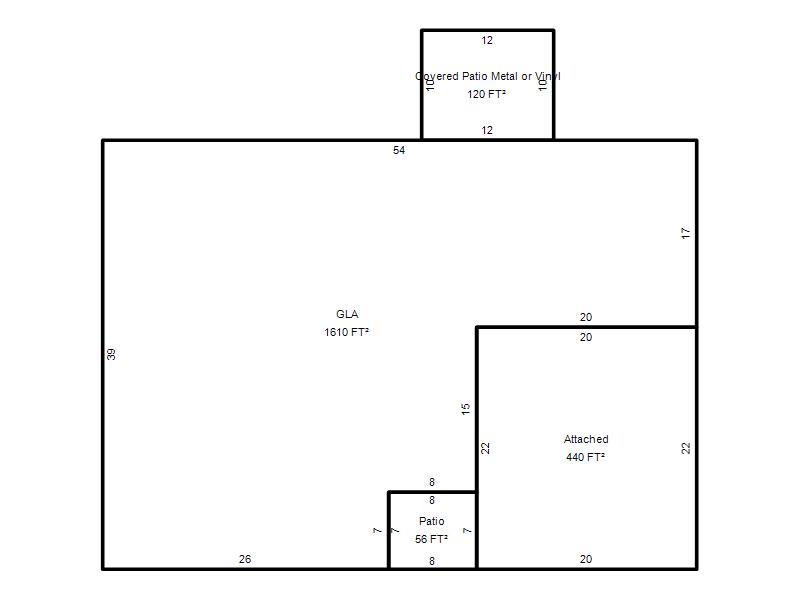
| Bldg # | Vacant/Improved Land | Bldg Description | Year Built | SqFt | # Stories | |
|
1 |
Improved |
Ranch 1 Story |
1983 |
1,610 |
1 Stories |
|