|
|
|
| Larry Stein Oklahoma County Assessor (405) 713-1200 - Public Access System |
|
|
|
|
|
|
| Real Property Display - Screen Produced 3/31/2026 10:51:49 PM | ||||
|---|---|---|---|---|
| Account: R120801370 | Type: Residential | Location: |
2704 MORRISON TRL |
|
| Building Name/Occupant: |
|
EDMOND |
||
| Owner Name 1: | BENNETT AUSTIN CARY |
Parcel PIN#: |
4730-12-080-1370 |
|
| Owner Name 2: | BENNETT JENNA ANN | 1/4 section #: |
4730 |
|
| Owner Name 3: | Parent Acct: |
|
||
| Billing Address: | 2704 MORRISON TRL | Tax District: |
|
|
| City, State, Zip | EDMOND, OK 73012-6418 | School System: |
Edmond #12 |
|
|
Country: (If noted) |
Land Size: |
0.2178 Acres |
||
|
Land Value: 37,000 |
|
|||
|
Sect 33-T14N-R3W Qtr SE |
THE TRAILS SOUTH 5TH
Block
003
Lot
017
|
|||
| Full Legal Description: THE TRAILS SOUTH 5TH 003 017 |
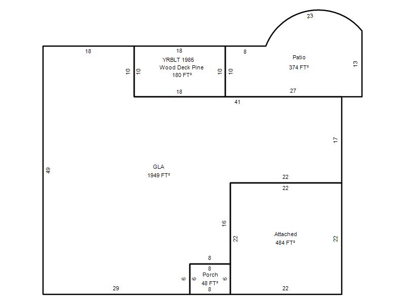
| Photo & Sketch (if available) | Comp Sales (ordered by relevancy) |
|
||||||||||||||||||
|
||||||||||||||||||||
| Value History (*The County Treasurer 405-713-1300 posts & collects actual tax amounts. Contact information HERE) | |||||||||||||
|---|---|---|---|---|---|---|---|---|---|---|---|---|---|
| Year | Market Value | Taxable Mkt Value | Gross Assessed | Exemption | Net Assessed | Millage | Est. Tax | Tax Savings | |||||
|
2026 |
256,000 |
256,000 |
28,160 |
0 |
28,160 |
105.16 |
$2,961 |
$0 |
|||||
|
2025 |
252,000 |
252,000 |
27,720 |
0 |
27,720 |
105.16 |
$2,915 |
$0 |
|||||
|
2024 |
250,500 |
207,850 |
22,862 |
0 |
22,862 |
105.03 |
$2,401 |
$493 |
|||||
|
2023 |
238,500 |
197,953 |
21,773 |
0 |
21,773 |
104.24 |
$2,270 |
$465 |
|||||
|
2022 |
210,000 |
188,527 |
20,737 |
0 |
20,737 |
104.64 |
$2,170 |
$247 |
|||||
| Property Account Status/Adjustments/Exemptions | ||
|---|---|---|
| Account # | Exemption Description | Amount |
|
R120801370 |
5% Capped Account |
0 |
| Property Deed Transaction History (Recorded in the County Clerk's Office) | |||||||
|---|---|---|---|---|---|---|---|
| Date | Type | Book | Page | Price | Grantor | Grantee | |
|
5/1/2024 |
|
Deeds |
$294,500 |
KNOPP ALLISON N & RUSS W |
BENNETT AUSTIN CARY |
||
|
10/16/2019 |
|
Deeds |
$170,000 |
GLOVER ALBERT & CORRINE |
KNOPP ALLISON N & RUSS W |
||
|
4/13/2007 |
|
Deeds |
$149,000 |
LEWIS KORI |
GLOVER ALBERT & CORRINE |
||
|
6/16/2003 |
|
Deeds |
$119,000 |
MCKINNEY WILLIAM R & CATHERINE |
LEWIS KORI |
||
|
10/1/1984 |
|
Historical |
$0 |
|
MCKINNEY WILLIAM R & CATHERINE |
||
| Last Mailed Notice of Value (N.O.V.) Information/History | ||||||||
|---|---|---|---|---|---|---|---|---|
| Year | Date | Market Value | Taxable Market Value | Gross Assessed | Exemption | Net Assessed | ||
|
2026 |
02/06/2026 |
256,000 |
256,000 |
28,160 |
0 |
28,160 |
||
|
2025 |
01/31/2025 |
252,000 |
252,000 |
27,720 |
0 |
27,720 |
||
|
2024 |
01/22/2024 |
250,500 |
207,850 |
22,862 |
0 |
22,862 |
||
|
2023 |
01/23/2023 |
238,500 |
197,953 |
21,773 |
0 |
21,773 |
||
|
2022 |
02/22/2022 |
210,000 |
188,527 |
20,737 |
0 |
20,737 |
||
| Property Building Permit History | |||||||||||
|---|---|---|---|---|---|---|---|---|---|---|---|
| Issued | Permit # | Provided by | Bldg # | Description | Est Construction Cost | Status | |||||
| No Building Permit records returned. | |||||||||||
| Click button on building number to access detailed information: | ||||||
|---|---|---|---|---|---|---|
| Bldg # | Vacant/Improved Land | Bldg Description | Year Built | SqFt | # Stories | |
|
1 |
Improved |
Ranch 1 Story |
1983 |
1,949 |
1 Stories |
|