|
|
|
| Larry Stein Oklahoma County Assessor (405) 713-1200 - Public Access System |
|
|
|
|
|
|
| Real Property Display - Screen Produced 3/18/2026 5:29:22 PM | ||||
|---|---|---|---|---|
| Account: R151647035 | Type: Residential | Location: |
4313 EPPERLY DR |
|
| Building Name/Occupant: |
|
DEL CITY |
||
| Owner Name 1: | S&G PARTNERS LLC |
Parcel PIN#: |
1467-15-164-7035 |
|
| Owner Name 2: | 1/4 section #: |
1467 |
||
| Owner Name 3: | Parent Acct: |
|
||
| Billing Address: | 28 SOUTH ST | Tax District: |
|
|
| City, State, Zip | ANNAPOLIS, MD 21401-2635 | School System: |
Mid-Del #52 |
|
|
Country: (If noted) |
Land Size: |
0.1928 Acres |
||
|
Land Value: 18,480 |
|
|||
|
Sect 17-T11N-R2W Qtr SW |
DEL MAR HILLS
Block
005
Lot
005
|
|||
| Full Legal Description: DEL MAR HILLS 005 005 |
| Photo & Sketch (if available) | Comp Sales (ordered by relevancy) |
|
||||||||||||||||||
|
||||||||||||||||||||
| Value History (*The County Treasurer 405-713-1300 posts & collects actual tax amounts. Contact information HERE) | |||||||||||||
|---|---|---|---|---|---|---|---|---|---|---|---|---|---|
| Year | Market Value | Taxable Mkt Value | Gross Assessed | Exemption | Net Assessed | Millage | Est. Tax | Tax Savings | |||||
|
2025 |
134,000 |
112,350 |
12,358 |
0 |
12,358 |
114.72 |
$1,418 |
$273 |
|||||
|
2024 |
107,000 |
107,000 |
11,770 |
0 |
11,770 |
117.21 |
$1,380 |
$0 |
|||||
|
2023 |
112,000 |
80,843 |
8,892 |
0 |
8,892 |
112.46 |
$1,000 |
$385 |
|||||
|
2022 |
99,500 |
76,994 |
8,469 |
0 |
8,469 |
110.76 |
$938 |
$274 |
|||||
|
2021 |
85,500 |
73,328 |
8,066 |
0 |
8,066 |
114.70 |
$925 |
$154 |
|||||
| Property Account Status/Adjustments/Exemptions | ||
|---|---|---|
| Account # | Exemption Description | Amount |
|
R151647035 |
5% Capped Account |
0 |
| Property Deed Transaction History (Recorded in the County Clerk's Office) | |||||||
|---|---|---|---|---|---|---|---|
| Date | Type | Book | Page | Price | Grantor | Grantee | |
|
10/7/2024 |
|
Hmstd Off & |
$0 |
STONACEK AARON K |
S&G PARTNERS LLC |
||
|
12/5/2023 |
|
Deeds |
$107,000 |
HYDE TWILA DAWN |
STONACEK AARON K |
||
|
8/27/2019 |
|
Hmstd Off & |
$0 |
CONTRERAS EVERT |
HYDE TWILA DAWN |
||
|
12/1/2004 |
|
Deeds |
$0 |
CONTRERAS EVERT & ANNA D |
CONTRERAS EVERT |
||
|
11/11/1911 |
|
Historical |
$0 |
|
CONTRERAS EVERT & ANNA D |
||
| Last Mailed Notice of Value (N.O.V.) Information/History | ||||||||
|---|---|---|---|---|---|---|---|---|
| Year | Date | Market Value | Taxable Market Value | Gross Assessed | Exemption | Net Assessed | ||
|
2026 |
02/06/2026 |
130,500 |
117,967 |
12,975 |
0 |
12,975 |
||
|
2025 |
01/31/2025 |
134,000 |
112,350 |
12,358 |
0 |
12,358 |
||
|
2024 |
01/22/2024 |
126,000 |
126,000 |
13,860 |
0 |
13,860 |
||
|
2023 |
01/23/2023 |
112,000 |
80,843 |
8,892 |
0 |
8,892 |
||
|
2022 |
02/22/2022 |
99,500 |
76,994 |
8,469 |
0 |
8,469 |
||
| Property Building Permit History | |||||||||||
|---|---|---|---|---|---|---|---|---|---|---|---|
| Issued | Permit # | Provided by | Bldg # | Description | Est Construction Cost | Status | |||||
| No Building Permit records returned. | |||||||||||
| Click button on building number to access detailed information: | ||||||
|---|---|---|---|---|---|---|
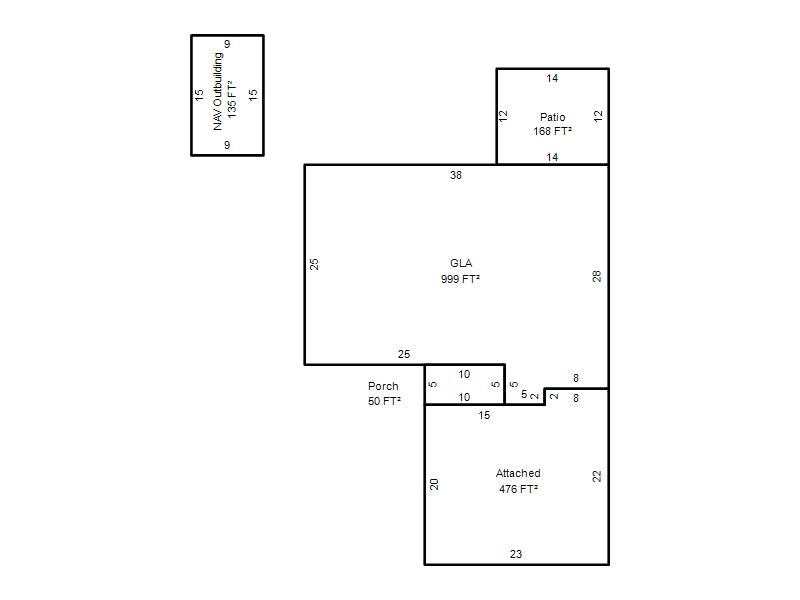
| Bldg # | Vacant/Improved Land | Bldg Description | Year Built | SqFt | # Stories | |
|
1 |
Improved |
Ranch 1 Story |
1965 |
999 |
1 Stories |
|