|
|
|
| Larry Stein Oklahoma County Assessor (405) 713-1200 - Public Access System |
|
|
|
|
|
|
| Real Property Display - Screen Produced 4/2/2026 4:36:35 AM | ||||
|---|---|---|---|---|
| Account: R257103010 | Type: Residential | Location: |
22700 N BRIARWOOD DR |
|
| Building Name/Occupant: |
|
UNINCORPORATED |
||
| Owner Name 1: | LEARD THERESA KIM |
Parcel PIN#: |
4840-25-710-3010 |
|
| Owner Name 2: | HAWKINS LARRY DALE | 1/4 section #: |
4840 |
|
| Owner Name 3: | Parent Acct: |
|
||
| Billing Address: | 22700 N BRIARWOOD DR | Tax District: |
|
|
| City, State, Zip | EDMOND, OK 73025-9422 | School System: |
Deer Creek #6 |
|
|
Country: (If noted) |
Land Size: |
5.4400 Acres |
||
|
Land Value: 76,060 |
|
|||
|
Sect 10-T14N-R4W Qtr NW |
DEER CREEK TOWNSHIP
Block
000
Lot
000
|
|||
| Full Legal Description: DEER CREEK TOWNSHIP 000 000 PT NW4 SEC 10 14N 4W BEG SE/C OF NW4 N425FT W555.79FT S426.33FT E558.33FT TO BEG TR 21 BRIARWOOD VALLEY ESTATES |
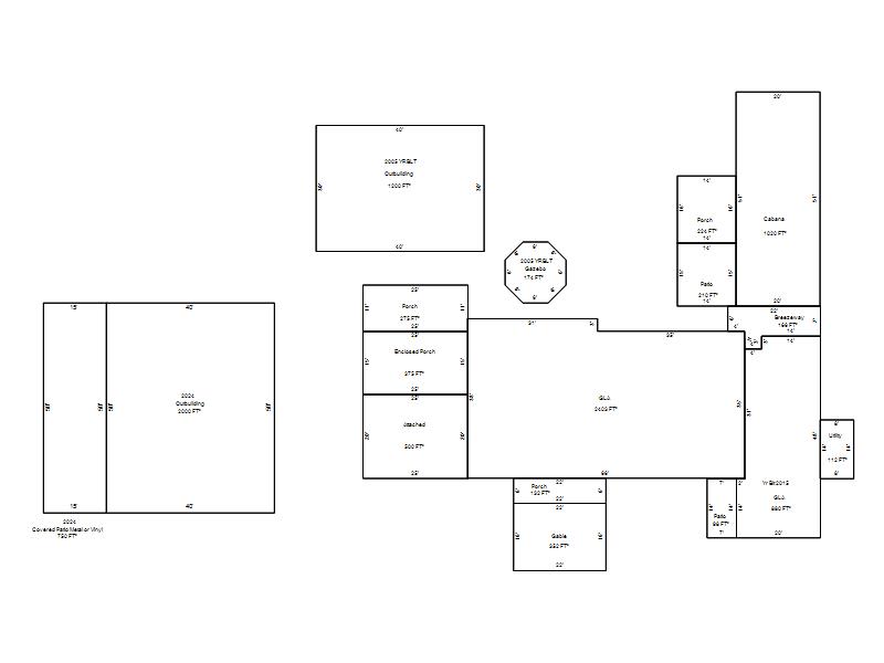
| Photo & Sketch (if available) | Comp Sales (ordered by relevancy) |
|
||||||||||||||||||
|
||||||||||||||||||||
| Value History (*The County Treasurer 405-713-1300 posts & collects actual tax amounts. Contact information HERE) | |||||||||||||
|---|---|---|---|---|---|---|---|---|---|---|---|---|---|
| Year | Market Value | Taxable Mkt Value | Gross Assessed | Exemption | Net Assessed | Millage | Est. Tax | Tax Savings | |||||
|
2026 |
765,000 |
765,000 |
84,150 |
0 |
84,150 |
114.35 |
$9,623 |
$0 |
|||||
|
2025 |
765,000 |
765,000 |
84,150 |
0 |
84,150 |
114.35 |
$9,623 |
$0 |
|||||
|
2024 |
695,500 |
684,101 |
75,250 |
0 |
75,250 |
116.19 |
$8,743 |
$146 |
|||||
|
2023 |
660,500 |
651,525 |
71,667 |
0 |
71,667 |
116.77 |
$8,369 |
$115 |
|||||
|
2022 |
620,500 |
620,500 |
68,255 |
0 |
68,255 |
114.81 |
$7,836 |
$0 |
|||||
| Property Account Status/Adjustments/Exemptions | ||
|---|---|---|
| Account # | Exemption Description | Amount |
|
R257103010 |
5% Capped Account |
0 |
| Property Deed Transaction History (Recorded in the County Clerk's Office) | ||||||||||
|---|---|---|---|---|---|---|---|---|---|---|
| Date | Type | Book | Page | Price | Grantor | Grantee | ||||
|
4/4/2024 |
|
Deeds |
$700,000 |
RAUP ROBERT W II |
LEARD THERESA KIM |
|||||
|
3/3/2021 |
|
Deeds |
$650,000 |
TULLIS JERRY W II & LESLIE KIM TRS |
RAUP ROBERT W II |
|||||
|
9/29/2017 |
|
Deeds |
$0 |
TULLIS JERRY W II & LESLIE K |
TULLIS JERRY W II & LESLIE KIM TRS |
|||||
|
9/2/1997 |
|
Historical |
$133,500 |
NAISMITH SCOTT C & BETTY J |
TULLIS JERRY W II & LESLIE K |
|||||
|
12/3/1991 |
|
Historical |
$0 |
PATTERSON KENNETH T SR |
NAISMITH SCOTT C & BETTY J |
|||||
| Last Mailed Notice of Value (N.O.V.) Information/History | ||||||||
|---|---|---|---|---|---|---|---|---|
| Year | Date | Market Value | Taxable Market Value | Gross Assessed | Exemption | Net Assessed | ||
|
2025 |
03/28/2025 |
765,000 |
765,000 |
84,150 |
0 |
84,150 |
||
|
2024 |
01/22/2024 |
695,500 |
684,101 |
75,250 |
0 |
75,250 |
||
|
2023 |
01/23/2023 |
660,500 |
651,525 |
71,667 |
0 |
71,667 |
||
|
2022 |
02/22/2022 |
620,500 |
620,500 |
68,255 |
0 |
68,255 |
||
|
2021 |
02/24/2021 |
519,500 |
482,862 |
53,114 |
1,000 |
52,114 |
||
| Property Building Permit History | ||||||
|---|---|---|---|---|---|---|
| Issued | Permit # | Provided by | Bldg # | Description | Est Construction Cost | Status |
|
8/14/2024 |
BP-2024-255 |
|
1 |
Storage Buil |
25,000 |
Inactive |
|
2/26/2014 |
10462306 |
COUNTY |
1 |
Add On |
30,000 |
Inactive |
|
8/2/2004 |
10294737 |
COUNTY |
1 |
Main Dwellin |
25,000 |
Inactive |
| Click button on building number to access detailed information: | ||||||
|---|---|---|---|---|---|---|
| Bldg # | Vacant/Improved Land | Bldg Description | Year Built | SqFt | # Stories | |
|
1 |
Improved |
Ranch 1 Story |
1972 |
3,283 |
1 Stories |
|