|
|
|
| Larry Stein Oklahoma County Assessor (405) 713-1200 - Public Access System |
|
|
|
|
|
|
| Real Property Display - Screen Produced 4/25/2026 4:46:55 PM | ||||
|---|---|---|---|---|
| Account: R257154060 | Type: Residential | Location: |
21151 N MERIDIAN AVE |
|
| Building Name/Occupant: |
|
UNINCORPORATED |
||
| Owner Name 1: | DEILY JACOB |
Parcel PIN#: |
4858-25-715-4060 |
|
| Owner Name 2: | 1/4 section #: |
4858 |
||
| Owner Name 3: | Parent Acct: |
|
||
| Billing Address: | 21151 N MERIDIAN AVE | Tax District: |
|
|
| City, State, Zip | EDMOND, OK 73012-9313 | School System: |
Deer Creek #6 |
|
|
Country: (If noted) |
Land Size: |
1.0000 Acres |
||
|
Land Value: 38,000 |
|
|||
|
Sect 15-T14N-R4W Qtr SE |
DEER CREEK TOWNSHIP
Block
000
Lot
000
|
|||
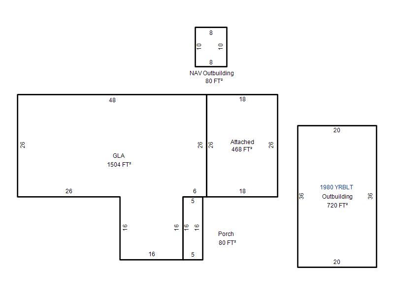
| Full Legal Description: DEER CREEK TOWNSHIP PT SE4 SEC 15 14N 4W BEG 867.9FT S & 33FT W OF NE/C OF SE4 W276FT S157.8FT E276FT N157.8FT TO BEG |
| Value History (*The County Treasurer 405-713-1300 posts & collects actual tax amounts. Contact information HERE) | |||||||||||||
|---|---|---|---|---|---|---|---|---|---|---|---|---|---|
| Year | Market Value | Taxable Mkt Value | Gross Assessed | Exemption | Net Assessed | Millage | Est. Tax | Tax Savings | |||||
|
2026 |
287,000 |
287,000 |
31,570 |
0 |
31,570 |
114.35 |
$3,610 |
$0 |
|||||
|
2025 |
279,000 |
237,629 |
26,138 |
0 |
26,138 |
114.35 |
$2,989 |
$520 |
|||||
|
2024 |
272,500 |
226,314 |
24,894 |
0 |
24,894 |
116.19 |
$2,892 |
$590 |
|||||
| Property Account Status/Adjustments/Exemptions | ||||||
|---|---|---|---|---|---|---|
| Account # | Exemption Description | Amount | ||||
| No adjustment/exemption records returned. | ||||||
| Property Deed Transaction History (Recorded in the County Clerk's Office) | ||||||||||
|---|---|---|---|---|---|---|---|---|---|---|
| Date | Type | Book | Page | Price | Grantor | Grantee | ||||
|
11/21/2025 |
|
Deeds |
$250,000 |
MATHESON STEWART |
DEILY JACOB |
|||||
|
6/10/2020 |
|
Deeds |
$192,000 |
RYAL RUSTY A |
MATHESON STEWART |
|||||
|
10/25/2019 |
|
Deeds |
$179,000 |
PEDEN LES & ANGIE |
RYAL RUSTY A |
|||||
| Last Mailed Notice of Value (N.O.V.) Information/History | ||||||||
|---|---|---|---|---|---|---|---|---|
| Year | Date | Market Value | Taxable Market Value | Gross Assessed | Exemption | Net Assessed | ||
|
2026 |
02/06/2026 |
287,000 |
287,000 |
31,570 |
0 |
31,570 |
||
|
2025 |
01/31/2025 |
279,000 |
237,629 |
26,138 |
0 |
26,138 |
||
|
2024 |
01/22/2024 |
272,500 |
226,314 |
24,894 |
0 |
24,894 |
||
| Property Building Permit History | |||||||||||
|---|---|---|---|---|---|---|---|---|---|---|---|
| Issued | Permit # | Provided by | Bldg # | Description | Est Construction Cost | Status | |||||
| No Building Permit records returned. | |||||||||||
| Click button below to access detailed information and additional property photos: | ||||||
|---|---|---|---|---|---|---|
| Bldg # | Vacant/Improved Land | Bldg Description | Year Built | SqFt | # Stories | |
|
1 |
Improved |
Ranch 1 Story |
1980 |
1,504 |
1 Stories |
|