|
|
|
| Larry Stein Oklahoma County Assessor (405) 713-1200 - Public Access System |
|
|
|
|
|
|
| Real Property Display - Screen Produced 3/27/2026 8:59:02 AM | ||||
|---|---|---|---|---|
| Account: R208141360 | Type: Residential | Location: |
19129 COTTONWOOD CT |
|
| Building Name/Occupant: |
|
OKLAHOMA CITY |
||
| Owner Name 1: | PUCKETT SHERRY LYNN |
Parcel PIN#: |
4897-20-814-1360 |
|
| Owner Name 2: | 1/4 section #: |
4897 |
||
| Owner Name 3: | Parent Acct: |
4897-16-857-4100 |
||
| Billing Address: | 19129 COTTONWOOD CT | Tax District: |
|
|
| City, State, Zip | EDMOND, OK 73012-9771 | School System: |
Deer Creek #6 |
|
|
Country: (If noted) |
Land Size: |
0.3040 Acres |
||
|
Land Value: 51,200 |
|
|||
|
Sect 25-T14N-R4W Qtr NE |
THE GROVE PH I
Block
001
Lot
037
|
|||
| Full Legal Description: THE GROVE PH I 001 037 |
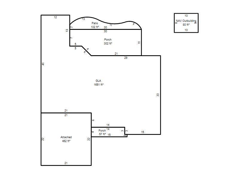
| Photo & Sketch (if available) | Comp Sales (ordered by relevancy) |
|
||||||||||||||||||
|
||||||||||||||||||||
| Value History (*The County Treasurer 405-713-1300 posts & collects actual tax amounts. Contact information HERE) | |||||||||||||
|---|---|---|---|---|---|---|---|---|---|---|---|---|---|
| Year | Market Value | Taxable Mkt Value | Gross Assessed | Exemption | Net Assessed | Millage | Est. Tax | Tax Savings | |||||
|
2026 |
310,000 |
310,000 |
34,100 |
1,000 |
33,100 |
129.51 |
$4,287 |
$130 |
|||||
|
2025 |
312,000 |
276,525 |
30,417 |
0 |
30,417 |
129.51 |
$3,939 |
$505 |
|||||
|
2024 |
306,500 |
263,358 |
28,968 |
0 |
28,968 |
131.12 |
$3,798 |
$622 |
|||||
|
2023 |
296,500 |
250,818 |
27,589 |
0 |
27,589 |
131.55 |
$3,629 |
$661 |
|||||
|
2022 |
257,000 |
238,875 |
26,276 |
0 |
26,276 |
130.27 |
$3,423 |
$260 |
|||||
| Property Account Status/Adjustments/Exemptions | ||
|---|---|---|
| Account # | Exemption Description | Amount |
|
R208141360 |
Homestead |
1,000 |
| Property Deed Transaction History (Recorded in the County Clerk's Office) | |||||||
|---|---|---|---|---|---|---|---|
| Date | Type | Book | Page | Price | Grantor | Grantee | |
|
8/28/2025 |
|
Deeds |
$295,000 |
ARBIOL GERALDO SERGIO |
PUCKETT SHERRY LYNN |
||
|
8/31/2018 |
|
Deeds |
$217,000 |
BAKER JONATHAN D & SARAH A |
ARBIOL GERALDO SERGIO |
||
|
11/6/2014 |
|
Deeds |
$195,000 |
DOLL JASON C GILBERT JILIAN N |
BAKER JONATHAN D & SARAH A |
||
|
4/15/2010 |
|
Deeds |
$180,500 |
BRASS BRICK HOMES III LLC |
DOLL JASON C GILBERT JILIAN N |
||
|
12/23/2009 |
|
Deeds |
$31,000 |
CALIBER DEVELOPMENT COMPANY LLC |
BRASS BRICK HOMES III LLC |
||
| Last Mailed Notice of Value (N.O.V.) Information/History | ||||||||
|---|---|---|---|---|---|---|---|---|
| Year | Date | Market Value | Taxable Market Value | Gross Assessed | Exemption | Net Assessed | ||
|
2026 |
02/06/2026 |
310,000 |
310,000 |
34,100 |
1,000 |
33,100 |
||
|
2025 |
01/31/2025 |
312,000 |
276,525 |
30,417 |
0 |
30,417 |
||
|
2024 |
01/22/2024 |
306,500 |
263,358 |
28,968 |
0 |
28,968 |
||
|
2023 |
01/23/2023 |
296,500 |
250,818 |
27,589 |
0 |
27,589 |
||
|
2022 |
02/22/2022 |
257,000 |
238,875 |
26,276 |
0 |
26,276 |
||
| Property Building Permit History | ||||||
|---|---|---|---|---|---|---|
| Issued | Permit # | Provided by | Bldg # | Description | Est Construction Cost | Status |
|
12/31/2009 |
10393370 |
OKLAHOMA CITY |
1 |
Main Dwellin |
180,000 |
Inactive |
| Click button on building number to access detailed information: | ||||||
|---|---|---|---|---|---|---|
| Bldg # | Vacant/Improved Land | Bldg Description | Year Built | SqFt | # Stories | |
|
1 |
Improved |
Ranch 1 Story |
2010 |
1,651 |
1 Stories |
|