|
|
|
| Larry Stein Oklahoma County Assessor (405) 713-1200 - Public Access System |
|
|
|
|
|
|
| Real Property Display - Screen Produced 3/12/2026 2:44:17 AM | ||||
|---|---|---|---|---|
| Account: R267031145 | Type: Residential | Location: |
775 S DOBBS RD |
|
| Building Name/Occupant: |
|
UNINCORPORATED |
||
| Owner Name 1: | GROVES PATRICIA D |
Parcel PIN#: |
1009-26-703-1145 |
|
| Owner Name 2: | 1/4 section #: |
1009 |
||
| Owner Name 3: | Parent Acct: |
1009-26-703-1135 |
||
| Billing Address: | 775 S DOBBS RD | Tax District: |
|
|
| City, State, Zip | HARRAH, OK 73045-6462 | School System: |
Harrah #7 |
|
|
Country: (If noted) |
Land Size: |
4.0000 Acres |
||
|
Land Value: 63,540 |
|
|||
|
Sect 3-T11N-R1E Qtr NE |
POTTAWATOMIE TOWNSHIP
Block
000
Lot
000
|
|||
| Full Legal Description: POTTAWATOMIE TOWNSHIP PT NE4 SEC 3 11N 1E BEG 795.19FT W OF SE/C NE4 TH W265.04FT N328.70FT E265.04FT S328.70FT TO BEG PLUS A TR BEG 530.15FT W OF SE/C NE4 TH W265.04FT N328.70FT E265.04FT S328.70FT TO BEG SUBJ TO ESMTS OF RECORD |
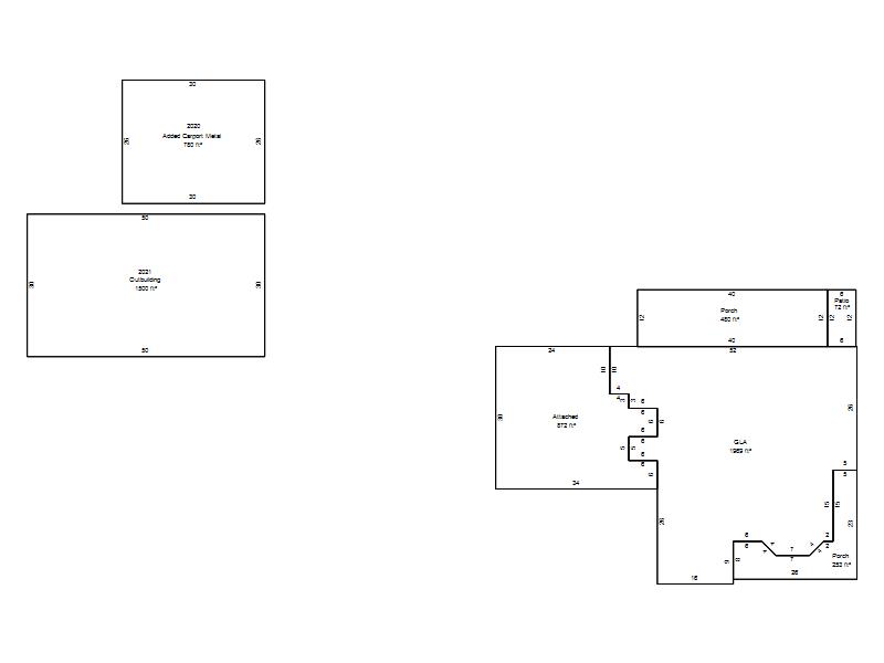
| Photo & Sketch (if available) | Comp Sales (ordered by relevancy) |
|
||||||||||||||||||
|
||||||||||||||||||||
| Value History (*The County Treasurer 405-713-1300 posts & collects actual tax amounts. Contact information HERE) | |||||||||||||
|---|---|---|---|---|---|---|---|---|---|---|---|---|---|
| Year | Market Value | Taxable Mkt Value | Gross Assessed | Exemption | Net Assessed | Millage | Est. Tax | Tax Savings | |||||
|
2025 |
480,000 |
382,984 |
42,128 |
1,000 |
41,128 |
107.54 |
$4,423 |
$1,255 |
|||||
|
2024 |
485,000 |
371,830 |
40,901 |
1,000 |
39,901 |
110.62 |
$4,414 |
$1,488 |
|||||
|
2023 |
361,000 |
361,000 |
39,710 |
1,000 |
38,710 |
97.88 |
$3,789 |
$98 |
|||||
|
2022 |
256,500 |
256,500 |
28,215 |
0 |
28,215 |
99.50 |
$2,807 |
$0 |
|||||
|
2021 |
256,500 |
256,500 |
28,215 |
0 |
28,215 |
99.52 |
$2,808 |
$0 |
|||||
| Property Account Status/Adjustments/Exemptions | ||
|---|---|---|
| Account # | Exemption Description | Amount |
|
R267031145 |
3% Cap Homestead |
0 |
|
R267031145 |
Homestead |
1,000 |
| Property Deed Transaction History (Recorded in the County Clerk's Office) | ||||||||||
|---|---|---|---|---|---|---|---|---|---|---|
| Date | Type | Book | Page | Price | Grantor | Grantee | ||||
|
1/4/2022 |
|
Deeds |
$350,000 |
SMOLKO CHRISTOPHER D & JOLEEN |
GROVES PATRICIA D |
|||||
|
1/3/2020 |
|
Deeds |
$250,000 |
LAZARSKI THOMAS J |
SMOLKO CHRISTOPHER D & JOLEEN |
|||||
|
2/4/2014 |
|
Deeds |
$220,000 |
WARNER SCOTT D & CAROL L |
LAZARSKI THOMAS J |
|||||
|
8/13/2008 |
|
Deeds |
$0 |
WARNER SCOTT & CAROL |
WARNER SCOTT D & CAROL L |
|||||
|
8/7/2008 |
|
Deeds |
$0 |
KNOX E M & BONNIE M |
WARNER SCOTT & CAROL |
|||||
| Last Mailed Notice of Value (N.O.V.) Information/History | ||||||||
|---|---|---|---|---|---|---|---|---|
| Year | Date | Market Value | Taxable Market Value | Gross Assessed | Exemption | Net Assessed | ||
|
2026 |
02/06/2026 |
444,500 |
394,473 |
43,391 |
1,000 |
42,391 |
||
|
2025 |
01/31/2025 |
480,000 |
382,984 |
42,128 |
1,000 |
41,128 |
||
|
2024 |
01/22/2024 |
485,000 |
371,830 |
40,901 |
1,000 |
39,901 |
||
|
2023 |
01/23/2023 |
361,000 |
361,000 |
39,710 |
1,000 |
38,710 |
||
|
2021 |
02/24/2021 |
256,500 |
256,500 |
28,215 |
0 |
28,215 |
||
| Property Building Permit History | ||||||
|---|---|---|---|---|---|---|
| Issued | Permit # | Provided by | Bldg # | Description | Est Construction Cost | Status |
|
3/28/2022 |
BP-2022-88 |
|
1 |
Storage Buil |
45,000 |
Inactive |
|
8/27/2008 |
10358816 |
COUNTY |
|
Main Dwellin |
200,000 |
Inactive |
|
5/27/1997 |
10278465 |
OKLAHOMA CITY |
|
Manufactured |
21,000 |
Inactive |
| Click button on building number to access detailed information: | ||||||
|---|---|---|---|---|---|---|
| Bldg # | Vacant/Improved Land | Bldg Description | Year Built | SqFt | # Stories | |
|
1 |
Improved |
Ranch 1 Story |
2009 |
1,969 |
1 Stories |
|