|
|
|
| Larry Stein Oklahoma County Assessor (405) 713-1200 - Public Access System |
|
|
|
|
|
|
| Real Property Display - Screen Produced 3/20/2026 5:37:37 AM | ||||
|---|---|---|---|---|
| Account: R153281400 | Type: Residential | Location: |
3505 SIMMONS DR |
|
| Building Name/Occupant: |
|
DEL CITY |
||
| Owner Name 1: | LAMKIN TONISHA M |
Parcel PIN#: |
1472-15-328-1400 |
|
| Owner Name 2: | CARBAJAL LUIS | 1/4 section #: |
1472 |
|
| Owner Name 3: | Parent Acct: |
|
||
| Billing Address: | 3505 SIMMONS DR | Tax District: |
|
|
| City, State, Zip | DEL CITY, OK 73115-1869 | School System: |
Mid-Del #52 |
|
|
Country: (If noted) |
Land Size: |
0.4226 Acres |
||
|
Land Value: 24,500 |
|
|||
|
Sect 18-T11N-R2W Qtr NW |
HARTSDEL
Block
002
Lot
014
|
|||
| Full Legal Description: HARTSDEL 002 014 |
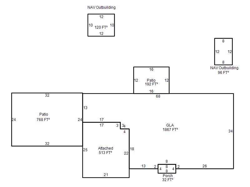
| Photo & Sketch (if available) | Comp Sales (ordered by relevancy) |
|
||||||||||||||||||
|
||||||||||||||||||||
| Value History (*The County Treasurer 405-713-1300 posts & collects actual tax amounts. Contact information HERE) | |||||||||||||
|---|---|---|---|---|---|---|---|---|---|---|---|---|---|
| Year | Market Value | Taxable Mkt Value | Gross Assessed | Exemption | Net Assessed | Millage | Est. Tax | Tax Savings | |||||
|
2025 |
190,500 |
142,942 |
15,722 |
0 |
15,722 |
114.72 |
$1,804 |
$600 |
|||||
|
2024 |
179,500 |
136,136 |
14,974 |
0 |
14,974 |
117.21 |
$1,755 |
$559 |
|||||
|
2023 |
160,500 |
129,654 |
14,261 |
0 |
14,261 |
112.46 |
$1,604 |
$382 |
|||||
|
2022 |
146,000 |
123,480 |
13,582 |
0 |
13,582 |
110.76 |
$1,504 |
$274 |
|||||
|
2021 |
123,000 |
117,600 |
12,936 |
0 |
12,936 |
114.70 |
$1,484 |
$68 |
|||||
| Property Account Status/Adjustments/Exemptions | ||
|---|---|---|
| Account # | Exemption Description | Amount |
|
R153281400 |
Homestead |
1,000 |
| Property Deed Transaction History (Recorded in the County Clerk's Office) | ||||||||||
|---|---|---|---|---|---|---|---|---|---|---|
| Date | Type | Book | Page | Price | Grantor | Grantee | ||||
|
4/22/2025 |
|
Deeds |
$205,000 |
TRAN TUAN HOANG ETAL |
LAMKIN TONISHA M |
|||||
|
5/14/2024 |
|
Deeds |
$0 |
TRAN TUAN HOANG |
TRAN TUAN HOANG ETAL |
|||||
|
4/22/2017 |
|
Deeds |
$0 |
TRAN TUAN HOANG |
TRAN TUAN HOANG |
|||||
|
4/18/2017 |
|
Other |
$0 |
SECRETARY OF HOUSING & URBAN DEV |
TRAN TUAN HOANG |
|||||
|
11/28/2016 |
|
Other |
$0 |
FIRST UNITED BANK AND TRUST COMPANY |
SECRETARY OF HOUSING & URBAN DEV |
|||||
| Last Mailed Notice of Value (N.O.V.) Information/History | ||||||||
|---|---|---|---|---|---|---|---|---|
| Year | Date | Market Value | Taxable Market Value | Gross Assessed | Exemption | Net Assessed | ||
|
2026 |
02/06/2026 |
192,000 |
192,000 |
21,120 |
1,000 |
20,120 |
||
|
2025 |
01/31/2025 |
190,500 |
142,942 |
15,722 |
0 |
15,722 |
||
|
2024 |
01/22/2024 |
179,500 |
136,136 |
14,974 |
0 |
14,974 |
||
|
2023 |
01/23/2023 |
160,500 |
129,654 |
14,261 |
0 |
14,261 |
||
|
2022 |
02/22/2022 |
146,000 |
123,480 |
13,582 |
0 |
13,582 |
||
| Property Building Permit History | |||||||||||
|---|---|---|---|---|---|---|---|---|---|---|---|
| Issued | Permit # | Provided by | Bldg # | Description | Est Construction Cost | Status | |||||
| No Building Permit records returned. | |||||||||||
| Click button on building number to access detailed information: | ||||||
|---|---|---|---|---|---|---|
| Bldg # | Vacant/Improved Land | Bldg Description | Year Built | SqFt | # Stories | |
|
1 |
Improved |
Ranch 1 Story |
1967 |
1,867 |
1 Stories |
|