|
|
|
| Larry Stein Oklahoma County Assessor (405) 713-1200 - Public Access System |
|
|
|
|
|
|
| Real Property Display - Screen Produced 4/2/2026 12:59:12 AM | ||||
|---|---|---|---|---|
| Account: R211001230 | Type: Residential | Location: |
508 SAILBOAT BRIDGE WAY |
|
| Building Name/Occupant: |
|
EDMOND |
||
| Owner Name 1: | LITTLEJOHN LARRY |
Parcel PIN#: |
4648-21-100-1230 |
|
| Owner Name 2: | LITTLEJOHN DEBRA | 1/4 section #: |
4648 |
|
| Owner Name 3: | Parent Acct: |
4645-16-859-0235 |
||
| Billing Address: | 508 SAILBOAT BRIDGE WAY | Tax District: |
|
|
| City, State, Zip | EDMOND, OK 73034 | School System: |
Edmond #12 |
|
|
Country: (If noted) |
Land Size: |
0.5203 Acres |
||
|
Land Value: 115,500 |
|
|||
|
Sect 12-T14N-R3W Qtr NW |
GOLDEN GATE AT TWIN BRIDGES THIRD REPLAT
Block
001
Lot
024
|
|||
| Full Legal Description: GOLDEN GATE AT TWIN BRIDGES THIRD REPLAT 001 024 |
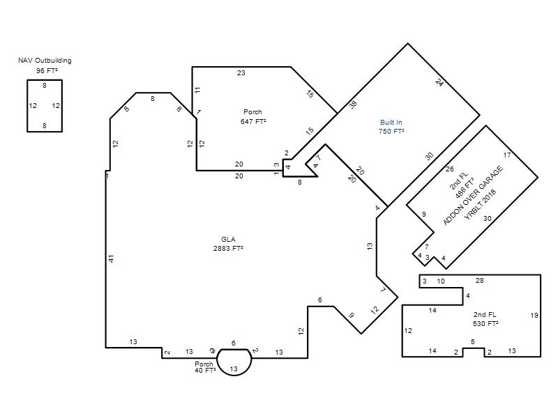
| Photo & Sketch (if available) | Comp Sales (ordered by relevancy) |
|
||||||||||||||||||
|
||||||||||||||||||||
| Value History (*The County Treasurer 405-713-1300 posts & collects actual tax amounts. Contact information HERE) | |||||||||||||
|---|---|---|---|---|---|---|---|---|---|---|---|---|---|
| Year | Market Value | Taxable Mkt Value | Gross Assessed | Exemption | Net Assessed | Millage | Est. Tax | Tax Savings | |||||
|
2026 |
834,500 |
834,500 |
91,795 |
1,000 |
90,795 |
105.16 |
$9,548 |
$105 |
|||||
|
2025 |
858,000 |
839,450 |
92,339 |
1,000 |
91,339 |
105.16 |
$9,605 |
$320 |
|||||
|
2024 |
815,000 |
815,000 |
89,650 |
1,000 |
88,650 |
105.03 |
$9,311 |
$105 |
|||||
|
2023 |
880,000 |
880,000 |
96,800 |
0 |
96,800 |
104.24 |
$10,090 |
$0 |
|||||
|
2022 |
585,500 |
525,815 |
57,839 |
1,000 |
56,839 |
104.64 |
$5,948 |
$792 |
|||||
| Property Account Status/Adjustments/Exemptions | ||
|---|---|---|
| Account # | Exemption Description | Amount |
|
R211001230 |
3% Cap Homestead |
0 |
|
R211001230 |
Homestead |
1,000 |
| Property Deed Transaction History (Recorded in the County Clerk's Office) | |||||||
|---|---|---|---|---|---|---|---|
| Date | Type | Book | Page | Price | Grantor | Grantee | |
|
7/5/2022 |
|
Deeds |
$880,000 |
MITZNER MILES L & RONDA R |
LITTLEJOHN LARRY |
||
|
10/31/2016 |
|
Deeds |
$410,000 |
LORENZ HERITAGE HOMES LLC |
MITZNER MILES L & RONDA R |
||
|
1/29/2014 |
|
Deeds |
$77,000 |
GOLDEN GATE DEVELOPMENT LLC |
LORENZ HERITAGE HOMES LLC |
||
| Last Mailed Notice of Value (N.O.V.) Information/History | ||||||||
|---|---|---|---|---|---|---|---|---|
| Year | Date | Market Value | Taxable Market Value | Gross Assessed | Exemption | Net Assessed | ||
|
2025 |
01/31/2025 |
858,000 |
839,450 |
92,339 |
1,000 |
91,339 |
||
|
2023 |
01/23/2023 |
881,000 |
881,000 |
96,910 |
0 |
96,910 |
||
|
2022 |
02/22/2022 |
585,500 |
525,815 |
57,839 |
1,000 |
56,839 |
||
|
2021 |
02/24/2021 |
510,500 |
510,500 |
56,155 |
1,000 |
55,155 |
||
|
2020 |
02/21/2020 |
513,500 |
495,718 |
54,528 |
1,000 |
53,528 |
||
| Property Building Permit History | ||||||
|---|---|---|---|---|---|---|
| Issued | Permit # | Provided by | Bldg # | Description | Est Construction Cost | Status |
|
1/12/2018 |
|
|
|
Swimming Pool |
30,000 |
Inactive |
|
1/29/2014 |
10458802 |
EDMOND |
1 |
Main Dwellin |
290,000 |
Inactive |
| Click button on building number to access detailed information: | ||||||
|---|---|---|---|---|---|---|
| Bldg # | Vacant/Improved Land | Bldg Description | Year Built | SqFt | # Stories | |
|
1 |
Improved |
1½ Story Fin |
2014 |
3,899 |
1.5 Stories |
|