|
|
|
| Larry Stein Oklahoma County Assessor (405) 713-1200 - Public Access System |
|
|
|
|
|
|
| Real Property Display - Screen Produced 4/7/2026 10:44:01 AM | ||||
|---|---|---|---|---|
| Account: R146842030 | Type: Residential | Location: |
4916 S DIMPLE DR |
|
| Building Name/Occupant: |
|
OKLAHOMA CITY |
||
| Owner Name 1: | MARTINEZ MARTIN PONCE |
Parcel PIN#: |
1473-14-684-2030 |
|
| Owner Name 2: | JARAMILLO ANTONIA GUADALUPE VELASCO | 1/4 section #: |
1473 |
|
| Owner Name 3: | Parent Acct: |
|
||
| Billing Address: | 4916 S DIMPLE DR | Tax District: |
|
|
| City, State, Zip | OKLAHOMA CITY, OK 73135-2128 | School System: |
Mid-Del #52 |
|
|
Country: (If noted) |
Land Size: |
0.1439 Acres |
||
|
Land Value: 14,735 |
|
|||
|
Sect 19-T11N-R2W Qtr NE |
ROBERTS SOUTH HIGHLAND SEC 2
Block
009
Lot
008
|
|||
| Full Legal Description: ROBERTS SOUTH HIGHLAND SEC 2 009 008 |
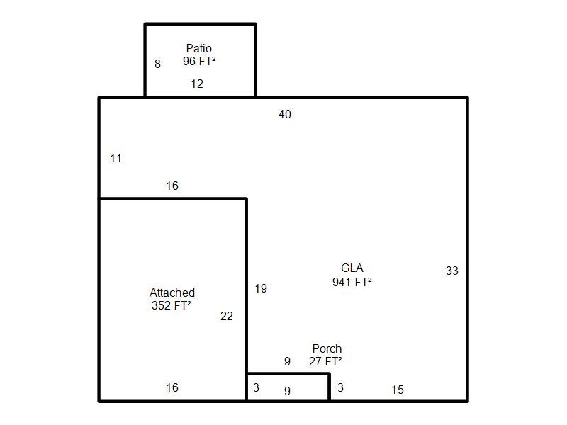
| Photo & Sketch (if available) | Comp Sales (ordered by relevancy) |
|
||||||||||||||||||
|
||||||||||||||||||||
| Value History (*The County Treasurer 405-713-1300 posts & collects actual tax amounts. Contact information HERE) | |||||||||||||
|---|---|---|---|---|---|---|---|---|---|---|---|---|---|
| Year | Market Value | Taxable Mkt Value | Gross Assessed | Exemption | Net Assessed | Millage | Est. Tax | Tax Savings | |||||
|
2026 |
116,000 |
116,000 |
12,760 |
0 |
12,760 |
126.46 |
$1,614 |
$0 |
|||||
|
2025 |
121,500 |
121,500 |
13,365 |
0 |
13,365 |
126.46 |
$1,690 |
$0 |
|||||
|
2024 |
112,500 |
69,890 |
7,687 |
0 |
7,687 |
128.51 |
$988 |
$602 |
|||||
|
2023 |
94,000 |
66,562 |
7,321 |
0 |
7,321 |
122.94 |
$900 |
$371 |
|||||
|
2022 |
81,500 |
63,393 |
6,973 |
0 |
6,973 |
122.11 |
$852 |
$243 |
|||||
| Property Account Status/Adjustments/Exemptions | ||
|---|---|---|
| Account # | Exemption Description | Amount |
|
R146842030 |
5% Capped Account |
0 |
| Property Deed Transaction History (Recorded in the County Clerk's Office) | ||||||||||
|---|---|---|---|---|---|---|---|---|---|---|
| Date | Type | Book | Page | Price | Grantor | Grantee | ||||
|
8/30/2024 |
|
Deeds |
$132,500 |
CLAGG CHRISTY LEE TRS |
MARTINEZ MARTIN PONCE |
|||||
|
8/1/2022 |
|
Hmstd Off & |
$0 |
KEESEE KIRK R PERS REP |
CLAGG CHRISTY LEE TRS |
|||||
|
9/2/2021 |
|
Hmstd Off & |
$0 |
GARNER LARRY P & PHYLLIS J |
KEESEE KIRK R PERS REP |
|||||
|
7/21/1989 |
|
Historical |
$16,400 |
SECRETARY OF HOUSING |
GARNER LARRY P & PHYLLIS J |
|||||
|
11/23/1988 |
|
Historical |
$0 |
CALDWELL GEORGE W & ROSEMARY |
SECRETARY OF HOUSING |
|||||
| Last Mailed Notice of Value (N.O.V.) Information/History | ||||||||
|---|---|---|---|---|---|---|---|---|
| Year | Date | Market Value | Taxable Market Value | Gross Assessed | Exemption | Net Assessed | ||
|
2025 |
01/31/2025 |
121,500 |
121,500 |
13,365 |
0 |
13,365 |
||
|
2024 |
01/22/2024 |
112,500 |
69,890 |
7,687 |
0 |
7,687 |
||
|
2023 |
01/23/2023 |
94,000 |
66,562 |
7,321 |
0 |
7,321 |
||
|
2022 |
02/22/2022 |
81,500 |
63,393 |
6,973 |
0 |
6,973 |
||
|
2021 |
02/24/2021 |
66,500 |
60,375 |
6,641 |
0 |
6,641 |
||
| Property Building Permit History | |||||||||||
|---|---|---|---|---|---|---|---|---|---|---|---|
| Issued | Permit # | Provided by | Bldg # | Description | Est Construction Cost | Status | |||||
| No Building Permit records returned. | |||||||||||
| Click button on building number to access detailed information: | ||||||
|---|---|---|---|---|---|---|
| Bldg # | Vacant/Improved Land | Bldg Description | Year Built | SqFt | # Stories | |
|
1 |
Improved |
Ranch 1 Story |
1969 |
941 |
1 Stories |
|