|
|
|
| Larry Stein Oklahoma County Assessor (405) 713-1200 - Public Access System |
|
|
|
|
|
|
| Real Property Display - Screen Produced 4/2/2026 9:22:54 AM | ||||
|---|---|---|---|---|
| Account: R151792050 | Type: Residential | Location: |
3725 SE 48TH PL |
|
| Building Name/Occupant: |
|
OKLAHOMA CITY |
||
| Owner Name 1: | WILSON RESSA |
Parcel PIN#: |
1473-15-179-2050 |
|
| Owner Name 2: | 1/4 section #: |
1473 |
||
| Owner Name 3: | Parent Acct: |
|
||
| Billing Address: | 3725 SE 48TH PL | Tax District: |
|
|
| City, State, Zip | OKLAHOMA CITY, OK 73135-2052 | School System: |
Mid-Del #52 |
|
|
Country: (If noted) |
Land Size: |
0.1653 Acres |
||
|
Land Value: 16,200 |
|
|||
|
Sect 19-T11N-R2W Qtr NE |
LEONHARDTS OAK WOOD MANOR II
Block
013
Lot
013
|
|||
| Full Legal Description: LEONHARDTS OAK WOOD MANOR II 013 013 |
| Photo & Sketch (if available) | Comp Sales (ordered by relevancy) |
|
||||||||||||||||||
|
||||||||||||||||||||
| Value History (*The County Treasurer 405-713-1300 posts & collects actual tax amounts. Contact information HERE) | |||||||||||||
|---|---|---|---|---|---|---|---|---|---|---|---|---|---|
| Year | Market Value | Taxable Mkt Value | Gross Assessed | Exemption | Net Assessed | Millage | Est. Tax | Tax Savings | |||||
|
2026 |
178,500 |
178,500 |
19,635 |
19,635 |
0 |
126.46 |
$0 |
$2,483 |
|||||
|
2025 |
181,000 |
137,683 |
15,145 |
2,000 |
13,145 |
126.46 |
$1,662 |
$855 |
|||||
|
2024 |
169,500 |
133,673 |
14,703 |
1,000 |
13,703 |
128.51 |
$1,761 |
$635 |
|||||
|
2023 |
149,500 |
129,780 |
14,275 |
2,000 |
12,275 |
122.94 |
$1,509 |
$513 |
|||||
|
2022 |
126,000 |
126,000 |
13,860 |
1,000 |
12,860 |
122.11 |
$1,570 |
$122 |
|||||
| Property Account Status/Adjustments/Exemptions | ||
|---|---|---|
| Account # | Exemption Description | Amount |
|
R151792050 |
100% DAV Exemption |
100 |
|
R151792050 |
DAV Homestead |
0 |
| Property Deed Transaction History (Recorded in the County Clerk's Office) | ||||||||||
|---|---|---|---|---|---|---|---|---|---|---|
| Date | Type | Book | Page | Price | Grantor | Grantee | ||||
|
9/5/2025 |
|
Deeds |
$175,000 |
YOUNG DENNE L |
WILSON RESSA |
|||||
|
3/20/2025 |
|
Hmstd Off & |
$0 |
FRANKLIN DONITA ELAINE |
YOUNG DENNE L |
|||||
|
8/31/2020 |
|
Deeds |
$130,000 |
AKINS TIFFANY DENISE |
FRANKLIN DONITA ELAINE |
|||||
|
2/18/2015 |
|
Deeds |
$0 |
AKINS KACY B AKINS TIFFANY D |
AKINS TIFFANY DENISE |
|||||
|
2/26/1998 |
|
Historical |
$0 |
AKINS KACY B |
AKINS KACY B |
|||||
| Last Mailed Notice of Value (N.O.V.) Information/History | ||||||||
|---|---|---|---|---|---|---|---|---|
| Year | Date | Market Value | Taxable Market Value | Gross Assessed | Exemption | Net Assessed | ||
|
2026 |
02/06/2026 |
178,500 |
178,500 |
19,635 |
0 |
19,635 |
||
|
2025 |
01/31/2025 |
181,000 |
137,683 |
15,145 |
1,000 |
14,145 |
||
|
2024 |
01/22/2024 |
169,500 |
133,673 |
14,703 |
1,000 |
13,703 |
||
|
2023 |
01/23/2023 |
149,500 |
129,780 |
14,275 |
1,000 |
13,275 |
||
|
2021 |
02/24/2021 |
126,000 |
126,000 |
13,860 |
0 |
13,860 |
||
| Property Building Permit History | |||||||||||
|---|---|---|---|---|---|---|---|---|---|---|---|
| Issued | Permit # | Provided by | Bldg # | Description | Est Construction Cost | Status | |||||
| No Building Permit records returned. | |||||||||||
| Click button on building number to access detailed information: | ||||||
|---|---|---|---|---|---|---|
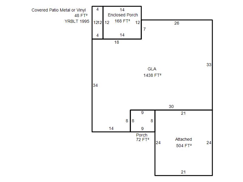
| Bldg # | Vacant/Improved Land | Bldg Description | Year Built | SqFt | # Stories | |
|
1 |
Improved |
Ranch 1 Story |
1983 |
1,438 |
1 Stories |
|