Larry Stein Oklahoma County Assessor (405) 713-1200 - Public Access System
Home Contact Us Guest Book Map Search New Search
Real Property Display - Screen Produced   4/25/2026 3:21:25 PM 
Account: R267164028  Type: Residential

  

Location:

18155 SE 38TH ST

Building Name/Occupant:

 

UNINCORPORATED

Owner Name 1:  ANDERSON CLINTON ALAN JR & KEELY

Parcel PIN#:

1064-26-716-4028

Owner Name 2:    1/4 section #:

1064

Owner Name 3:    Parent Acct:

1064-26-716-4025

Billing Address:  18155 SE 38TH ST Tax District:

City, State, Zip  NEWALLA, OK  74857-6644 School System:

Choctaw #4

Country: (If noted)

  

Land Size:

5.0500  Acres

Personal Property

Land Value: 82,000 

Treasurer:

Sect 16-T11N-R1E Qtr NW

 POTTAWATOMIE TOWNSHIP   Block 000  Lot 000   Subdivision Sales
 Full Legal Description:  POTTAWATOMIE TOWNSHIP PT NW4 SEC 16 11N 1E BEG 743.35FT E OF SW/C NW4 TH N886.97FT E247.95FT S886.69FT W247.95FT TO BEG AKA TR 3 CONT 5.05ACRS MORE OR LESS SUBJ TO ESMTS OF RECORD

NOTE:  The following sales may or may not be used to determine Fair Market Value

Photo & Sketch (if available) Sales  Sales Report

 18155 SE 38TH ST UNINCORPORATED, OK

04/09/2024

 $460,000 

 5509 OLD TOWN ST OKLAHOMA CITY, OK

08/19/2025

 $345,000 

 20841 BOOKER AVE OKLAHOMA CITY, OK

10/14/2025

 $360,000 

 3308 S INDIAN MERIDIAN RD CHOCTAW, OK

05/29/2025

 $480,000 

 3716 S PEEBLY RD UNINCORPORATED, OK

10/17/2022

 $585,000 

 16315 SE 59TH ST OKLAHOMA CITY, OK

08/30/2023

 $495,000 

Value History  (*The County Treasurer 405-713-1300 posts & collects actual tax amounts.  Contact information  HERE)
Year Market Value Taxable Mkt Value Gross Assessed Exemption Net Assessed Millage Est. Tax Tax Savings

2026

510,500 

510,500 

56,155 

56,155 

117.21 

$6,582 

$0 

2025

522,000 

522,000 

57,420 

57,420 

117.21 

$6,730 

$0 

2024

82,000 

82,000 

9,020 

9,020 

116.35 

$1,049 

$0 

[1/5]
Property Account Status/Adjustments/Exemptions
Account # Exemption Description Amount

R267164028

5% Capped Account

Property Deed Transaction History   (Recorded in the County Clerk's Office)
Date Type Book Page Price Grantor Grantee

4/9/2024

Deeds

15721

1451

 $460,000 

CUNNINGHAM RICHARD T & TERESA D

ANDERSON CLINTON ALAN JR & KEELY

3/28/2023

Deeds

15420

1913

 $82,000 

ZECKSER CHRISTOPHER M

CUNNINGHAM RICHARD T & TERESA D

4/7/2014

Deeds

12507

667

 $50,000 

INTEGRITY CONSTRUCTION & DEVELOPMENTS LLC

ZECKSER CHRISTOPHER M

[1/2]
Last Mailed Notice of Value (N.O.V.) Information/History
Year Date Market Value Taxable Market Value Gross Assessed Exemption Net Assessed

2025

01/31/2025

522,000 

522,000 

57,420 

57,420 

2024

01/22/2024

82,000 

82,000 

9,020 

9,020 

2023

01/23/2023

73,342 

52,500 

5,775 

5,775 

[1/2]
Property Building Permit History
Issued Permit # Provided by Bldg # Description Est Construction Cost Status

7/25/2023

BP-2023-173

 

Main Dwellin

430,000 

Inactive

Click button below to access detailed information and additional property photos:
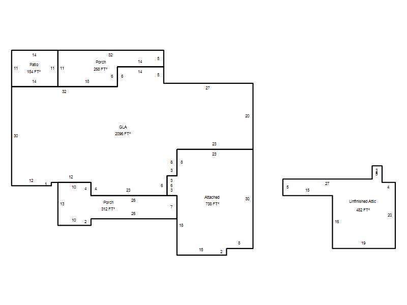
  Bldg # Vacant/Improved Land Bldg Description Year Built SqFt # Stories

Click

1

Improved

1½ Story Unfin

2023

2,096 

1.5 Stories